London Road, Henfield

GBP 175000 For Sale

Property Details

Property Type

Land

Description

Property Details: • Type: Land • Tenure: N/A • Floor Area: N/A

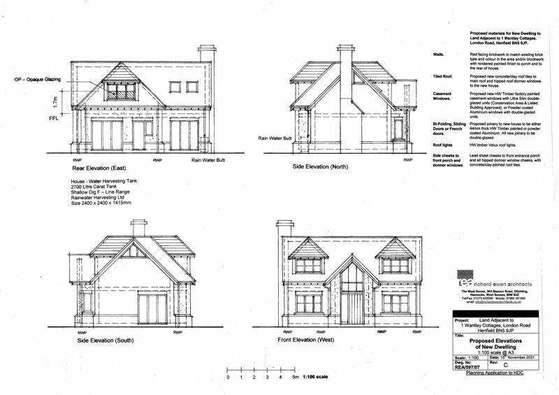
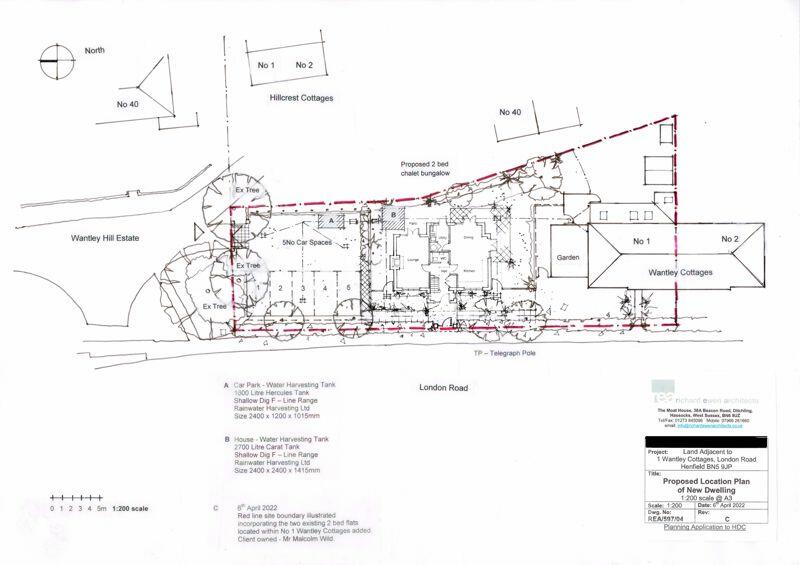
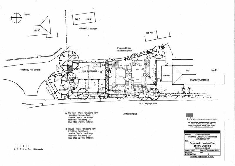
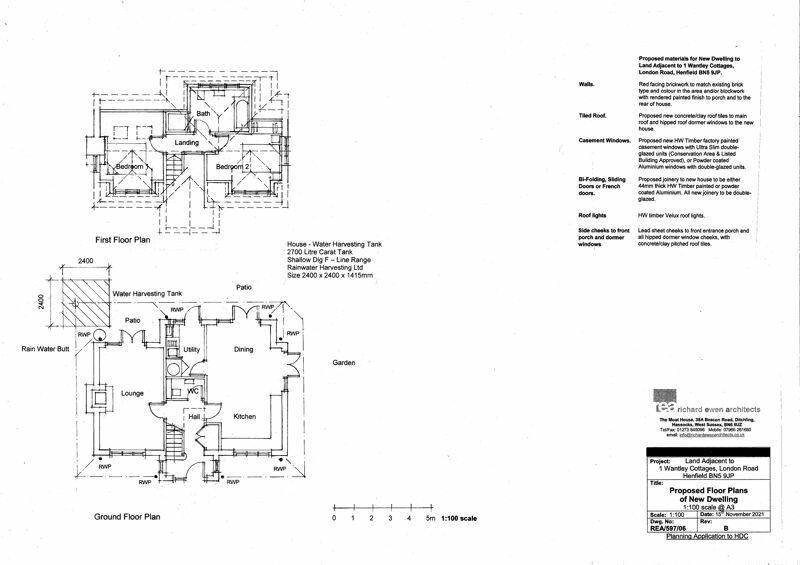
Key Features: • Building plot for a most attractive detached 2 bedroom chalet property • With front, side and rear gardens. Two allocated parking spaces • Possibility of enlarging to a 3 bedroom dwelling (subject to any necessary consents) • Planning Ref: DC/21/2711. Permission granted granted 12/8/22 • COUNCIL TAX: TBA. EPC: N/A

Location: • Nearest Station: Hassocks Station • Distance to Station: 5.6 miles

Agent Information: • Address: Euston House High Street, Henfield, BN5 9DD

Full Description: A rare opportunity to purchase a building plot to construct a two bedroom detached chalet property situated on the Northern periphery of Henfield Village, close to local amenities and Countryside walks. Planning permission has been granted by Horsham District Council (Planning Ref DC/21/2711) for a two bed detached dwelling. The accommodation is arranged over two floors comprising, entrance, entrance hall, cloakroom, sitting room with chimney, open plan kitchen/dining room and utility room. First floor two bedrooms and family bathroom. There is also a possibility of creating a third bedroom subject to planning permission. Outside there are two allocated parking spaces plus front, side and rear garden. Further information: The property would need have installed two water harvesting tanks and all service connections, both of which would be liable by the purchaser. The CIL (Community Infrastructure Levy) payment (if applicable) to Horsham District Council will be paid by the purchaser.BrochuresProperty BrochureFull Details

Location

Address

London Road, Henfield

City

Henfield

Features and Finishes

Building plot for a most attractive detached 2 bedroom chalet property, With front, side and rear gardens. Two allocated parking spaces, Possibility of enlarging to a 3 bedroom dwelling (subject to any necessary consents), Planning Ref: DC/21/2711. Permission granted granted 12/8/22, COUNCIL TAX: TBA. EPC: N/A

Legal Notice

Our comprehensive database is populated by our meticulous research and analysis of public data. MirrorRealEstate strives for accuracy and we make every effort to verify the information. However, MirrorRealEstate is not liable for the use or misuse of the site's information. The information displayed on MirrorRealEstate.com is for reference only.

Real Estate Broker
H J Burt, Henfield
Brokerage
H J Burt, Henfield
Top Tags
Likes

0

Views

66

This website uses cookies to ensure you get the best experience. Learn more