Longholme Road, Rawtenstall, Rossendale, BB4
Property Details
6
3
House
Description
Property Details: • Type: House • Tenure: FREEHOLD • Floor Area: 2852 sqft
Key Features: • Freehold • Three-Storey Commercial Premises • PP in 2024 to convert to 3 x 2 bed Apartments • Superb Central Location • Period Stone Property • Easy Access to M66 for Manchester • 100meters to Modern Bus Station • Edge of Vibrant Town Centre • EPC:C
Location: • Nearest Station: Accrington Station • Distance to Station: 4.986025205453839 miles
Agent Information: • Address: 68 Bank Street, Rawtenstall, BB4 8EG
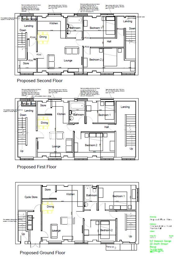
Full Description: INVESTMENT OPPORTUNITY. A stunning stone heritage property, in the centre of Rawtenstall, with planning permission to convert into 3 x 2 bed apartments, or with potential to continue this former auctiuon house into an exciting commercial space in the heart of the town centre, by the Bacup Road retail core, the modern bus station and close to Kay Street & Bank Street. The vendors may also consider letting. EPC:C<br /><br />Superbly situated in the heart of Rawtenstall's vibrant town centre, just off the M66/A56, offering excellent access to Manchester, this is a period stone mill, set over three stories, plus a loft within the pitched, slate roof space, with planning permission to convert into 3 x 2 bed apartments granted in 2024. <br /><br />Previously used as an auction house, these two neighbouring properties, 11a & 13a, are now a large, single, open plan space, with two front access points- one at end, and a series of three front windows on the ground floor and five front windows and four rear windows on the first and second floors, making stunning bright, open plan floorplates, that are each 88sqm/950sqft (totaling 265sqm/ 2,850sqft). <br /><br />There is a staircase at each end on the first and second floors and potential to add a second staircase on the ground floor for ease of access and flexible use, which the current owners have explored. There is a W.C. on the first floor too and a stud wall, has created a separate 'lounge' space, which could easily be removed if preferred. <br /><br />This fantastic location, by a pleasant cobbled street with wide, open frontage across to the River Limy at the front and close to the confluence of the River Irwell, you are just off the main retail core at the rear of Bacup Road, with Key St, St Mary's Way and Bank St, all within a moments’ walk, as are key anchor tenants within the town including B&M, Lidl, Tesco and Asda.<br /><br />Anti-Money Laundering (AML) Checks - As part of making an offer, we're required by law to complete Anti-Money Laundering (AML) checks to confirm the identity of all purchasers. To cover the cost of this process, a fee of £48 inc VAT per buyer is payable when your offer is accepted. This is a standard requirement for all buyers and helps us ensure your offer can be progressed as quickly and smoothly as possible.
Location
Address
Longholme Road, Rawtenstall, Rossendale, BB4
City
Rossendale
Features and Finishes
Freehold, Three-Storey Commercial Premises, PP in 2024 to convert to 3 x 2 bed Apartments, Superb Central Location, Period Stone Property, Easy Access to M66 for Manchester, 100meters to Modern Bus Station, Edge of Vibrant Town Centre, EPC:C
Legal Notice
Our comprehensive database is populated by our meticulous research and analysis of public data. MirrorRealEstate strives for accuracy and we make every effort to verify the information. However, MirrorRealEstate is not liable for the use or misuse of the site's information. The information displayed on MirrorRealEstate.com is for reference only.