Lord Cullen House, 127 Causewayend, Aberdeen, AB25 3UB
Property Details
Commercial Property
Description
Property Details: • Type: Commercial Property • Tenure: FREEHOLD • Floor Area: N/A
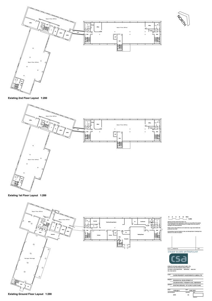
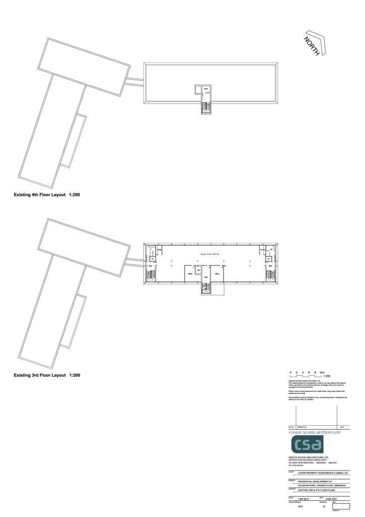
Key Features: • Prime Development Opportunity • Extending to approx. 4,069 sq. metres • Two main interconnected blocks over three/four floors • Excellent location within walking distance of Aberdeen University and city amenities • VAT elected property
Location: • Nearest Station: Aberdeen Station • Distance to Station: 0.8775494665964919 miles
Agent Information: • Address: Building 3, 46 Munro Place, Anniesland, Glasgow G13 2UP
Full Description: Development opportunity <br /> <br />If you are looking for an exceptional development opportunity close to Aberdeen city centre this substantial former office complex is sure to catch your eye. Within close proximity to Aberdeen University, this site offers huge development potential The property is currently arranged over three/four floors, extending to approximately 4,069 sq. metres, and is formed of two principal blocks connected via an enclosed walkway. Most recently, the premises were occupied by the Health and Safety Executive, VisitScotland, and the Met Office, and are now offered with vacant possession. <br /> <br />The site benefits from a pre-planning application approved by Aberdeen City Council under Reference 250101/PREAPP, outlining a proposal to develop up to 70 residential units. Given its proximity to the University and strong local demand for student and private accommodation, this property offers excellent potential for conversion to residential, mixed-use, or purpose-built student housing (subject to full planning approval). <br /> <br />In total, there are 58 on-site parking spaces, alongside a ground-floor garage. A portion of the parking area and the garage is currently let on an informal (non-income producing) basis, with the remainder of the parking managed by a third-party parking provider, again producing only nominal income. Both arrangements can be terminated with one month’s notice. <br /> <br />Situated in a well-connected area close to the University of Aberdeen, the property enjoys convenient access to King Street, Old Aberdeen, and the city centre. The location is well-served by public transport links and local amenities, making it an ideal position for future residential use or a modernised commercial development. <br />Early viewing is highly recommended to fully appreciate the scale, flexibility, and outstanding potential of this landmark property. Please note that the property is elected for VAT. <br /> <br />Lord Cullen House enjoys convenient location approximately 1.5 miles from Aberdeen city centre. A range of facilities are available locally, with a fuller range in the nearby city centre. Aberdeen beach is close by, and the property also offers close proximity to Aberdeen University. <br /> <br /> <br />PURCHASERS NOTES <br />Please note that these particulars have been prepared by us on the basis of information provided by our client. If there is any aspect of these particulars that you wish clarified or that you find misleading please contact the office where further information will be made available. <br /> <br />• No tests have been made of services, equipment or fittings. <br />• No warranty is given or implied as to the condition of buildings, services, fixtures, fittings etc. <br />• All measurements, distances and acres are approximate. <br />• Fixtures, fittings and other items are not included unless specified in these details. <br /> <br />This material is protected by the laws of copyright. The owner of the copyright is Auction House Scotland. The property sheet forms part of our database and is protected by the database rights and copyright laws. No unauthorised copying or distribution without permission. Auction House Scotland is revolutionising the sale of property in Scotland. <br /> <br />Remember, if you are buying a property which is being sold by Auction House Scotland you will normally be responsible for payment of a Buyer's Premium or Auction Fee of 3.6% of the purchase price subject to a minimum of £3600 inclusive of VAT. More details can be obtained on application. <br /> <br />Cybercrime Warning: <br />Please be aware that there is a significant risk posed by cyber fraud, specifically affecting email accounts and bank account details. PLEASE NOTE THAT OUR BANK ACCOUNT DETAILS WILL NOT CHANGE DURING THE COURSE OF A TRANSACTION AND WE WILL NOT CHANGE OUR BANK DETAILS VIA EMAIL. Please be careful to check account details with us in person if in any doubt. We will not accept responsibility if you transfer money into an incorrect account.
Location
Address
Lord Cullen House, 127 Causewayend, Aberdeen, AB25 3UB
City
Aberdeen
Features and Finishes
Prime Development Opportunity, Extending to approx. 4,069 sq. metres, Two main interconnected blocks over three/four floors, Excellent location within walking distance of Aberdeen University and city amenities, VAT elected property
Legal Notice
Our comprehensive database is populated by our meticulous research and analysis of public data. MirrorRealEstate strives for accuracy and we make every effort to verify the information. However, MirrorRealEstate is not liable for the use or misuse of the site's information. The information displayed on MirrorRealEstate.com is for reference only.