Lot 1-17/13 Esplanade East, Triabunna TAS 7190
Property Details
Vacant Land
Description
Property Details: • Type: Vacant Land
• Bedrooms: 0 • Bathrooms: 0
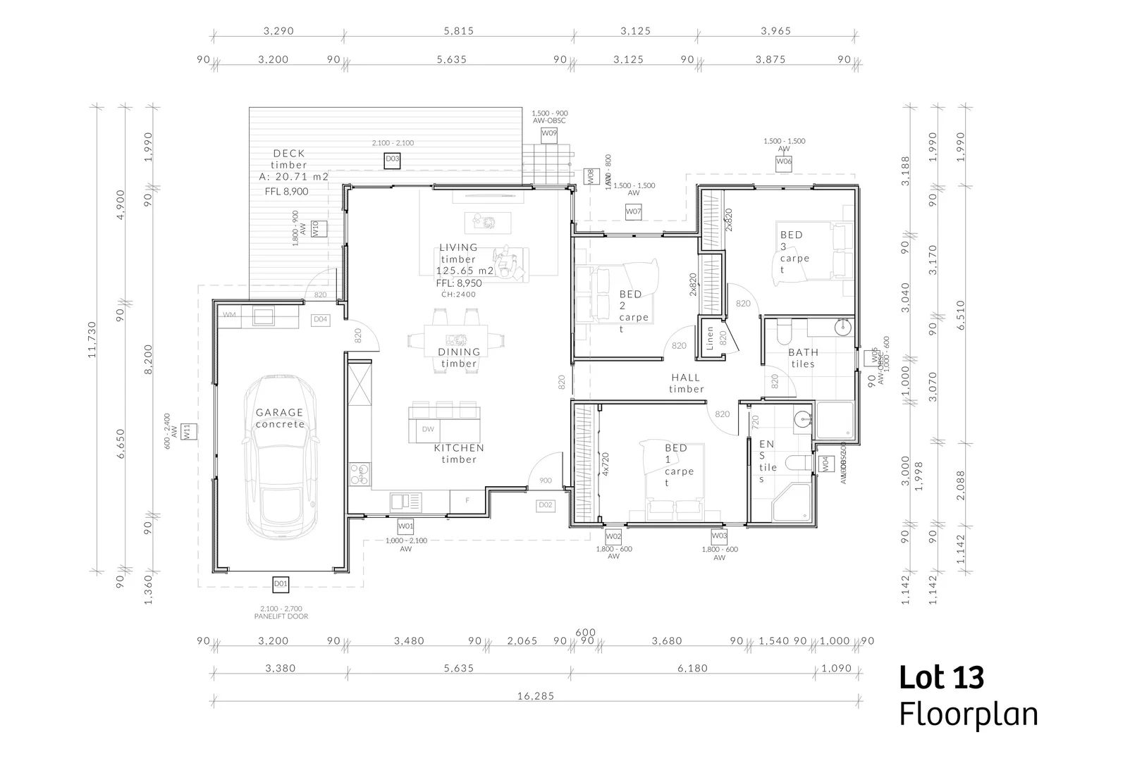
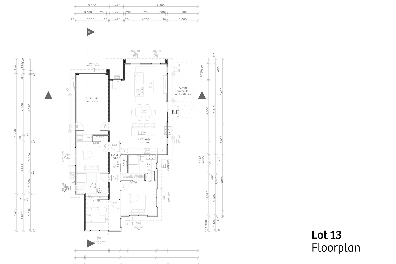
Description: Discover the perfect canvas for your dream home at this stunning waterfront residential land located at 13 Esplanade East in the picturesque town of Triabunna. Nestled along the serene coastline, this property offers an unparalleled opportunity to create your ideal retreat, whether it's a permanent residence or a holiday getaway! House & Land Packages Available from $499,000!! Lots 6 & 13 CURRENTLY UNDER CONSTRUCTION STCA - EXPRESS YOUR INTEREST NOW!! Lots 7 - 12 $189,000+ Lot 7 - 450m2 Lot 8 - 450m2 Lot 9 - 450m2 Lot 10 - 451m2 Lot 11 - 462m2 Lot 12 - 501m2 Lot 13 - BUILDING IN PROGRESS HOUSE & LAND AVAILABLE Lots 2 - 5 Priced from $219,000+ Lot 2 - 450m2 Lot 3 - 450m2 Lot 4 - 450m2 Lot 5 - 450m2 Lot 6 - BUILDING IN PROGRESS HOUSE & LAND AVAILABLE Lots 14 - 17 Priced from $259,000+ Lot 1 - 450m2 - SOLD Lot 14 - 524m2 Lot 15 - SOLD Lot 16 - 472m2 Lot 17 - 539m2 Titles are finalised and we are ready to go!! OR engage the builder of your choice & create your own dream! This is a great opportunity for first home buyers, investors, retirees looking to downsize or just a lovely scenic place for a holiday retreat. Imagine yourself sitting out in your own private enclave, taking in all that wonderful vista for yourself. A relaxing lifestyle to invite you to the peaceful and ever growing Coastal Township of Triabunna. An easy pleasant stroll will take you into the Town which offers the IGA, local Hotel, cafes, the very popular and well known Fish Van, Service Station and some services. There is also another Hotel on the main highway which offers good meals and free camping for the many caravans and motorhomes that pass through on their journey to and from our beautiful East Coast. Triabunna is also a very well known fishing mecca and is very busy spot in the fishing season. It is also the Gateway to Maria Island, a very popular tourist location to visit and see our local wildlife. Or you might prefer to do a relaxing cruise around the Island instead, another way to see the sights of this popular land mark. A five minute drive will take you to the other very popular Coastal Township of Orford where you will enjoy wonderful swimming beaches, several Cafes, the local Hotel, the Orford Golf Club which offers memberships and visitor passes and the Orford Bowls Club, both are very welcoming to new members and visitors. If you are adventuring up our picturesque East Coast, Approx 40 minutes takes you to Swansea, Approx 1hr 25mins to Coles Bay and Approx 1hr 15 mins to Bicheno. Approx 55 minute drive to the city of Hobart and approximately 40 minutes to the Hobart International Airport! If you think any one of these Lots may be suited to you, please do not hesitate to contact Cloe today!
Location
Address
Lot 1-17/13 Esplanade East, Triabunna TAS 7190
City
Triabunna
Features and Finishes
None
Legal Notice
Our comprehensive database is populated by our meticulous research and analysis of public data. MirrorRealEstate strives for accuracy and we make every effort to verify the information. However, MirrorRealEstate is not liable for the use or misuse of the site's information. The information displayed on MirrorRealEstate.com is for reference only.