Lot 1 at Summerleaze, Marshalls Elm, Street, BA16

GBP 400000 For Sale

Property Details

Property Type

Plot

Description

Property Details: • Type: Plot • Tenure: N/A • Floor Area: N/A

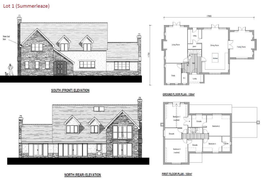
Key Features: • Residential Development opportunity • Lot 1 • Set in 0.34 acres • Large village location • Planning reference 2023/1947/FUL • Four-bedroom detached home with detached garage • Current building requires demolition

Location: • Nearest Station: N/A • Distance to Station: N/A

Agent Information: • Address: 6 The Bridge, Frome, BA11 1AR

Full Description: Description - An exciting opportunity to acquire one of two building plots with consent for erection of two individually impressive detached four bedroom homes on the outskirts of Street within proximity to Millfield School campus.Initial works on site have started and the plots have been defined and fenced, as well as construction of a bat shed on Plot 2 in accordance with the planning requirements.Shared access will be taken via right of way leading off Slugg Hill with an obligation upon all users for shared maintenance.Lot 1 – Summerleaze PlotAn opportunity to construct a superb detached four bedroom home with detached garage and set within a generous plot. The planning submission proposed a mix of local stone and white rendered block wall, pitched natural slate roof and aluminium or timber windows.The development will require the demolition and replacement of the existing dwelling. Consent was granted February 2024, subject to conditions, under application number 2023/1947/FUL to demolish existing dwelling and replace with 1 no. detached dwelling with detached garage.A restrictive covenant will prevent the ridge height being higher and prevent the footprint moving further north east from existing plans. There will be no restrictions on other directions or design.Plot size of approximately 0.34 acres.Planning Information - Situated within Somerset Council (former Mendip area) and planning information can be obtained via the planning portal. Or additional information is available from the selling agents. Interested parties must satisfy themselves with regard to any planning investigations, consent and conditions.Method of Sale - For sale by Private Treaty. Offers are invited on a conditional or unconditional basis off the following guide prices:Lot 1 £400,000 (Summerleaze Plot)Parties must satisfy themselves with regard to potential end values (GDV) but our local residential office at Street is contactable for general enquiries.Local Council - Somerset Council (former Mendip area)Services - We understand that Lot 1 is already connected to mains water and electricity. The Vendor will connect mains electricity and water to Lot 2. Private drainage will need to be connected to each Lot by the Purchaser. Purchasers to satisfy themselves about location and capacity of services.Tenure - Freehold, vacant possession upon completion.EPC - Existing dwelling is exempt due to intended replacement.Viewings - Strictly by prior appointment only.Community Infrastructure Levy - Somerset Council does not operate CIL the in the former Mendip Area.Location - Set in an excellent position off Slugg Hill, which leads off Somerton Road on the outskirts of Street, Somerset. Within close proximity to Millfield School campus and bordered by farm land and tree planting.What3Words location ///bolsters.lentil.returnsDevelopment-PropertyBrochuresBrochure 1

Location

Address

Lot 1 at Summerleaze, Marshalls Elm, Street, BA16

City

Street

Features and Finishes

Residential Development opportunity, Lot 1, Set in 0.34 acres, Large village location, Planning reference 2023/1947/FUL, Four-bedroom detached home with detached garage, Current building requires demolition

Legal Notice

Our comprehensive database is populated by our meticulous research and analysis of public data. MirrorRealEstate strives for accuracy and we make every effort to verify the information. However, MirrorRealEstate is not liable for the use or misuse of the site's information. The information displayed on MirrorRealEstate.com is for reference only.

Real Estate Broker
Cooper & Tanner, Frome
Brokerage
Cooper & Tanner, Frome
Top Tags
Likes

0

Views

60

This website uses cookies to ensure you get the best experience. Learn more