Lot 16 Browns Creek Road Estate, South Nowra NSW 2541
Property Details
5
3
New Home Designs
Description
Property Details: • Type: New Home Designs
• Bedrooms: 5 • Bathrooms: 3
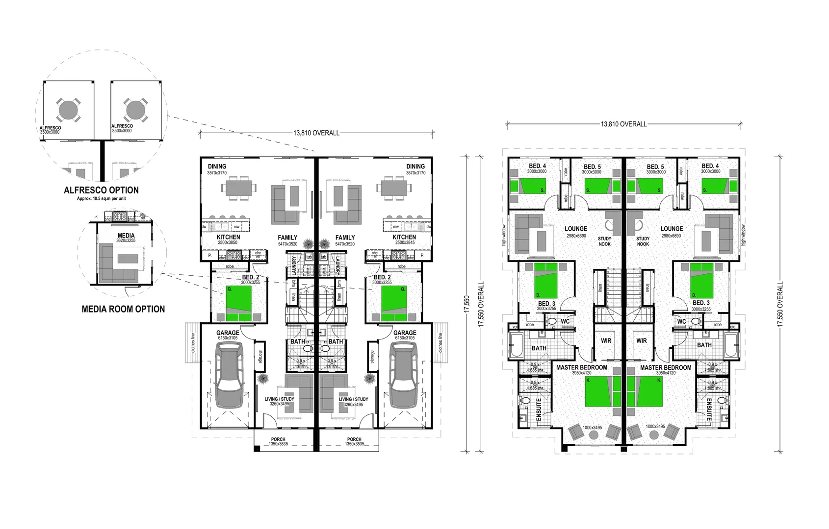
Description: House & Land Package by Stroud Homes Nowra SITE COSTS Subject to registration & 88b INCLUSIONS With over 90 FULLY LOADED inclusions, your home will come packed with everything you need to move in! Here are some of our highlight inclusions; - 60m2 Driveway - 900mm stainless steel freestanding cooker - Choice of built in 700mm rangehood OR 900mm stainless steel rangehood, entirely ducted to eave - Stainless steel dishwasher - Soft close to cutlery drawer - Piering included ("P" sites excluded) - Independent handover inspection - Frameless mirrors standard - Front entry door, as per brochure - Flyscreens to all windows - Barrier screens to all sliding doors - Tiles to porch area - Clothesline - TV antenna - Downlights to living areas, bedrooms and bathrooms - Bulkheads above the overhead cupboards ADDITIONAL INCLUSIONS Subject to registration & 88b ABOUT MASON 457 Welcome to the Mason 457 duplex home! This home features an open-plan layout on the ground floor which provides a seamless transition between the kitchen, dining and family areas. A bedroom can also be found on the ground floor which is perfect for guests, or can be converted into a media room, while the versatile living space at the front of the home can be utilised as a home office or study. Upstairs, you'll find four well-appointed bedrooms, including a spacious master suite with an ensuite and walk-in robe. There's also a study nook and a comfortable lounge, plus large windows to fill the home with natural light. This duplex home offers modern living at its finest! ABOUT BROWNS CREEK ROAD ESTATE Positioned in a growing and family-friendly location in South Nowranowrasales, these generously sized blocks are the perfect canvas for your dream home or next investment. With quality homes already surrounding the area and easy access to local shops, schools, and recreational spaces, Browns Creek offers a lifestyle that's both convenient and peaceful. ABOUT DENNIS HAWKINS, Sales Consultant, Stroud Homes Nowra ABOUT DENNIS HAWKINS, Sales Consultant, Stroud Homes Nowra Raised in Bomaderry, Dennis has brought his 10 years of passion for customer service into his role as a Sales Consultant with Stroud Homes Nowra. Dedicated to guiding you through the building process and making your new home journey seamless and an enjoyable experience. ABOUT STROUD HOMES With more than 20 years of design and building experience, Stroud Homes has a proven track record of success and a strong reputation for exceptional service and superior quality. The man behind the locally owned brand is James Stroud. Stroud Homes has a great reputation as an award-winning builder. We can provide simple and cost-effective advice, from our designs or yours. How do we do it? 1. Unbeatable buying power via excellent supplier relationships 2. Commitment to continuous improvement to customer service and quality 3. Pre-pricing new homes on vacant land Stroud Homes care about our customers and we do what we say we're going to do. We take the time to listen and work alongside our customers every step of the way, so the end result feels just right,like home. CONSUMER PLEASE NOTE Consumer please note: Stroud Homes is not a real estate agent, cannot sell land and will refer you to a licensed agent to complete any land purchase. Stroud Homes has used the price (as advertised by local real estate agents) for the block of land referred to in this package. Using this advertised price allows us to helpfully provide you with a price that is more realistic because we've tailor fit the home to the land - considering site works, water and sewer pipe and electrical lead - in lengths and other site specific items. Images and photographs are an example only and may have representations of fixtures and upgraded items not included in the package price or Fully Loaded Inclusions of Stroud Homes. See Stroud Homes website for House & Land Package Terms & Conditions
Location
Address
Lot 16 Browns Creek Road Estate, South Nowra NSW 2541
City
South Nowra
Features and Finishes
None
Legal Notice
Our comprehensive database is populated by our meticulous research and analysis of public data. MirrorRealEstate strives for accuracy and we make every effort to verify the information. However, MirrorRealEstate is not liable for the use or misuse of the site's information. The information displayed on MirrorRealEstate.com is for reference only.