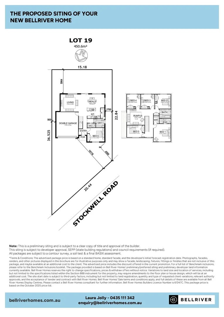
Lot 19 Stockwell Road, River Oaks Estate, Oakville NSW 2765
Property Details
6
2
New House & Land
Description
Property Details: • Type: New House & Land
• Bedrooms: 6 • Bathrooms: 2
Description: Bellriver Homes is a family business that has been providing Australia's homeowners and investors with quality, value, and peace of mind since 1993. We are passionate about building quality homes and customer relationships. We ensure our customers have a stress-free, seamless, and enjoyable building experience. That is why we FIX our site costs - even if we hit rock - we want you to have no additional hidden costs. Bellriver Homes are one of NSW's highest-rated builders - our clients rate us an average of 4.3 out of 5 stars on verified Product Review. Our price is fixed and includes earthworks plus a guaranteed build time. With all our House & Land packages, we offer the following assurances included in 'Our Word Our Bond' guarantee: -True Fixed Price Site Costs If we hit rock, we pay -Rental Guarantee -If your home is not completed by the agreed time, we pay a rental contribution. -Tyrrells provide Independent Quality Inspection reports for your peace of mind. -Allocated site start date so you know up front when your home will commence construction. Bellriver Homes superior inclusions: - Ducted Air-Conditioning - Floor coverings throughout including carpet to bedrooms - Westinghouse Stainless steel appliances including 900mm rangehood - Dishwasher - Semi-frameless shower screens to Master & Main bathrooms - 20mm Stone benchtops to kitchen & Vanities - Free Standing Bath - Triple coat paint system - 90mm wall frames - 2590mm Ceiling Height to ground floor - Concrete to porch & Alfresco where applicable - Oyster lights throughout - 25 Downlights package - Automatic sectional garage door - Wall and Ceiling insulation - Basix report inclusive of rainwater tank - With 7 Star Basix requirements* Also includes: - External Steps - Additional Bedroom option Bellriver Homes promise to deliver on time, at a fixed cost, to a standard that exceeds your expectations. With independent quality inspections, our buying power, passion for quality craftsmanship, and commitment to our customers having an enjoyable experience make Bellriver Homes the discerning homebuyer's choice. Terms and conditions apply. Images are for illustrative purposes only and may include optional upgrades not included in the price of the home. Bell River Homes reserve the right to change plans, prices, specifications, materials, products, and suppliers without notice. The purchase is a split contract where the land is purchased through the land-selling agent and the building contract is with Bell River Homes so that stamp duty is only paid on the land (if applicable). Bell River Homes (NSW) Pty Ltd. ABN 76 062 307 779 BL No. 61247C. Property Code: 4463
Location
Address
Lot 19 Stockwell Road, River Oaks Estate, Oakville NSW 2765
City
Oakville
Features and Finishes
None
Legal Notice
Our comprehensive database is populated by our meticulous research and analysis of public data. MirrorRealEstate strives for accuracy and we make every effort to verify the information. However, MirrorRealEstate is not liable for the use or misuse of the site's information. The information displayed on MirrorRealEstate.com is for reference only.