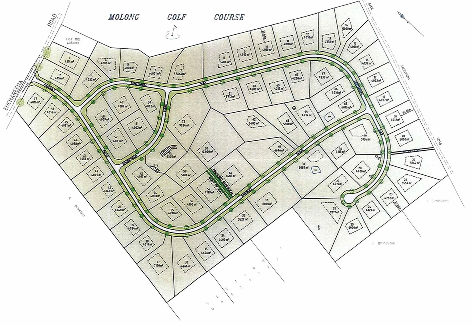
Lot 2 - 184 Euchareena Road, Molong NSW 2866
Property Details
Vacant Land
Description
Property Details: • Type: Vacant Land
• Bedrooms: 0 • Bathrooms: 0
Description: Services - Prestige living - Town Water Supply - Underground Power - Telephone - Excellent Building Covernance - Environmentally Friendly - Over 1 Acre Each - Wider Roads - Safe Family Environment
Location
Address
Lot 2 - 184 Euchareena Road, Molong NSW 2866
City
Molong
Features and Finishes
None
Legal Notice
Our comprehensive database is populated by our meticulous research and analysis of public data. MirrorRealEstate strives for accuracy and we make every effort to verify the information. However, MirrorRealEstate is not liable for the use or misuse of the site's information. The information displayed on MirrorRealEstate.com is for reference only.