Lot 2/84 Pembrey Loop, Cowes VIC 3922
Property Details
Vacant Land
Description
Property Details: • Type: Vacant Land
• Bedrooms: 0 • Bathrooms: 0
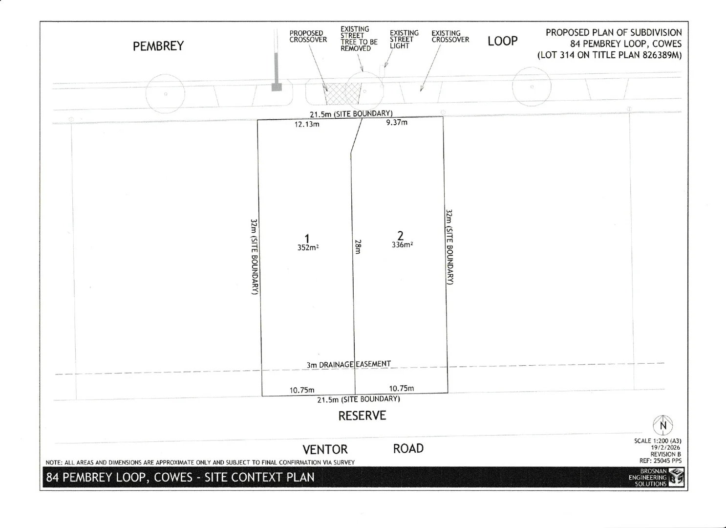
Description: The Vendors say SELL! SELL! SELL! CHEAP BLOCKS! GREAT LOCATION! LOW DEPOSITS! The Circuit Release unveils an exclusive new stage within the highly sought-after Shoalhaven Estate, Phillip Island. With only 8 premium lots on offer-ranging from 344sqm to 875sqm-this is your rare chance to create the lifestyle you've always envisioned. From your first home to a downsizer's retreat or a spacious sanctuary for the whole family, these versatile blocks cater to every stage of life. Lot 1 - 352m2 $289,000 Lot 2 - 336m2 $279,000 Deposits as low as $10,000 Settlement 30/60/90 Days This value driven allotment offers the perfect foundation for your dream home but on a budget price! If you are wanting House and Land packages we have a range of builders available to design a home that suits you and your budget, please contact us for further information. House and Land Packages - may be eligible for First Home Owners Grant or First Home Guarantee (5% Deposit) (STA) Affordable Homes - House and Land Package - Colosseum - $564,000 J G King Homes - House and Land Package - Ocean 17 - $613,365 Exciting opportunity to secure your place in this thriving coastal community. Immerse yourself in the peace and tranquility of island life - far removed from the hustle and bustle of the city. A little more than 20 minute walk to Red Rocks Beach or Yellow Sand Beach. 2 minute drive to Anchorage General Store and The Store Cafe and local butcher, 4 minute drive to Cowes Main Shopping strip. A short drive to the Penguin Parade and Grand Prix Racing Track. Discover breathtaking coastline, friendly native wildlife, scenic walking and hiking trails, renowned fishing spots, and safe, family-friendly beaches. As well as Icon attractions such as the world renowned Penguin Parade and Grand Prix Racing Track. This is contemporary coastal living at its finest. Enquiry about our House and Land Packages also! Land and House and Land package sold separately - Call Teresa on 0429 398730 for more information
Location
Address
Lot 2/84 Pembrey Loop, Cowes VIC 3922
City
Cowes
Legal Notice
Our comprehensive database is populated by our meticulous research and analysis of public data. MirrorRealEstate strives for accuracy and we make every effort to verify the information. However, MirrorRealEstate is not liable for the use or misuse of the site's information. The information displayed on MirrorRealEstate.com is for reference only.