Lot 2, Gorse Hill, Farningham, DA4
Property Details
Barn Conversion
Description
Property Details: • Type: Barn Conversion • Tenure: N/A • Floor Area: N/A
Key Features:
Location: • Nearest Station: N/A • Distance to Station: N/A
Agent Information: • Address: Euston House 82a High Street, Heathfield, TN21 8JD
Full Description: INTRODUCTION Charton Manor Farm is a versatile and multi-purpose small holding situated in a highly accessible location just to the east of Farningham with access links directly onto the A20 and the M25 within two miles, with a view of the London skyline from the highest point of the farm land. The property has been diversified over time to now provide a significant development opportunity for up to 12 residential dwellings on site under three separate consents. In addition, the well-proportioned Farmhouse is situated in the centre of the 40 acre holding and provides an opportunity to develop/modernise further into a 8,000ft² dwelling or dwellings subject to the necessary consents. The property has been in the Vendors ownership for nearly 100 years and provides income, development and commercial opportunities throughout.
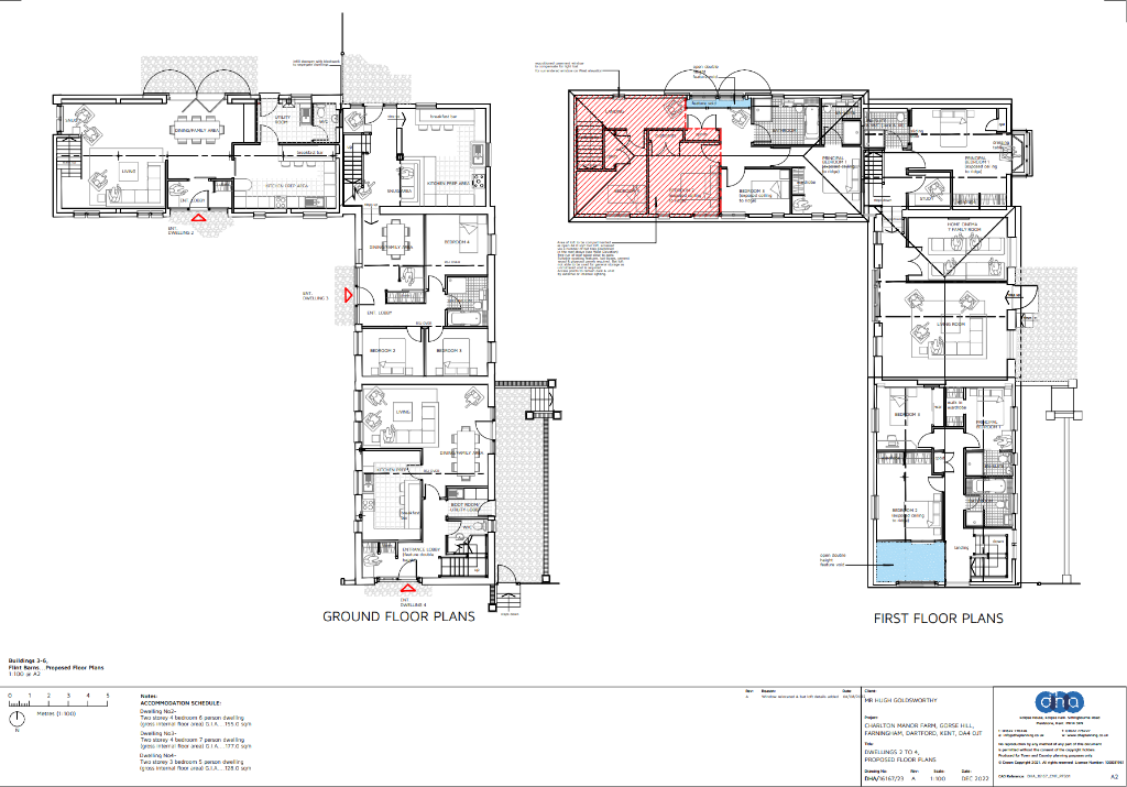
LOT 2 THE OLD STABLE YARD - 0.28 ACRES The Old Stable Yard comprises a range of brick and flint structures part of which (Dwelling 1) has already been converted into living accommodation and is occupied by a relative of the Vendor. This Lot has full planning for conversion of the existing buildings into four residential dwellings under planning reference 22/03410/FUL - Sevenoaks District Council. Copies of the approved plans elevations and decision notice are all available from the selling agents on request or on the Sevenoaks District Council Planning Portal.BrochuresBrochure 1
Location
Address
Lot 2, Gorse Hill, Farningham, DA4
City
Farningham
Features and Finishes
None
Legal Notice
Our comprehensive database is populated by our meticulous research and analysis of public data. MirrorRealEstate strives for accuracy and we make every effort to verify the information. However, MirrorRealEstate is not liable for the use or misuse of the site's information. The information displayed on MirrorRealEstate.com is for reference only.