Lot 30/TBA Stock Street, Austral NSW 2179
Property Details
Vacant Land
Description
Property Details: • Type: Vacant Land
• Bedrooms: 0 • Bathrooms: 0
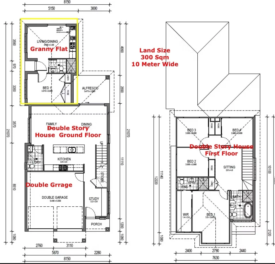
Description: Premium Land for Sale - Build Your Dream Home Near Leppington Linear Plaza & Train Station Seize this rare opportunity to secure a premium lot in a rapidly growing location! Positioned next to the proposed Leppington Linear Plaza and Train Station, this 10-meter-wide, zero-boundary lot is ideal for an easy-build double garage home with granny flat potential (STCA)-offering a lucrative rental return of approximately $1,300 per week combined. Key Features & Location Highlights: • Strategic Location - Walking distance to Leppington Train Station • Smart Investment - House & granny flat potential (STCA) • Future Growth - Next to the planned Leppington Linear Plaza • Convenient Lifestyle - Close to child care, medical centers & amenities • Easy Access - 12 mins drive to Ed Square, 16 mins to Western Sydney International Airport Upcoming Infrastructure & Growth: • New Western Sydney International Airport - Just 16 minutes' drive • Proposed Woolworths - Coming to Austral's Fourth Avenue • Planned Aquatic Centre - Across Fifth Avenue • Future Primary School - Within walking distance • $1 Billion Infrastructure Development - Government-announced upgrades for Fifteenth Avenue Austral, including smart transit and a proposed metro Flexible Payment Options: • Secure with just 5% deposit • Pay the rest at registration & settlement • Ideal for first-home buyers & savvy investors Explore Proposed Plans - Watch here: Proposed Plans Contact Us Today! Ish Khanal: 0452 574 401 | Babu: 0423 374 077 Land & Lease Realty Southwest - Glenfield Shop 5/70 A Railway Parade, Glenfield NSW 2167 Office: 02 9618 0554 Disclaimer: While we strive for accuracy, buyers should verify information independently. Images are for illustrative purposes only.
Location
Address
Lot 30/TBA Stock Street, Austral NSW 2179
City
Austral
Features and Finishes
None
Legal Notice
Our comprehensive database is populated by our meticulous research and analysis of public data. MirrorRealEstate strives for accuracy and we make every effort to verify the information. However, MirrorRealEstate is not liable for the use or misuse of the site's information. The information displayed on MirrorRealEstate.com is for reference only.