Lot 37 & 38/River Heights Estate, Merbein VIC 3505
Property Details
Vacant Land
Description
Property Details: • Type: Vacant Land
• Bedrooms: 0 • Bathrooms: 0
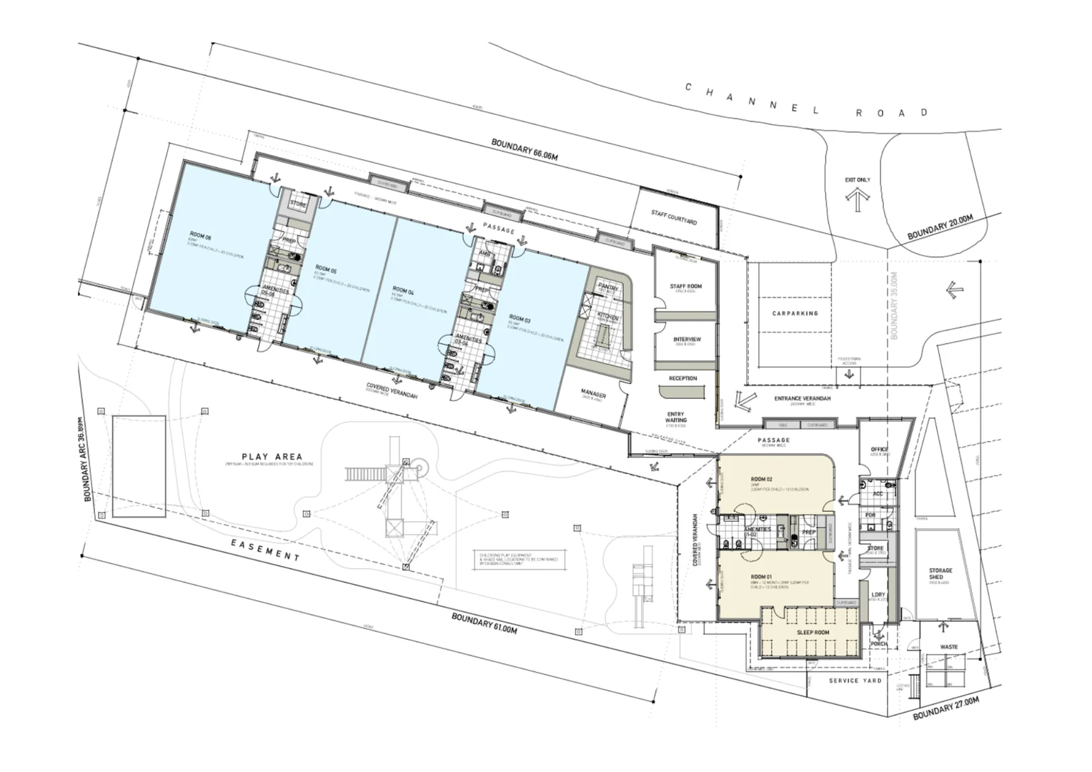
Description: Opposite Premium School Location - Ready to Deliver A rare opportunity to secure a fully approved childcare development site positioned directly opposite Merbein P-10 College, servicing a substantial and established family catchment. With planning permit secured and council-endorsed plans in place, this offering significantly reduces development timeframe and approval risk - allowing operators and developers to fast-track delivery. Investment & Development Highlights Planning Permit Approved - 109 Childcare Places Council-endorsed architectural, landscaping and drainage plans Located within General Residential Zone 1 (GRZ1) Directly opposite a 650+ student primary and secondary college Approx. 2956m² landholding 23 on-site car spaces Efficient front-door drop-off / pick-up configuration Acoustic report completed Quantity Surveyor Bill of Quantities available upon request
Location
Address
Lot 37 & 38/River Heights Estate, Merbein VIC 3505
City
Merbein
Features and Finishes
None
Legal Notice
Our comprehensive database is populated by our meticulous research and analysis of public data. MirrorRealEstate strives for accuracy and we make every effort to verify the information. However, MirrorRealEstate is not liable for the use or misuse of the site's information. The information displayed on MirrorRealEstate.com is for reference only.