Lot 60 Wisteria Lane, Southside QLD 4570
Property Details
Vacant Land
Description
Property Details: • Type: Vacant Land
• Bedrooms: 0 • Bathrooms: 0
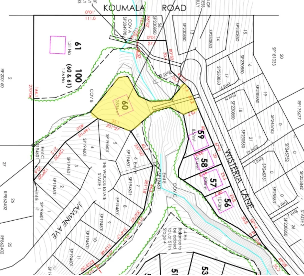
Description: SOUTHSIDE - $430,000 Lot 60 Wisteria Lane | 2,542m² Discover the perfect balance of space, serenity, and potential at Lot 60 Wisteria Lane. Set on a generous 2,542m² block, this property offers a rare opportunity to build your dream home - or explore development options such as a duplex or possibly a triplex (STCA). Enjoy peace and privacy with your very own treed creek, abundant birdlife, and plenty of room for the kids to play and explore. Whether you're looking to create a family lifestyle haven or an investment opportunity, this block delivers endless possibilities. Key Features: • Large 2,542m² allotment • Suit Duplex or possible Triplex (STCA) • Natural treed setting with creek frontage • Quiet location with peaceful surrounds • Ideal for families or developers alike Don't miss this chance to secure a piece of Southside's best lifestyle living! Disclaimer: The information statements, views, or opinions expressed in this publication are to be used as a guide only. Neither the Seller, Property Lane Realty, nor any other person involved in the preparation of distribution of this material, gives any guarantee or warranty concerning the accuracy or validity of its contents nor will they accept any liability. All prospective Buyers should make their own enquiries and satisfy themselves by inspection or otherwise as to the suitability of the property.
Location
Address
Lot 60 Wisteria Lane, Southside QLD 4570
City
Southside
Features and Finishes
None
Legal Notice
Our comprehensive database is populated by our meticulous research and analysis of public data. MirrorRealEstate strives for accuracy and we make every effort to verify the information. However, MirrorRealEstate is not liable for the use or misuse of the site's information. The information displayed on MirrorRealEstate.com is for reference only.