Lot 873 Victoria St, Peterborough SA 5422
Property Details
Vacant Land
Description
Property Details: • Type: Vacant Land
• Bedrooms: 0 • Bathrooms: 0
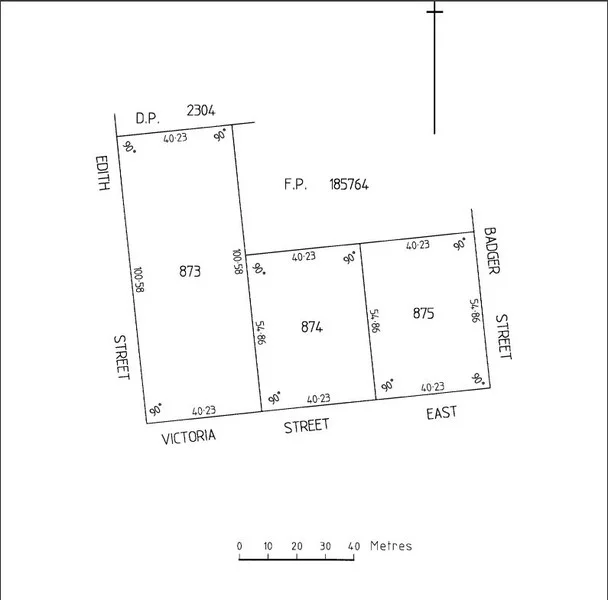
Description: The Phone Code for this property is: 76994. Please quote this number when phoning or texting. Lot 873 , $95,000 , 1 Acre , 4046sqm , Larger Corner Block , Huge 40m Frontage , over 100mtrs Deep , power & water out front , Zoned rural Living , build your dream home with room for a large shed ,animals & more STCC . Lot 874 , $89,000 , 2207sqm, Over 1/2 Acre , Huge 40m Frontage , over 54m Deep , water connected , power out front, Zoned rural living , plenty of space for your new home STCC . Lot 875 , $89,000 , 2207sqm , Over 1/2 Acre , Large corner block , Dual access , Huge 40m Frontage , power & water out front , space for a large home & more STCC , Zoned rural living . Blocks this size don't come along everyday , a rarity , a great opportunity in a friendly town , less than 1 km to main st shopping . Peterborough has Foodland , take aways ,cafe's , Hairdresser , Hardware , 3 Hotels ,Hospital & much more , a great place to live and enjoy SA's Mid North . Survey flags are approximate only . Disclaimer: Whilst every care has been taken to verify the accuracy of the details in this advertisement, For Sale By Owner Pty Ltd (forsalebyowner.com.au) cannot guarantee its correctness. Prospective buyers or tenants need to take such action as is necessary, to satisfy themselves of any pertinent matters.
Location
Address
Lot 873 Victoria St, Peterborough SA 5422
City
Peterborough
Features and Finishes
None
Legal Notice
Our comprehensive database is populated by our meticulous research and analysis of public data. MirrorRealEstate strives for accuracy and we make every effort to verify the information. However, MirrorRealEstate is not liable for the use or misuse of the site's information. The information displayed on MirrorRealEstate.com is for reference only.