Lot 9 Address Available Upon Request, Palmwoods QLD 4555
Property Details
4
2
New Home Designs
Description
Property Details: • Type: New Home Designs
• Bedrooms: 4 • Bathrooms: 2
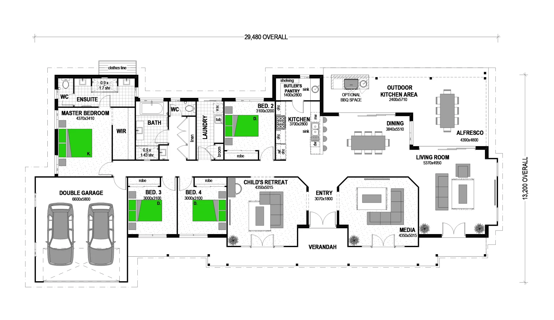
Description: House & Land Package by Stroud Homes Sunshine Coast SITE COSTS M Class Slab Site Works to 500mm INCLUSIONS With over 90 FULLY LOADED inclusions, your home will come packed with everything you need to move in! Here are some of our highlight inclusions; - 900mm stainless steel freestanding cooker - Choice of built in 700mm rangehood OR 900mm stainless steel rangehood, entirely ducted to eave - Stainless steel dishwasher - Soft close to cutlery drawer - Piering included ("P" sites excluded) - Independent handover inspection - Frameless mirrors standard - Front entry door, as per brochure - Flyscreens to all windows - Barrier screens to all sliding doors - Tiles to porch area - Clothesline - TV antenna - Downlights to living areas, bedrooms and bathrooms - Bulkheads above overhead cupboards ADDITIONAL INCLUSIONS Reticulated gas Homes sewerage treatment plant ABOUT VERMILION 312 The Vermilion 312 makes a grand impression that just looks 'right' on an acreage block; at over 30 meters wide the Vermilion makes the best of a wide-frontage land. Bright and Breezy don't waste a view! With two sets of huge stacking glass sliding doors the Vermilion design truly brings the outdoors in. With windows everywhere you'll be sure to capture every vista and enjoy the sort of freshness that only a gentle breeze flowing through your home can bring. When well oriented (north up), this home will passively heat and cool itself quite well saving you money and keeping you comfortable! Our popular galley kitchen with huge butler's pantry and second sink: keep your kitchen beautiful put the washing up in the butler's pantry and enjoy your company! Practical 2-part outdoor area: outdoor kitchen area and Alfresco Dining area (outdoor kitchen not included). Everywhere you look is space, space, space massive walk-in-robe, expansive ensuite with centrepiece shower design and three huge living areas! ABOUT ALEX GRAYDON, Sales Consultant, Stroud Homes Sunshine Coast Contact us for more information! ABOUT Stroud Homes Sunshine Coast Daniel Chapman, the franchise owner and builder of Stroud Homes Sunshine Coast, is a lifelong resident of the Sunshine Coast, with deep roots in the local community. His passion for the building industry is a family tradition, with his grandfather, uncle, and brother all being builders. Daniel's dedication to quality craftsmanship and customer satisfaction has been recognised with multiple awards. At Stroud Homes Sunshine Coast, Daniel leads a team committed to delivering tailored, innovative homes that meet the unique needs of each client. His extensive experience and attention to detail ensure that every project is completed to the highest standards, making the dream of a perfect home a reality for families across the Sunshine Coast. ABOUT STROUD HOMES With more than 20 years of design and building experience, Stroud Homes has a proven track record of success and a strong reputation for exceptional service and superior quality. The man behind the locally owned brand is James Stroud. Stroud Homes has a great reputation as an award-winning builder. We can provide simple and cost-effective advice, from our designs or yours. How do we do it? 1. Unbeatable buying power via excellent supplier relationships 2. Commitment to continuous improvement to customer service and quality 3. Pre-pricing new homes on vacant land Stroud Homes care about our customers and we do what we say we're going to do. We take the time to listen and work alongside our customers every step of the way, so the end result feels just right,like home. CONSUMER PLEASE NOTE Consumer please note: Stroud Homes is not a real estate agent, cannot sell land and will refer you to a licensed agent to complete any land purchase. Stroud Homes has used the price (as advertised by local real estate agents) for the block of land referred to in this package. Using this advertised price allows us to helpfully provide you with a price that is more realistic because we've tailor fit the home to the land - considering site works, water and sewer pipe and electrical lead - in lengths and other site specific items. Images and photographs are an example only and may have representations of fixtures and upgraded items not included in the package price or Fully Loaded Inclusions of Stroud Homes. See Stroud Homes website for House & Land Package Terms & Conditions
Location
Address
Lot 9 Address Available Upon Request, Palmwoods QLD 4555
City
Palmwoods
Features and Finishes
None
Legal Notice
Our comprehensive database is populated by our meticulous research and analysis of public data. MirrorRealEstate strives for accuracy and we make every effort to verify the information. However, MirrorRealEstate is not liable for the use or misuse of the site's information. The information displayed on MirrorRealEstate.com is for reference only.