Lovely Hall Lane, Salesbury, Blackburn, Lancashire

GBP 270000 For Sale

Property Details

Property Type

Plot

Description

Property Details: • Type: Plot • Tenure: N/A • Floor Area: N/A

Key Features: • Fantastic building plot with Planning Consent for a replacement dwelling • 5.01 acre plot, or thereabouts • Five bedroom detached dwelling • Open views over surrounding land • Rural position within Ribble Valley • Grassland Paddock and Roadside Frontage • Attractive location • Excellent access to A59 and M6 road networks

Location: • Nearest Station: Ramsgreave & Wilpshire Station • Distance to Station: 1.1 miles

Agent Information: • Address: 5 Church Street, Clitheroe, BB7 2DD

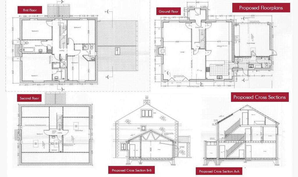
Full Description: ** VILLAGE LOCATION PLOT ** PLANNING FOR 5 BED HOUSE **Back to the market -A superb opportunity to purchase a unique building plot, benefitting from Planning Consent for the replacement of an existing dwelling, positioned in a total plot of approximately 3.85 acres (1.56 hectares), or thereabouts. The new dwelling will provide for a substantial five bedroom detached property, with attached grassland paddock and woodland. The Purchaser has the ability to design and create their own bespoke dwelling in a much sought after and accessible Ribble Valley location of Salesbury.The property obtained Planning Consent from Ribble Valley Borough Council under Application No: 3/2011/0628 on 14th October 2011. The Vendor has also obtained a Certificate of Lawfulness under Application No: 3/2023/0762 on 1st December 2023, which confirms the commencement of the development in accordance with the original Planning Consent (3/2011/0628). The property is located along a stoned access track leading off Lovely Hall Lane, being positioned just outside the attractive Village of Salesbury. The plot benefits from surrounding open views over agricultural land and the surrounding Ribble Valley. Salesbury Village amenities include a primary school, places of worship, public house and independent shops. The Cities of Manchester and Preston, alongside the surrounding Towns of Clitheroe, Blackburn and Burnley are within easy commuting distance, with the plot also having superb access onto the A59 and M6 road networks.The site includes a currently dilapidated two bedroom cottage constructed of stone under a pitched slate roof. The current Planning Consent for the plot provides for the demolition of this existing cottage and erection of a new five bedroom detached property. The current proposed plans provide accommodation as follows:Ground floor - Entrance porch, entrance hallway, lounge, kitchen/dining room, utility room and double garage.First floor - Four bedrooms (two with ensuite), family bathroom and additional wc. Second floor - Bedroom five, games room and additional bathroom. To the south of the plot is a grassland paddock extending to approximately 3.85, being positioned adjacent to Lovely Hall Lane. This additional land offers tremendous scope for further alternative uses, equestrian purposes or lifestyle farming, also providing an element of security and privacy for the new build property. The Site Plan illustrates the property boundaries as outlined in ‘Red’.Building plots of this nature, being within such a popular rural and accessible location, and including land, are not regularly offered to the Market and this is a rare opportunity to build a dream property within a much sought after village location.BrochuresParticulars

Location

Address

Lovely Hall Lane, Salesbury, Blackburn, Lancashire

City

Salesbury

Features and Finishes

Fantastic building plot with Planning Consent for a replacement dwelling, 5.01 acre plot, or thereabouts, Five bedroom detached dwelling, Open views over surrounding land, Rural position within Ribble Valley, Grassland Paddock and Roadside Frontage, Attractive location, Excellent access to A59 and M6 road networks

Legal Notice

Our comprehensive database is populated by our meticulous research and analysis of public data. MirrorRealEstate strives for accuracy and we make every effort to verify the information. However, MirrorRealEstate is not liable for the use or misuse of the site's information. The information displayed on MirrorRealEstate.com is for reference only.

Real Estate Broker
Armitstead Barnett, Clitheroe
Brokerage
Armitstead Barnett, Clitheroe
Top Tags
5.01 acre plot or thereabouts
Likes

0

Views

64

This website uses cookies to ensure you get the best experience. Learn more