Lustrells Vale, Saltdean, Brighton

GBP 275000 For Sale

Property Details

Property Type

Land

Description

Property Details: • Type: Land • Tenure: N/A • Floor Area: N/A

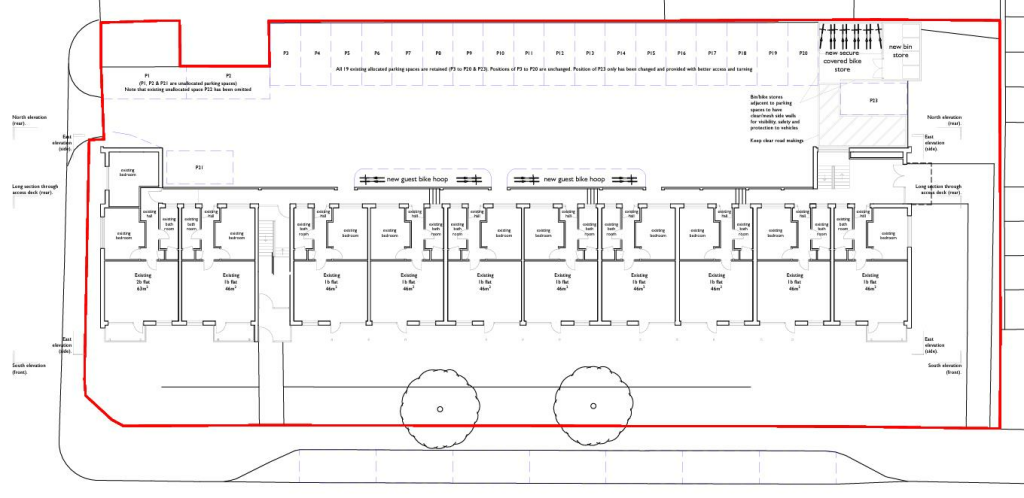
Key Features: • Freehold For Sale with Planning Permission • Planning Permission Creates a Third Floor • This will contain 4 x Studio, 4 x One Bed and 1 x Two Bedroom Apartments • Currently 30 Flats in Block • Combined Ground Rent Annual Income • Excellent Central Location • Excellent Resale Values

Location: • Nearest Station: Southease Station • Distance to Station: 3.5 miles

Agent Information: • Address: 226-230 South Coast Road, Peacehaven, East Sussex, BN10 8JR

Full Description: A superb opportunity to acquire this Freehold with Planning Permission for 9 Third Floor Apartments.Situated in this unrivalled position on this bustling street in Saltdean, with a good range of mixed residential and commercial buildings. The apartments are within easy reach of the local schools, bus routes to Brighton and Saltdean beach and other amenities.The property is currently arranged as 30 residential flats which all have long leases. All apartments are on 999 year leases which were issued in 1968 and have a combined annual ground rent commanding £1642. The planning permission includes creating a third floor, where there will be 1 x Two Bedroom Apartment, 4 x One Bedroom Apartment and 4 x Studio Apartments.Please call for further informationBrochuresLustrells Vale, Saltdean, BrightonBrochure

Location

Address

Lustrells Vale, Saltdean, Brighton

City

Brighton

Features and Finishes

Freehold For Sale with Planning Permission, Planning Permission Creates a Third Floor, This will contain 4 x Studio, 4 x One Bed and 1 x Two Bedroom Apartments, Currently 30 Flats in Block, Combined Ground Rent Annual Income, Excellent Central Location, Excellent Resale Values

Legal Notice

Our comprehensive database is populated by our meticulous research and analysis of public data. MirrorRealEstate strives for accuracy and we make every effort to verify the information. However, MirrorRealEstate is not liable for the use or misuse of the site's information. The information displayed on MirrorRealEstate.com is for reference only.

Real Estate Broker
Phillip Mann Estate Agents, Peacehaven
Brokerage
Phillip Mann Estate Agents, Peacehaven
Top Tags
4 x Studio 30 Flats in Block
Likes

0

Views

80

This website uses cookies to ensure you get the best experience. Learn more