Lye Lane, Bricket Wood

GBP 950000 For Sale

Property Details

Property Type

Plot

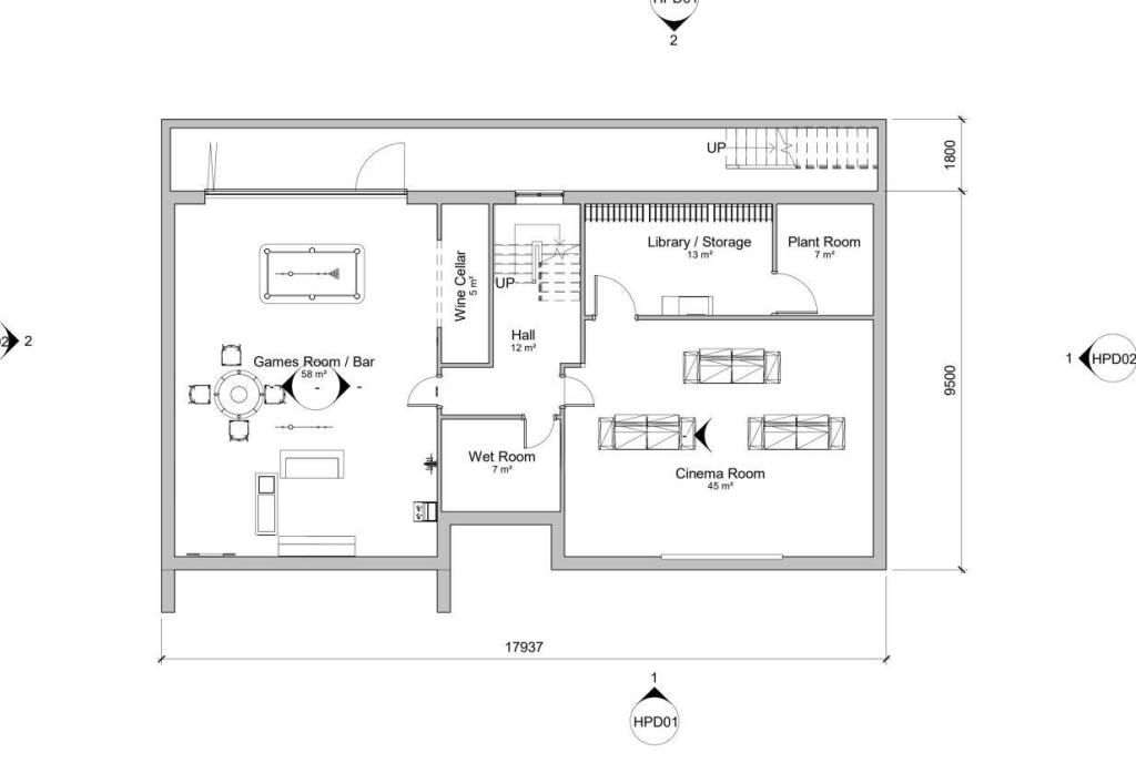
Description

Property Details: • Type: Plot • Tenure: N/A • Floor Area: N/A

Key Features: • Land for sale • Approved planning permission for a house to be built • Located in a semi-rural area • Accessed via a secure gated entrance • Planning ref: 5/2022/2527 • Generous plot of land of approximately 55 meters x 39 meters

Location: • Nearest Station: Bricket Wood Station • Distance to Station: 0.4 miles

Agent Information: • Address: Longmire House, 36-38 London Road, St Albans, AL1 1NG

Full Description: A truly unique opportunity to purchase a generous plot of land of approximately 55 meters x 39 meters with approved planning permission to build a stunning modern style two storey house including a lower ground floor with approximately 297sq.m./3196sq.ft living space and situated in a leafy position within a gated development off Lye Lane in Bricket Wood.The spectacular accommodation would include a stunning 31'2" x 28'8" kitchen/diner/living room with bi-folding doors, a multi-use games room/bar, impressive cinema room, three double bedrooms, en-suite to the master and two further bathrooms. Accessed via Lye Lane on the outskirts Bricket Wood which is popular with families and commuters due to its convenient location. There are many well regarded schools close by, including outstanding Parmiter's school. The property also offers easy access to both the M1 and M25 motorways.The current planning permission can be viewed online at St Albans Council’s website at Ref 5/2022/2527BrochuresLye Lane, Bricket WoodBrochure

Location

Address

Lye Lane, Bricket Wood

City

Lye Lane

Features and Finishes

Land for sale, Approved planning permission for a house to be built, Located in a semi-rural area, Accessed via a secure gated entrance, Planning ref: 5/2022/2527, Generous plot of land of approximately 55 meters x 39 meters

Legal Notice

Our comprehensive database is populated by our meticulous research and analysis of public data. MirrorRealEstate strives for accuracy and we make every effort to verify the information. However, MirrorRealEstate is not liable for the use or misuse of the site's information. The information displayed on MirrorRealEstate.com is for reference only.

Real Estate Broker
Paul Barker Estate Agents, St Albans
Brokerage
Paul Barker Estate Agents, St Albans
Top Tags
Likes

0

Views

113

This website uses cookies to ensure you get the best experience. Learn more