Lyttleton Gate, Studley, Warwickshire, B80

GBP 475000 For Sale

Property Details

Bedrooms

2

Bathrooms

2

Property Type

Detached Bungalow

Description

Property Details: • Type: Detached Bungalow • Tenure: Freehold • Floor Area: N/A

Key Features: • Available to reserve off plan a brand new two bedroom detached bungalow with parking for two cars • Small gated development of just 8 properties • Large welcoming hallway with cloakroom and store • Spacious kitchen/dining/family area • Fully zoned underfloor heating system • Shaker style kitchen with Quartz work surfaces and integrated appliances • Two double bedrooms with ensuite to bedroom 1 • Landscaped front garden, patio and turf to rear garden • Electric Vehicle Charging point • 10 Year ICW Structural Warranty

Location: • Nearest Station: N/A • Distance to Station: N/A

Agent Information: • Address: 86A High Street Henley-In-Arden B95 5BY

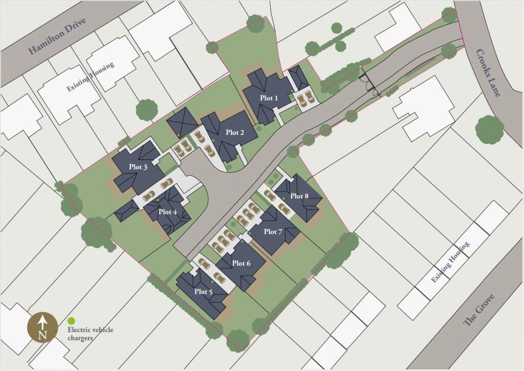
Full Description: Available to reserve off plan - Ready March 2026.Introducing Plot 5 Lyttleton Gate, a brand new two bedroom detached bungalow. Set in a private gated development in the village of Studley. Located just a few minutes from Studley High Street and only 4 miles for Alcester and 6 miles from Redditch Town Centre.Spacious hallway with doors off to store room, family bathroom with full height ceramic tiling, vanity storage units and chrome finishes.  Professionally designed kitchen/dining/family room with shaker style kitchen and integrated appliances with French doors leading out to the rear garden.  Two bedrooms with bedroom one having an ensuite.  High construction levels of specification and finish throughout the property.Lyttleton Gate offers the opportunity to own an individually designed bungalow in a tranquil, private gated development in the village of Studley . Located just a few minutes from Studley High Street, this exciting new development of 8 detached homes boast an energy efficient, bespoke specification and contemporary finishes. Along with landscaped front garden, rear garden with a patio, lawn and planting, an Electric vehicle charging point and a 10 Year ICW Structural Warranty. An abundance of energy efficient features are included such as ‘A’ rated kitchen appliances and PV Solar panelsSpecificationKitchenProfessionally designed shaker style kitchen (colour choice available).Quartz work surfaces with upstand to all kitchen and utilities (colour choice available).Stainless steel under mounted sink with engraved drainer and Franke chrome plated mixer taps to kitchen.Single oven, integrated microwave, gas hob and extractor hood, all to be Bosch stainless steel finish. Built in fridge freezer and integrated dishwasher, to be Caple or similar.Appliance spaces and plumbing for washing machine and tumble dryer to all plots.Bathrooms En-suites & WCHigh quality white ROCA sanitaryware to bathrooms, en-suites and WC’s.ROCA vanity storage units to bathrooms, en-suites and WC’s.Full height ceramic tiling to walls and floors in bathrooms, with splashback only to WCs.Hansgrohe chrome plated dual controlled mixer tap/shower with pop-up wastes to basins and baths.Shower cubicles to include shower doors, low profile shower trays, full height tiling and chrome plated Hansgrohe thermostatic mixer showers.High powered showers to bathrooms.Chrome plated towel rails to bathrooms, en-suite and WCsInternal FinishesOak veneer solid core interior doors with polished chrome door furniture.Oak handrail and feature oak first step to staircase.High quality luxury vinyl to ground floor excluding living room (colour choice available).Contemporary ogee skirting and architraves.Luxury carpets and underlay to living room, bedrooms, stairs and landing. (colour choice available)French patio doors to rear of kitchen diner.Electrical InstallationHigh speed fibre connectionChrome sockets and switches throughout the ground floor and landing.Recessed LED down-lighters to hall, kitchen, dining room, WC and bathroom.Under unit lighting to kitchen.Dual TV and socket to lounge, dining room and all bedrooms.Telephone socket to lounge.External power point.Electric vehicle charging point to each property (7kW Charger).SecurityIntruder alarm system.Multipoint locking system to all external doors.Suited key to all external doors.All properties are in full compliance with Part Q of the Building Regulations.Exterior lighting.High security Anti-Snap, Anti-Drill locks to all external doors.External DetailsOutside water tap.Landscaped front garden, patio and turf to rear.Block paved drives.Planting to gardens.Electric vehicle charging point to each property.HeatingFully zoned underfloor heating system to plots 1, 2, 3, 5 and 8.Thermostatic radiator valves to ground floor and first floor to plots 4, 6 and 7.Digital programmable thermostat for central heating.‘A’ rated Ideal gas combi boiler for heating and hot water to plots 1, 2, 3, 5 and 8.Mains pressure hot water system to plots 4, 6 and 7.Additional Details10 Year ICW Structural Warranty.High levels of insulation in roof, walls and floors to limit heat loss in the winter and reduce heat gain in the summer.Garador ‘Ascot’, sectional style up and over garage doors.10 year ICW structural warranty.Gated entrance to private road with intercom access to each plot.Additional InformationTenure: Freehold Purchasers should check this before proceeding.  Estate Charge TBC.Services: We have been advised by the vendor there is mains gas, water, electricity and mains drainage connected to the property. However, this must be checked by your solicitor before the exchange of contracts.  Fully underfloor heating system throughout.Rights of Way: The property is sold subject to and with the benefit of, any rights of way, easements, wayleaves, covenants or restrictions, etc. as may exist over same whether mentioned herein or not.Council Tax: TBCEnergy Performance Rating: Energy efficient home predicted EPC AViewings: By appointment onlyAgents Note - External photos are CGI's and internal photos are from a previous development.Agents Note: Whilst every care has been taken to prepare these sales particulars, they are for guidance purposes only. All measurements are approximate and are for general guidance purposes only and whilst every care has been taken to ensure their accuracy, they should not be relied upon and potential buyers are advised to recheck the measurements and confirm what is included in the property with their solicitor. We as agents have not tested the working order of any fixtures, fittings, or appliances, this is the responsibility of the buyer should they wish to do so. We have a Company complaints procedure in place, please ask for more details.Money Laundering Regulations Prior to a sale being agreed upon, prospective purchasers will be required to produce identification documents. Your co-operation with this, in order to comply with Money Laundering regulations, will be appreciated and assist with the smooth progression of the sale.BrochuresBrochure 1

Location

Address

Lyttleton Gate, Studley, Warwickshire, B80

City

Studley

Features and Finishes

Available to reserve off plan a brand new two bedroom detached bungalow with parking for two cars, Small gated development of just 8 properties, Large welcoming hallway with cloakroom and store, Spacious kitchen/dining/family area, Fully zoned underfloor heating system, Shaker style kitchen with Quartz work surfaces and integrated appliances, Two double bedrooms with ensuite to bedroom 1, Landscaped front garden, patio and turf to rear garden, Electric Vehicle Charging point, 10 Year ICW Structural Warranty

Legal Notice

Our comprehensive database is populated by our meticulous research and analysis of public data. MirrorRealEstate strives for accuracy and we make every effort to verify the information. However, MirrorRealEstate is not liable for the use or misuse of the site's information. The information displayed on MirrorRealEstate.com is for reference only.

Real Estate Broker
Harts, Henley-in-Arden
Brokerage
Harts, Henley-in-Arden
Top Tags
Likes

0

Views

9

This website uses cookies to ensure you get the best experience. Learn more