Mafeking Road, Cardiff

GBP 500000 For Sale

Property Details

Bedrooms

4

Bathrooms

1

Property Type

End of Terrace

Description

Property Details: • Type: End of Terrace • Tenure: N/A • Floor Area: N/A

Key Features: • FOUR BEDROOM HALL TO HALL STYLE HOUSE • 22 FT KITCHEN & BREAKFAST ROOM • COUNCIL TAX F • 27 FT LOUNGE AND DINING ROOM • 16 FT SITTING ROOM • GARDENS WITH GATES LANE ACCESS • WITHIN WALKING DISTANCE TO • CUL DE SAC LOCATION

Location: • Nearest Station: N/A • Distance to Station: N/A

Agent Information: • Address: 86 Albany Road, Y Rhath, Cardiff, CF24 3RS

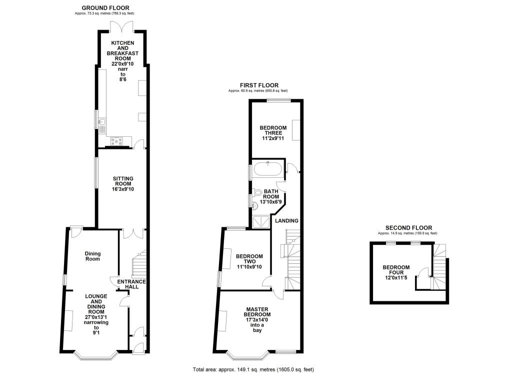
Full Description: SUMMARYA charming Gable fronted four bedroom end of terrace hall to hall style Victorian house, fronting quiet and select Mafeking Road, walking distance to Roath Park. Improvements include a modern 22FT kitchen and breakfast room and a moder 14 FT first floor family bathroom.DESCRIPTIONAn extended gable fronted end of terrace hall to hall Victorian four bedroom family house, built circa 1900, inset with a two storey wide splayed bay, all beneath a pitched slate roof. This substantial larger style property occupied a fine quiet location, fronting highly sought after Mafeking Road, a tranquil private residential road, located away fro passing traffic, yet well placed within walking distance to pretty local parks and shops. Also close by are further local parks within Penylan including Roath Mill Gardens and Waterloo Gardens. Local amenities also include the Roath Park Tea Rooms, Waterloo Gardens Post Office, Penylan Pantry, Penylan Bowling Club, and the Church of St Edward King and Confessor located along Westville Road. Also within walking distance are the Roath Park Recreational Fileds and Wellfield Road and Albany Road Shopping Centres. The property has been improved in recent years including a modern fitted open plan kitchen and breakfast room (22'0 x 9'10), white PVC double glazed replacement windows, gas heating with panel radiators and a modern combi boiler (December 2019), and a modern spacious family first floor bathroom (13'10 x 6'9). Many original features include a charming period entrance hall with a spindle balustrade staircase and a stunning mosaic tiled floor. Further character features include high cornice ceilings, dado rails, picture rails and imposing fireplaces.The Property The living space also includes on the ground floor an open plan lounge and dining room (27'0 x 13'1 max), open via a square opening but still retaining their original door ways, a spacious separate sitting room (16'3 x 9'10, whilst on the first floor there are three double sized bedrooms, and fourth bedroom is located within an attic loft conversion completed with an independent custom made staircase approached from the first floor landing. Outside a level walled enclosed rear garden has access to a gated lane. A very spacious home in a quiet well established residential road, away from busy passing traffic.Local Shops Within a short walk is the very popular Wellfield Road shopping centre with its extensive range of local shops and stores including Fab, a ladies fashion shop, Accessory Box which sells a range of fashion accessories, Barclays Bank Plc, Bentleys a café, Central Pharmacy, Cut Above is a unisex hairdresser offering a range of hairstyles, haircare products and other hair services, Derek Freye is a dry cleaners offering a range of cleaning and other clothing and linen services. Errol Willy is a unisex hairdresser offering a variety of men's and women's hair services, File & Style is a beauty salon providing various pampering services and beauty treatment, Himalaya Restaurant is an Indian restaurant serving a selection of curry and other spicy foods which are traditionally eaten in India, and a new edition is Joe's Ice Cream parlour.Ground Floor Entrance Porch Approached via a part panelled front entrance door leading to a porch with original tiled walls and mosaic tiled threshold, high cornice ceiling.Entrance Hall Approached via a part panelled front entrance door inset with a patterned upper light window, and opening in to a hallway of character with elegant mosaic tiled flooring, high cornice ceiling, picture rail, dado rail, original spindle balustrade carpeted single flight staircase with hand rail and moulded skirting boards to first floor landing.Through Lounge And Dining Room Originally two reception rooms, now open plan via a square opening, still retaining two independent doors with moulded architraves each opening in to the main entrance hall. Wide splayed bay with wood panelling and sealed double glazed PVC windows with outlooks on to the quiet frontage close, character fireplace with cast iron grate, slate hearth and tiled surround, both ceilings benefit from high cornice, and one with an original picture rail, four alcoves - one with a low level wall cupboard, double radiator within the dining area, and a further double radiator in the front lounge. Further white PVC double glazed window with a side aspect, further white PVC double glazed French door opening on to the walled rear gardens.Sitting Room Approached from the entrance hall via double doors leading to a third reception room, benefiting high coved ceiling with ceiling rose, a white PVC double glazed window with a side garden aspect, radiator.Kitchen And Breakfast Room Narrowing to 8' 6".Well fitted along three sides with a modern range of both floor and eye level units with laminate worktops, incorporating a stainless steel sink with chrome mixer taps and drainer, integrated stainless steel five ring gas hob including wok burner, wall mounted stylish extractor hood, integrated fan assisted electric oven, walls part ceramic tiled, space with plumbing for an automatic dishwasher, space with plumbing for a washing machine, space for the housing of a tumble dryer, space for the housing of an American style fridge freezer, porcelain tiled floor throughout, radiator, ample space for a dining table and four chairs, further white PVC double glazed window with a side garden aspect, concealed Worcester gas fired central heating boiler, PVC double glazed French doors open on to a walled and enclosed rear garden. Ceiling with spotlights.First Floor Landing Approached via a carpeted single flight spindle balustrade staircase with moulded skirting boards and dado rail leading to a central landing with access to the rear roof space.Master Bedroom One A large full size double bedroom, inset with a splayed bay with wood panelling and replacement PVC double glazed windows with outlooks on to the quiet frontage close. High cornice ceiling, character fireplace, two alcoves, double radiator.Bedroom Two A further double size bedroom with an exposed open brick fire breast, high ceiling, PVC double glazed window to side, PVC double glazed window to rear, radiator.Bedroom Three A further double size bedroom, equipped with an original alcove panel fronted wardrobe, a radiator, a PVC double glazed window with rear aspect.Family Bathroom Remodelled in recent years, and comprising of a large oversized Jacuzzi bath with chrome fittings and tiled surround, slim line Roca W.C., shaped wash hand basin with chrome mixer taps, pop-up waste, tiled splashback and a built out vanity unit with white high gloss doors and chrome handles, further double size contemporary shower with chrome fittings and clear glass screen and shower door, air ventilator, tall chrome vertical radiator/towel rail, sealed double glazed skylight window, further white PVC double glazed obscure glass window to side.Second Floor Landing Attic Room Forming part of an attic conversion, providing a very useful and versatile room independently approached from the landing via a custom made staircase, inset with two Velux double glazed windows to the rear, a double radiator, moulded skirting boards and panel doors opening in to eaves roof space storage area.Outside Front Garden Forecourted front garden.Rear Garden Pretty walled and fully enclosed rear garden, private enclosed by boundary walls lined with climbing plants to afford natural levels of privacy. Useful garden gate with gated lane access.1. MONEY LAUNDERING REGULATIONS: Intending purchasers will be asked to produce identification documentation at a later stage and we would ask for your co-operation in order that there will be no delay in agreeing the sale. 2. General: While we endeavour to make our sales particulars fair, accurate and reliable, they are only a general guide to the property and, accordingly, if there is any point which is of particular importance to you, please contact the office and we will be pleased to check the position for you, especially if you are contemplating travelling some distance to view the property. 3. The measurements indicated are supplied for guidance only and as such must be considered incorrect. 4. Services: Please note we have not tested the services or any of the equipment or appliances in this property, accordingly we strongly advise prospective buyers to commission their own survey or service reports before finalising their offer to purchase. 5. THESE PARTICULARS ARE ISSUED IN GOOD FAITH BUT DO NOT CONSTITUTE REPRESENTATIONS OF FACT OR FORM PART OF ANY OFFER OR CONTRACT. THE MATTERS REFERRED TO IN THESE PARTICULARS SHOULD BE INDEPENDENTLY VERIFIED BY PROSPECTIVE BUYERS OR TENANTS. NEITHER PETER ALAN NOR ANY OF ITS EMPLOYEES OR AGENTS HAS ANY AUTHORITY TO MAKE OR GIVE ANY REPRESENTATION OR WARRANTY WHATEVER IN RELATION TO THIS PROPERTY.BrochuresFull Details

Location

Address

Mafeking Road, Cardiff

City

Cardiff

Features and Finishes

FOUR BEDROOM HALL TO HALL STYLE HOUSE, 22 FT KITCHEN & BREAKFAST ROOM, COUNCIL TAX F, 27 FT LOUNGE AND DINING ROOM, 16 FT SITTING ROOM, GARDENS WITH GATES LANE ACCESS, WITHIN WALKING DISTANCE TO, CUL DE SAC LOCATION

Legal Notice

Our comprehensive database is populated by our meticulous research and analysis of public data. MirrorRealEstate strives for accuracy and we make every effort to verify the information. However, MirrorRealEstate is not liable for the use or misuse of the site's information. The information displayed on MirrorRealEstate.com is for reference only.

Real Estate Broker
Peter Alan, Roath
Brokerage
Peter Alan, Roath
Top Tags
Likes

0

Views

14

This website uses cookies to ensure you get the best experience. Learn more