Main Road, Gwaelod-Y-Garth, Cardiff
Property Details
4
2
Detached
Description
Property Details: • Type: Detached • Tenure: N/A • Floor Area: N/A
Key Features: • 19TH CENTURY DETACHED • FOUR BEDROOMS • RARE PARANA PINE FLOORING • TWO ACRES OF LAND • PLANS FOR EXTENSION POTENTIAL • WITHIN YSGOL GWAELOD Y GARTH AND RADYR COMPREHENSIVE CATCHMENT • CLOSE TO M4 AND A470 • GOOD PUBLIC TRANSPORT LINKS • NO ONWARD CHAIN • VIEWINGS HIGHLY RECOMMENDED
Location: • Nearest Station: N/A • Distance to Station: N/A
Agent Information: • Address: 5 Station Road, Radyr, Cardiff, CF15 8AA
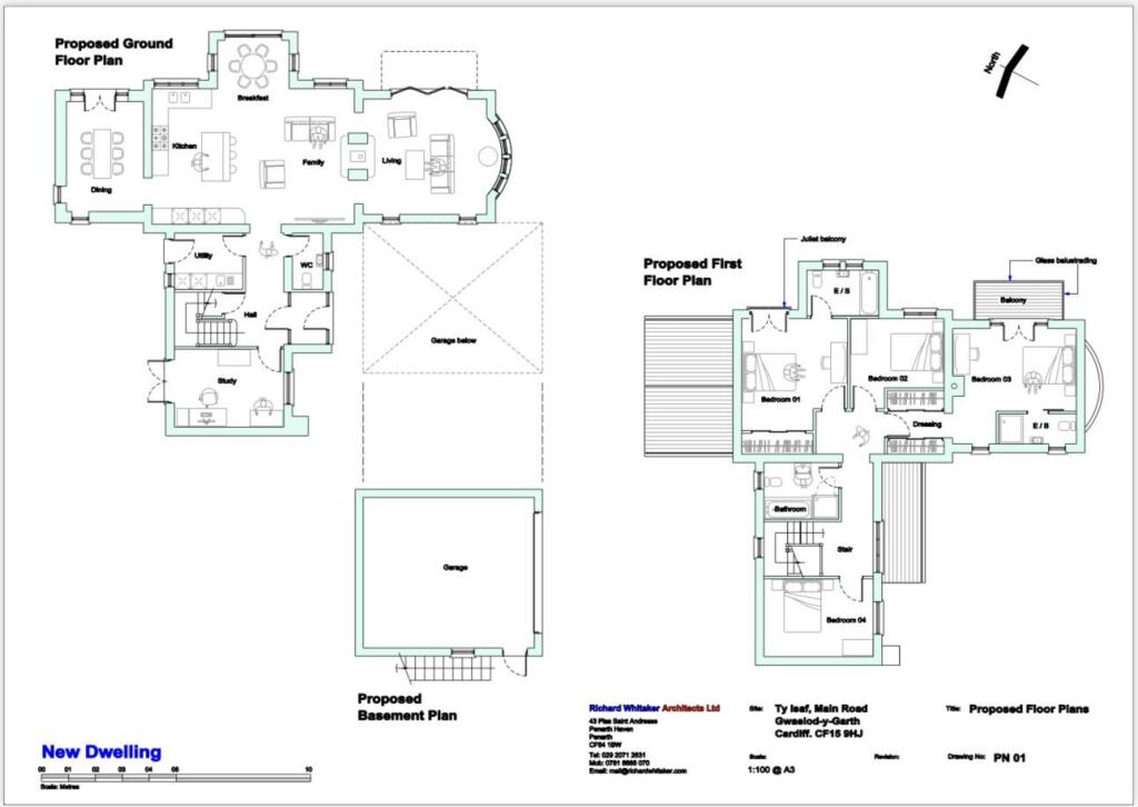
Full Description: A rare opportunity to purchase this charming 19th-century detached residence, set on approximately 2 acres of land, in the picturesque village of Gwaelod y Garth. Set on private plot with elevated and panoramic views, extensive grounds and a wonderful sun terrace. Nestled away on arguably one of the biggest plots in Gwaelod y Garth, this wonderful home has delightful original features, rare parana pine flooring, yet benefits from conventional gas, water and drainage services. The surrounding land offers an exciting opportunity to extend the property and there is superb potential to build a further residence. Please see the architecturally designed property within the listing, but please note, planning has not been applied for or approved. Gwaelod y Garth is a charming semi-rural village located just outside Cardiff, with convenient access to both the M4 motorway and the A470. The area is well-regarded for its excellent schools, such as Ysgol Gwaelod y Garth and Radyr Comprehensive School. Public transport links to Cardiff City Centre are available by bus in the village and the nearby train station at Taffs Well. The accommodation briefly comprises, entrance hallway, lounge, study, dining room, kitchen, conservatory and utility with WC to the ground floor. Two staircases rise to the first floor where you will find four bedrooms, dressing area and a bathroom. This unique property must be viewed to be appreciated and is offered for sale with no onward chain.Entrance - With tiled floor, painted walls with wall lights, exposed beams to the ceiling. Hardwood window with secondary glazing and radiator panel. Doors to all rooms.Utility & Wc - 2.02m x 3.10m (6'7" x 10'2") - With tiled floor, part tiled walls, low level WC and wash hand basin vanity unit. Space and plumbing for washing machine. Wall mounted boiler. Hardwood window with secondary glazing and chrome towel radiator.Kitchen - 4.04m x 3.61m (13'3" x 11'10") - With a range of wall and base units and contrasting work surfaces over. Stainless steel one and half bowl sink with chrome tap. Electric ovens, four ring electric hob with extractor over. Space and plumbing for washing machine and fridge freezer. With part tiled walls and wooden floor. Hardwood windows with secondary glazing and radiator panel.Dining Room - 4.77m x 4.79m (15'7" x 15'8" ) - A further generous principal reception room with wooden floor, painted walls with plate rack and exposed beams to the ceiling. Hardwood windows with secondary glazing and radiator panel. Double doors to;Conservatory - 2.46m x 3.26m (8'0" x 10'8") - with tiled floor, UPVC windows and French doors and polycarbonate roof.Lounge - 4.24m x 5.56m (13'10" x 18'2") - A very generous principal reception room with carpeted floor, painted walls with wall lights, exposed beams to the ceiling. Feature wood burning stove with stone surround and hearth. Hardwood windows with secondary glazing and radiator panels. Door to spiral staircase and door to;Study - 2.11m x 3.57m (6'11" x 11'8") - with carpeted floor, painted walls and smooth ceiling with Velux. Stable door to the gardens, hardwood window and radiator panel.Landing - Via carpeted staircase to landing. Doors to all rooms and loft access.Bedroom One - 5.60m 4.23m (18'4" 13'10") - a generous master bedroom with wooden floor, painted walls and textured ceiling. Built in cupboard, radiator panel and hardwood windows with secondary glazing. Spiral staircase to lounge.En-Suite - 2.11m x 2.02m (6'11" x 6'7") - A three piece suite, to include, panelled bath with overhead electric shower. Low level W.C, pedestal wash hand basin, tiled walls and floor and radiator. Hardwood window with secondary glazing.Bedroom Two - 4.05m x 2.58m (13'3" x 8'5") - a further double bedroom with wooden floor, painted walls and textured ceiling. Built in cupboard, radiator panel and hardwood windows with secondary glazing.Bedroom Three - 2.52m x 2.56m (8'3" x 8'4") - with wooden floor, painted walls and textured ceiling. Radiator panel and hardwood window with secondary glazing.Bedroom Four - 2.80m x 2.35m (9'2" x 7'8") - with wooden floor, painted walls, textured ceiling and radiator panel.Shower Room - 2.18m x 1.57m (7'1" x 5'1") - A three piece suite, to include, double shower with overhead electric shower. Low level W.C, pedestal wash hand basin, tiled walls and carpeted floor and radiator. Hardwood window with secondary glazing.Council Tax - Band HTenure - This property is understood to be Freehold. This will be verified by the purchaser's solicitor.BrochuresMain Road, Gwaelod-Y-Garth, Cardiff
Location
Address
Main Road, Gwaelod-Y-Garth, Cardiff
City
Cardiff
Features and Finishes
19TH CENTURY DETACHED, FOUR BEDROOMS, RARE PARANA PINE FLOORING, TWO ACRES OF LAND, PLANS FOR EXTENSION POTENTIAL, WITHIN YSGOL GWAELOD Y GARTH AND RADYR COMPREHENSIVE CATCHMENT, CLOSE TO M4 AND A470, GOOD PUBLIC TRANSPORT LINKS, NO ONWARD CHAIN, VIEWINGS HIGHLY RECOMMENDED
Legal Notice
Our comprehensive database is populated by our meticulous research and analysis of public data. MirrorRealEstate strives for accuracy and we make every effort to verify the information. However, MirrorRealEstate is not liable for the use or misuse of the site's information. The information displayed on MirrorRealEstate.com is for reference only.