Maldon Road, Hatfield Peverel

GBP 340000 For Sale

Property Details

Bedrooms

2

Bathrooms

1

Property Type

Semi-Detached

Description

Property Details: • Type: Semi-Detached • Tenure: N/A • Floor Area: N/A

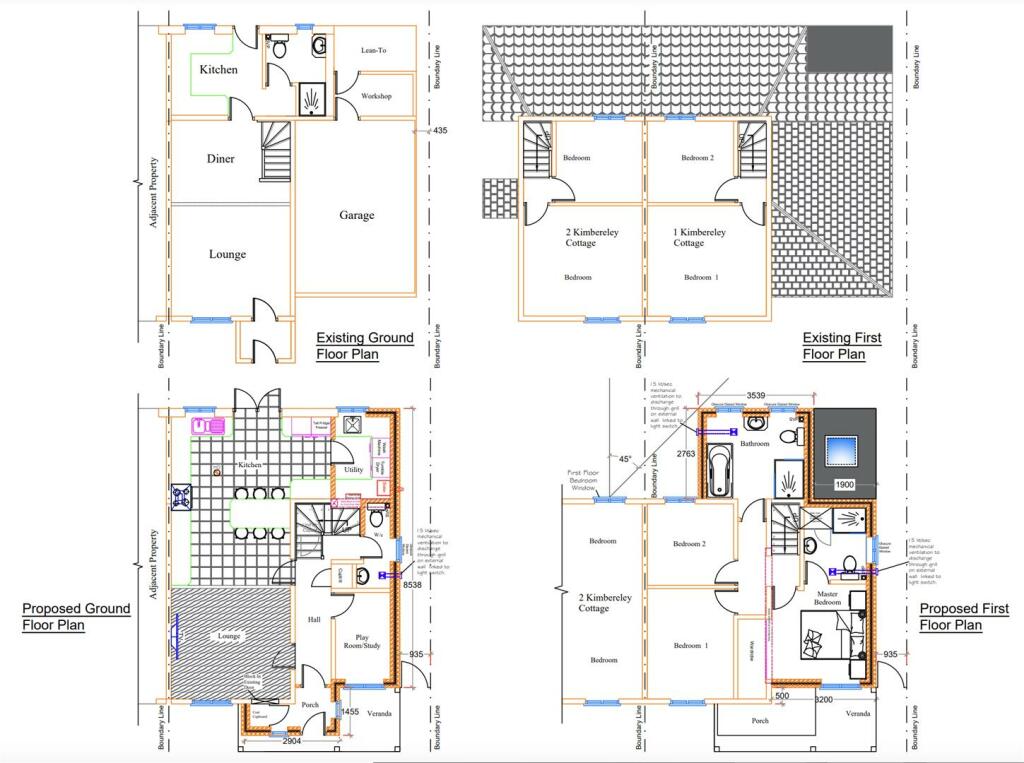
Key Features: • No Onward Chain • Planning permission passed for double storey extension - Ref 21/02548/HH • Gas Central Heating & UPVC Double Glazing • Two Good Size Bedrooms • Modern Fitted Kitchen • 19'4 x 11'9 Lounge/Diner • Modern Fitted Shower Room • Car Port and Ample Off Street Parking • Walking Distance of Train Station and Amenities • EPC - D

Location: • Nearest Station: N/A • Distance to Station: N/A

Agent Information: • Address: Bruce House, 17 The Street, Hatfield Peverel, CM3 2DP

Full Description: A well presented two bedroom semi detached cottage, situated in a popular location within walking distance of the village train station and village amenities. The property benefits from being offered with no onward chain and also has the advantage of planning permission to build a sizeable two storey extension, planning reference 21/02548/HH. The current accommodation includes two good size bedrooms, modern fitted kitchen, 19'3 x 11'8 lounge/dining room and modern shower room. Further features include a secluded south/west facing rear garden, 16'11 x 11' car port plus driveway providing off street parking, gas central heating and UPVC double glazed windows. KEYS HELD FOR VIEWINGS.Location..... - The property is located in the delightful village of Hatfield Peverel, steeped in history and surrounded by natural beauty, offering a tranquil retreat from the hustle and bustle of modern life. Hatfield Peverel railway station is within easy access, offering regular services on the Greater Anglia line, with direct links to London Liverpool Street, making the village a popular choice for commuters to the capital, along with trains to Chelmsford and Colchester. The village is also conveniently located near major road networks, including the A12, a primary route connecting London and East Anglia.There is a variety of dining and shopping options to satisfy every palate and preference. The village is home to a selection of charming pubs, cafes, and restaurants, including the highly regarded Blue Strawberry Bistro. St. Andrew's Junior School is centrally positioned within the village. Secondary schooling can be found nearby in the Towns of Witham and Maldon. There is also further secondary and grammar schooling in the cities of Chelmsford and Colchester. Whilst in the private sector there is New Hall and Felsted. For nature lovers, there are an abundance of scenic walking trails and open spaces to explore. The Hatfield Forest, a National Trust property located just a short drive from the village, offers hiking paths, ancient woodlands and tranquil lakeside views, making it the perfect destination for a day of outdoor adventure. The village is historically significant due to the presence of the 11th century St. Andrew's Church, which stands on the site of a former Benedictine priory.Whether you’re drawn in by the sense of community, the stunning countryside, or the excellent schools, one thing’s for sure, the village has got a whole lot to offer.Distances - Hatfield Peverel Train Station (0.6 miles)Hatfield Peverel Primary School (0.4 miles)A12 Northbound (0.3 miles)A12 Southbound (0.7 miles)Chelmsford City Centre (7.0 miles)(All distances are approximate)Accommodation - Ground Floor - Entrance Porch - Hardwood part glazed entrance door. Double glazed window to side. Tiled flooring. Door to:-Lounge/Dining Room - 19'3" x 11'8" > 8'11" - Double glazed window to front. Two radiators. Wall light points. TV point. Under stairs storage cupboard. Stairs to first floor.Kitchen - 8'9" x 8'0" - Double glazed window and door to rear. Range of modern cream units to base and eye level with stainless steel handles. Laminate work surfaces incorporating stainless steel sink unit with mixer taps. Built in oven with 4 ring gas hob above and extractor hood over. Space for washing machine. Space for fridge. Part tiled walls. Tiled flooring. Radiator. Inset spot lighting.Inner Hallway - Full height fitted storage cupboard. Tiled flooring. Door to:-Shower Room - Obscure double glazed window to rear. Modern white suite comprising large shower cubicle with tiled surround and fitted glass shower screen, low level WC and vanity wash hand basin with storage cupboard below. Fully tiled walls. Tiled flooring. Chrome effect heated towel rail. Extractor fan. Inset spot lighting.First Floor - Bedroom One - 11'8" x 10'11" - Double glazed window to front. Radiator.Bedroom Two - 8'9" x 8'0" - Double glazed window to rear. Radiator. Loft access. Built in bulkhead storage cupboard housing gas fired combi boiler.Landing - Stairs to ground floor. Wall light point.Exterior - Rear Garden - South/West Facing - A pleasant and secluded south/west facing rear garden commencing with a private decked sitting area. Shingled garden with various flowers and shrubs. Dwarf brick wall to one side with raised flower bed. Timber framed shed to remain. Outside water tap and lighting. Door to car port.Front Garden - Block paved driveway leading to car port providing off street parking. Display flower beds.Car Port - 16'11" x 11'0" - Courtesy door to rear leading to small utility area. Power and light connected.Services - Gas central heating. Mains water supply and drainage.Viewings - Strictly by appointment only through the selling agent Paul Mason Associates on .Important Notices - We wish to inform all prospective purchasers that we have prepared these particulars including text, photographs and measurements as a general guide. Room sizes should not be relied upon for carpets and furnishings. We have not carried out a survey or tested the services, appliances and specific fittings. These particulars do not form part of a contract and must not be relied upon as statement or representation of fact.BrochuresMaldon Road, Hatfield PeverelBrochure

Location

Address

Maldon Road, Hatfield Peverel

City

Hatfield Peverel

Features and Finishes

No Onward Chain, Planning permission passed for double storey extension - Ref 21/02548/HH, Gas Central Heating & UPVC Double Glazing, Two Good Size Bedrooms, Modern Fitted Kitchen, 19'4 x 11'9 Lounge/Diner, Modern Fitted Shower Room, Car Port and Ample Off Street Parking, Walking Distance of Train Station and Amenities, EPC - D

Legal Notice

Our comprehensive database is populated by our meticulous research and analysis of public data. MirrorRealEstate strives for accuracy and we make every effort to verify the information. However, MirrorRealEstate is not liable for the use or misuse of the site's information. The information displayed on MirrorRealEstate.com is for reference only.

Real Estate Broker
Paul Mason Associates, Essex
Brokerage
Paul Mason Associates, Essex
Top Tags
Likes

0

Views

62

This website uses cookies to ensure you get the best experience. Learn more