Mallerstang, Kirkby Stephen, Cumbria, CA17
Property Details
4
3
Detached
Description
Property Details: • Type: Detached • Tenure: N/A • Floor Area: N/A
Key Features: • Fantastic Development Opportunity In 0.75 Acre (Approx) • Off Grid Home In The National Park • Planning Permission For A 4 Bedroom House • Beautiful Views & Elevated Position • B4RN Connection Available • Local Occupancy/ Holiday Let Use
Location: • Nearest Station: N/A • Distance to Station: N/A
Agent Information: • Address: Central Chambers Market Place, Leyburn, DL8 5BD
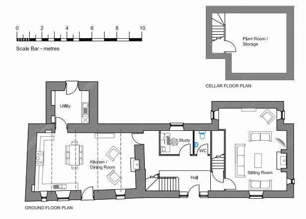
Full Description: Guide Price: £200,000. • Fantastic Development Opportunity In 0.75 Acre (Approx) • Off Grid Home In The National Park • Planning Permission For A 4 Bedroom House • Beautiful Views & Elevated Position • B4RN Connection Available • Local Occupancy/ Holiday Let Use •Carr House, is located in an elevated position in the Mallerstang Valley.The Mallerstang valley became part of the extended Yorkshire Dales National Park in 2016 and is a hidden gem with spectacular landscapes and local landmarks such as the Wild Boar Fell and Mallerstang Edge, beautiful bird & wildlife and the recent re-introduction of red squirrels. Primary & Grammar schools are at Kirkby Stephen and Church at the nearby hamlet of Outhgill. Nearby Nateby offers garage services and The Black Bull Inn with accommodation. There are great road and rail links, train stations on the Settle Carlisle at Garsdale and Kirkby Stephen, with links to main lines and road access to the M6 and A66 are within easy reach.Carr House is an exciting opportunity to develop an off grid home in the Yorkshire Dales. Planning permission has been approved for an extended four bedroom house and the work has been started so the planning cannot lapse. The ground floor accommodation will have a large kitchen diner, living room, study, WC and utility room. There are also plans for a cellar. Upstairs, the drawings comprise four double bedrooms, two with ensuites and a family bathroom.Outside, the grounds are approximately 3/4 of an acre, and could be landscaped to offer plenty of driveway parking and a good size gardens. The long distance views look over Mallerstang and Wild Boar Fell.The planning permission is subject to a local occupancy agreement, meaning the property can be used for either local occupancy or holiday use only. This an exciting opportunity to take on a self-build in the heart of the Yorkshire Dales National Park.Planning PermissionPlanning Permission has been obtained by way of a NEIGHBOURHOOD DEVELOPMENT ORDER "Reinstatement of Carr House and construction of an extension to form 4 bedroom offgrid dwelling for holiday letting or local occupancy housing, Carr House, Mallerstang, Kirkby Stephen, CA17 4JT."
Full planning details available by request.Agents NotesCarr House has the right to install a waste treatment plant in the neighbouring field.
Carr House has the right of access over the field.
Carr House has the right to abstract water from the gill that runs through the property.
B4RN internet connection is available. The fibre optic runs through the road at the bottom and a connection would be required to the house.
There is a footpath that runs through the grounds at the back of the house.
The caravan can remain if required by the purchasers.Off Grid HomesOff-grid homes exist with no connections to gas or electricity grids. People who live in off-grid households supply their own heat and light from other sources. Some rely on a supply of fossil fuels like coal, gas, and oil, others have built renewable systems involving solar panels, heat pumps, and wind turbines, and many use a mix.BrochuresParticulars
Location
Address
Mallerstang, Kirkby Stephen, Cumbria, CA17
City
None
Features and Finishes
Fantastic Development Opportunity In 0.75 Acre (Approx), Off Grid Home In The National Park, Planning Permission For A 4 Bedroom House, Beautiful Views & Elevated Position, B4RN Connection Available, Local Occupancy/ Holiday Let Use
Legal Notice
Our comprehensive database is populated by our meticulous research and analysis of public data. MirrorRealEstate strives for accuracy and we make every effort to verify the information. However, MirrorRealEstate is not liable for the use or misuse of the site's information. The information displayed on MirrorRealEstate.com is for reference only.