Marble Alley, Studley, Warwickshire, B80

GBP 270000 For Sale

Property Details

Property Type

Land

Description

Property Details: • Type: Land • Tenure: N/A • Floor Area: N/A

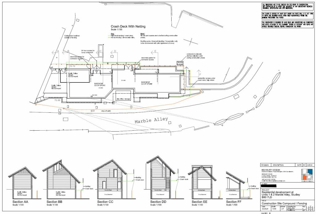
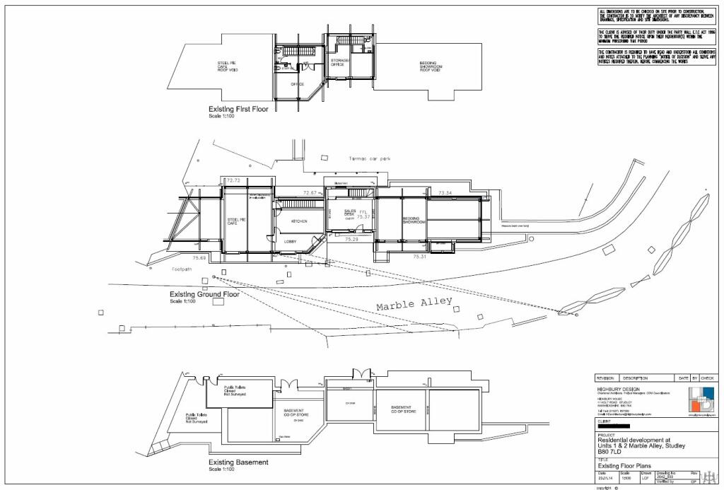
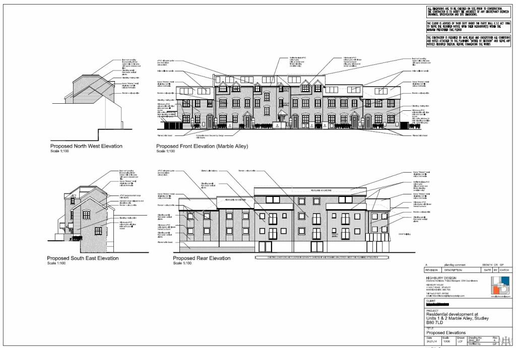
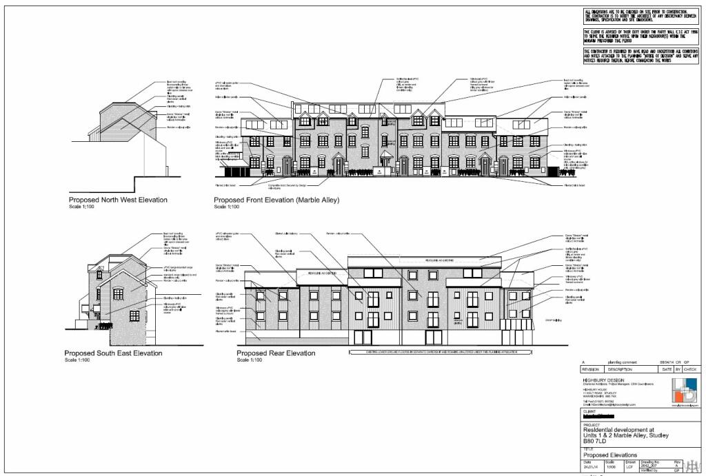
Key Features: • Development opportunity • 5 town houses and 4 apartments • Village location • Close to amenities

Location: • Nearest Station: Redditch Station • Distance to Station: 3.1 miles

Agent Information: • Address: Estate House, 12 Church Green East, Redditch, B98 8BP

Full Description: DEVELOPMENT OPPORTUNITY in the heart of Studley. FOR SALE VIA MODERN METHOD OF AUCTIONDEVELOPMENT OPPORTUNITY in the heart of Studley.A former cafe and retail unit with consent to construct 9 dwellings consisting of 5 Town Houses and 4 Apartments. This exciting opportunity will provide both development and investment oportunities. More information can be provided by contacting our Redditch office on or email This property is for sale by the Modern Method of Auction. Should you view, offer or bid on the property, your information will be shared with the Auctioneer, iamsold.This method of auction requires both parties to complete the transaction within 56 days of the draft contract for sale being received by the buyers solicitor. This additional time allows buyers to proceed with mortgage finance (subject to lending criteria, affordability and survey).The buyer is required to sign a reservation agreement and make payment of a non-refundable Reservation Fee. This being 4.50% of the purchase price including VAT, subject to a minimum of £6,600.00 including VAT. The Reservation Fee is paid in addition to purchase price and will be considered as part of the chargeable consideration for the property in the calculation for stamp duty liability.Buyers will be required to go through an identification verification process with iamsold and provide proof of how the purchase would be funded.This property has a Buyer Information Pack which is a collection of documents in relation to the property. The documents may not tell you everything you need to know about the property, so you are required to complete your own due diligence before bidding. A sample copy of the Reservation Agreement and terms and conditions are also contained within this pack.The buyer will also make payment of £300.00 including VAT towards the preparation cost of the pack, where it has been provided by iamsold.The property is subject to an undisclosed Reserve Price with both the Reserve Price and Starting Bid being subject to change.Referral ArrangementsThe Partner Agent and Auctioneer may recommend the services of third parties to you. Whilst these services are recommended as it is believed they will be of benefit; you are under no obligation to use any of these services and you should always consider your options before services are accepted.Where services are accepted the Auctioneer or Partner Agent may receive payment for the recommendation and you will be informed of any referral arrangement and payment prior to any services being taken by you.No statement in these details is to be relied upon as representation of fact, and purchasers should satisfy themselves by inspection or otherwise as to the accuracy of the statements contained within. These details do not constitute any part of any offer or contract. AP Morgan and their employees and agents do not have any authority to give any warranty or representation whatsoever in respect of this property. These details and all statements herein are provided without any responsibility on the part of AP Morgan or the vendors. Equipment: AP Morgan has not tested the equipment or central heating system mentioned in these particulars and the purchasers are advised to satisfy themselves as to the working order and condition. Measurements: Great care is taken when measuring, but measurements should not be relied upon for ordering carpets, equipment, etc. The Laws of Copyright protect this material. AP Morgan is the Owner of the copyright. This property sheet forms part of our database and is protected by the database right and copyright laws. No unauthorised copying or distribution without permission..BrochuresParticulars

Location

Address

Marble Alley, Studley, Warwickshire, B80

City

Warwickshire

Features and Finishes

Development opportunity, 5 town houses and 4 apartments, Village location, Close to amenities

Legal Notice

Our comprehensive database is populated by our meticulous research and analysis of public data. MirrorRealEstate strives for accuracy and we make every effort to verify the information. However, MirrorRealEstate is not liable for the use or misuse of the site's information. The information displayed on MirrorRealEstate.com is for reference only.

Real Estate Broker
A P Morgan, Redditch
Brokerage
A P Morgan, Redditch
Top Tags
Village location Close to amenities
Likes

0

Views

73

This website uses cookies to ensure you get the best experience. Learn more