Marine Parade, Eastbourne

GBP 480000 For Sale

Property Details

Bedrooms

3

Bathrooms

2

Property Type

Terraced

Description

Property Details: • Type: Terraced • Tenure: N/A • Floor Area: N/A

Key Features: • Victorian Terraced Townhouse on Eastbourne's Seafront • 3/4 Bedrooms • Dining Room • Sitting Room • Kitchen • Beach Room/Bedroom 2 with 2 x Balconies • Bathroom/WC • En-Suite Shower Room/WC • Courtyard Garden • CHAIN FREE

Location: • Nearest Station: N/A • Distance to Station: N/A

Agent Information: • Address: 15 Cornfield Road Eastbourne BN21 4QD

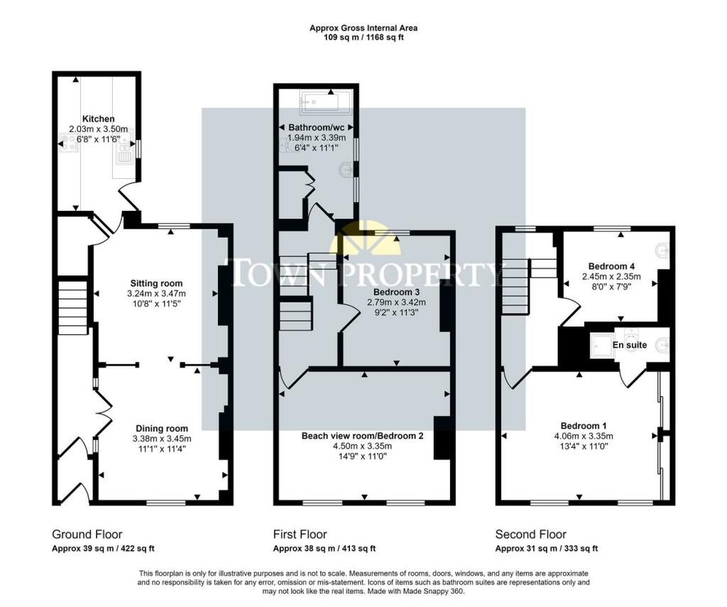
Full Description: *** Guide Price £480,000 - £490,000 ***A rare opportunity exists to acquire this Grade 2 listed prestigious Victorian townhouse that is located directly on Eastbourne’s picturesque seafront where direct views towards to sea, Pier and towards Hastings can be enjoyed. Arranged with three/four bedrooms and two/three receptions, the property has been used as a second home by the current owners and comes with all contents included within the sale. Polished parquet flooring extends throughout the principle reception rooms and the fitted kitchen provides direct access to the rear courtyard. A well appointed bathroom/wc can be found on the first floor and en suite facilities compliment the master bedroom. Presented to a high standard throughout, this charming home retains much character and overlooks the ‘World Garden’ and is a pleasant walk from nearby shops and all the amenities you could wish for. The mainline railway station with direct trains to London is only a few minutes away and the theatre district, Towner art gallery and Beacon shopping centre further serve to provide places of interest. Eastbourne’s exciting marina development and Meads Village are also approximately one mile distant. This property is considered to be an excellent home or investment property. Being sold CHAIN FREE.Entrance - Door to-Entrance Vestibule - Inner door to-Entrance Hallway - Radiator. Wood block flooring.Dining Room - 3.45m x 3.38m (11'4 x 11'1) - Radiator. Fireplace with ornate surround and mantel above. Wood block flooring. Glazed window to front aspect with fitted shutters.Sitting Room - 3.48m x 3.25m (11'5 x 10'8) - Radiator. Wood block flooring. Understairs cupboard. Glazed window to rear aspect.Kitchen - 3.51m x 2.03m (11'6 x 6'8) - Range of units comprising of bowl and a half single drainer sink unit and mixer tap with part tiled walls and surrounding work surfaces with cupboards and drawers under. Inset four ring electric hob and electric oven under. Integrated refrigerator, washing machine and tumble dryer. Range of wall mounted units. Extractor. Concealed wall mounted gas boiler. Tiled flooring. Window to side aspect. Stable door to rear courtyard.Stairs From Ground To First Floor Landing - Beach Room/Bedroom 2 - 4.50m x 3.35m (14'9 x 11'0) - Radiator. Feature fireplace with mantel above. Carpet. Window to front aspect. Two balconies.Bedroom 3 - 3.43m x 2.79m (11'3 x 9'2) - Radiator. Carpet. Window to rear aspect.Bathroom/Wc - Panelled corner bath with mixer tap and shower attachment. Pedestal wash hand basin. Low level WC. Radiator. Carpet. Tiled walls. Airing cupboard. Frosted window.Staircase From First To Second Floor Landing: - Access to loft (not inspected). Window to rear.Bedroom 1 - 4.06m x 3.35m (13'4 x 11'0) - Radiator. Carpet. Secondary glazed window to front aspect.En-Suite Shower Room/Wc - Fully tiled shower cubicle. Low level WC. Pedestal wash hand basin.Bedroom 4 - 2.44m x 2.36m (8'0 x 7'9) - Radiator. Carpet. Wash hand basin. Window to rear aspect.Outside - There is a small gated courtyard to the rear of the property.Agents Note: - All contents included within the sale as seen.Council Tax Band = D - Epc = D - BrochuresMarine Parade, Eastbourne

Location

Address

Marine Parade, Eastbourne

City

Marine Parade

Features and Finishes

Victorian Terraced Townhouse on Eastbourne's Seafront, 3/4 Bedrooms, Dining Room, Sitting Room, Kitchen, Beach Room/Bedroom 2 with 2 x Balconies, Bathroom/WC, En-Suite Shower Room/WC, Courtyard Garden, CHAIN FREE

Legal Notice

Our comprehensive database is populated by our meticulous research and analysis of public data. MirrorRealEstate strives for accuracy and we make every effort to verify the information. However, MirrorRealEstate is not liable for the use or misuse of the site's information. The information displayed on MirrorRealEstate.com is for reference only.

Real Estate Broker
Town Property/Town Flats/Town Rentals, Eastbourne
Brokerage
Town Property/Town Flats/Town Rentals, Eastbourne
Top Tags
3/4 Bedrooms Dining Room Sitting Room Kitchen
Likes

0

Views

45

This website uses cookies to ensure you get the best experience. Learn more