Marshlands Road, Little Neston, Neston

GBP 350000 For Sale

Property Details

Property Type

Land

Description

Property Details: • Type: Land • Tenure: N/A • Floor Area: N/A

Key Features: • Full Planning Approved • 15/02384/FUL • 2 x Detached houses • Far reaching Welsh Hill views • GDV £1,100,000

Location: • Nearest Station: Neston Station • Distance to Station: 0.9 miles

Agent Information: • Address: 23 Pensby Road, Heswall, Wirral, CH60 7RA

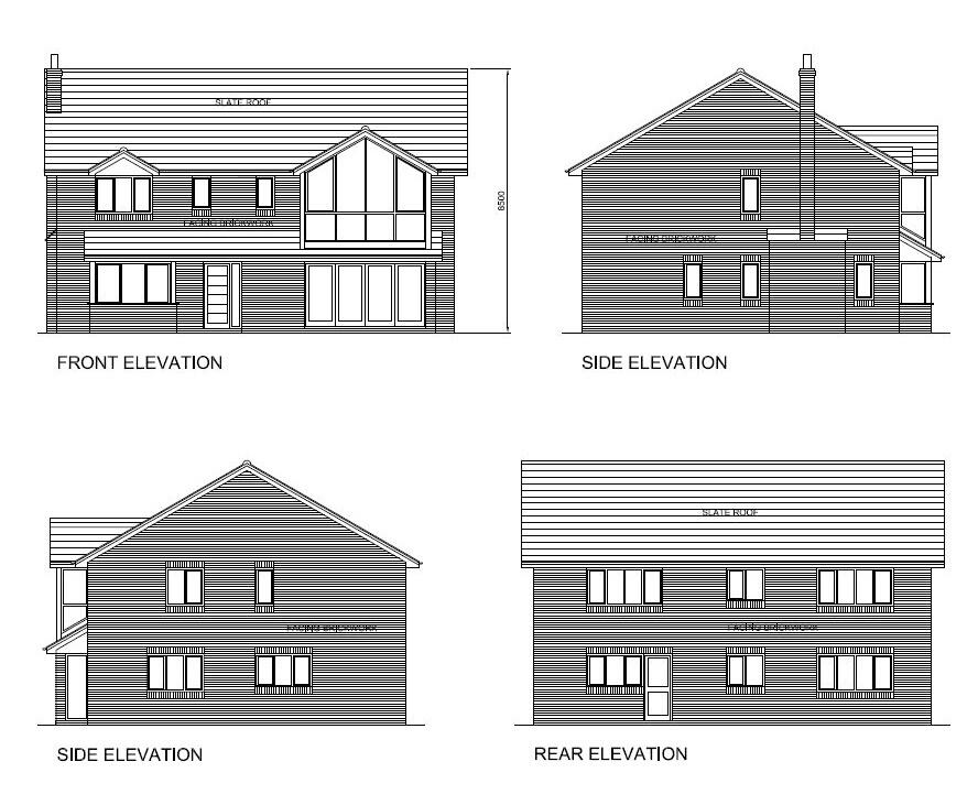
Full Description: Full planning permission approved! Located on the banks of the Dee Estuary and enjoying unrestricted views is this development of two detached houses.Title: Freehold CH207457 / CH678754Site Size: Plot A 0.18 Acres / Plot B 0.17 AcresHouses A = 2713 sq ft 4 bedroom detachedHouse B = 2531 sq ft 4 bedroom detachedApplication: 15/02384/FUL - Approval Construction of two detached houses.Local Authority: Cheshire West & ChesterGDV: £1,100,000Access: shared driveway with existing house to access Marshlands Road.Drainage: will be to a septic tank/waste treatment unitViews: a legal agreement is to be prepared with the current owners that the view will remain in front of the plots whereby no trees, shrubs or structures are to be erected that could limit the view.For further details and to arrange a site visit, please call Karl Tatler on .

Location

Address

Marshlands Road, Little Neston, Neston

City

Neston

Features and Finishes

Full Planning Approved, 15/02384/FUL, 2 x Detached houses, Far reaching Welsh Hill views, GDV £1,100,000

Legal Notice

Our comprehensive database is populated by our meticulous research and analysis of public data. MirrorRealEstate strives for accuracy and we make every effort to verify the information. However, MirrorRealEstate is not liable for the use or misuse of the site's information. The information displayed on MirrorRealEstate.com is for reference only.

Real Estate Broker
Karl Tatler Estate Agents, Heswall
Brokerage
Karl Tatler Estate Agents, Heswall
Top Tags
2 x Detached houses GDV £1
Likes

0

Views

123

This website uses cookies to ensure you get the best experience. Learn more