Meadow View, Dosthill Road, Dosthill, Tamworth B77 1JB
Property Details
3
2
Detached
Description
Property Details: • Type: Detached • Tenure: N/A • Floor Area: N/A
Key Features: • EXCLUSIVE DEVELOPMENT OF 7 BRAND NEW HOMES • TWO, THREE AND FOUR BEDROOMS • CUL DE SAC LOCATION • AIR SOURCE HEATING • POPULAR LOCATION CLOSE TO TAMWORTH • VIEWINGS AVAILABLE NOW!
Location: • Nearest Station: N/A • Distance to Station: N/A
Agent Information: • Address: First Floor, 5 High Street, Aldridge, WS9 8LX
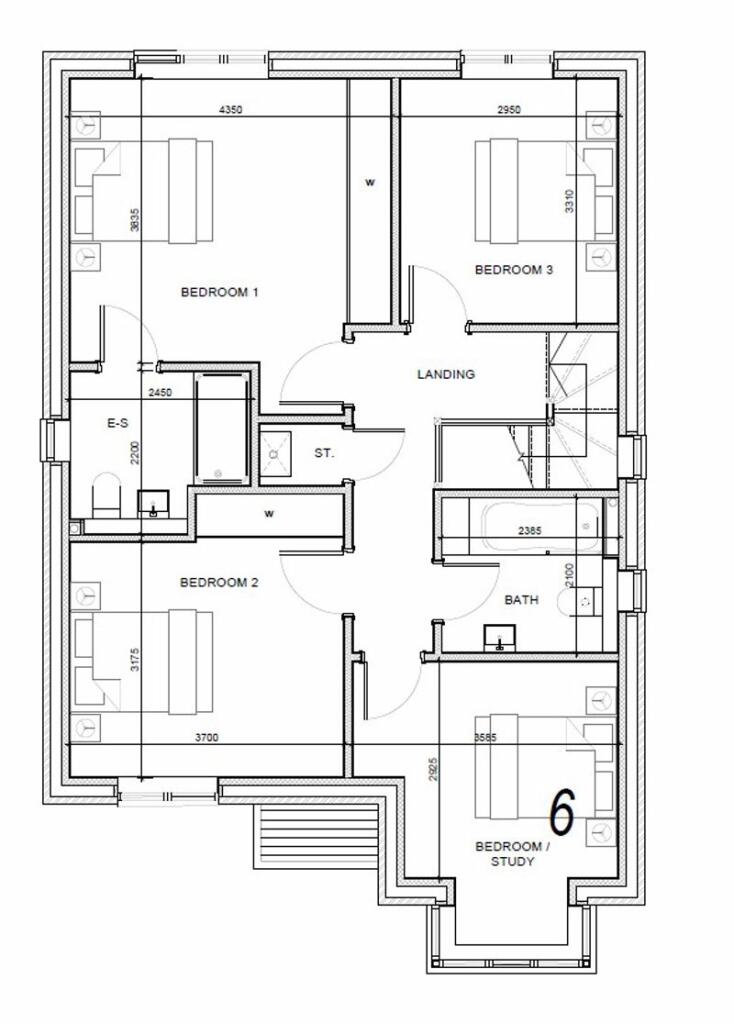
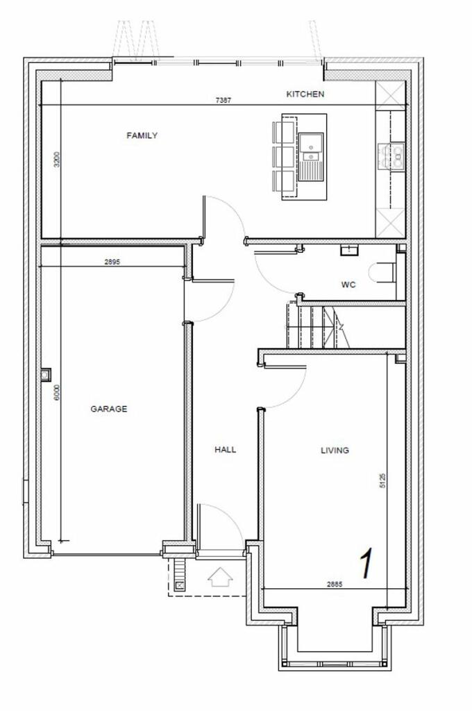
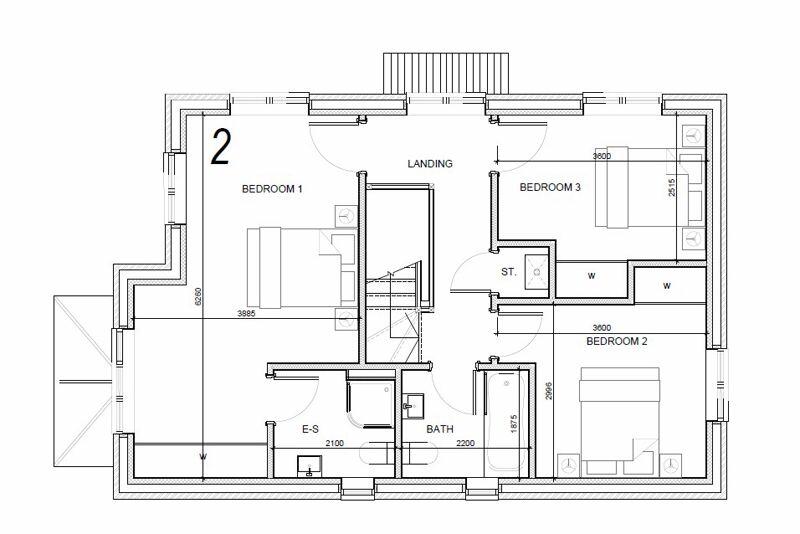
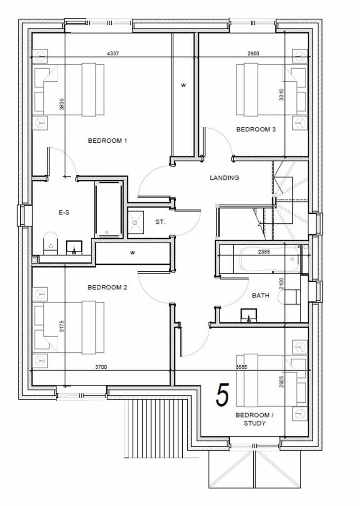
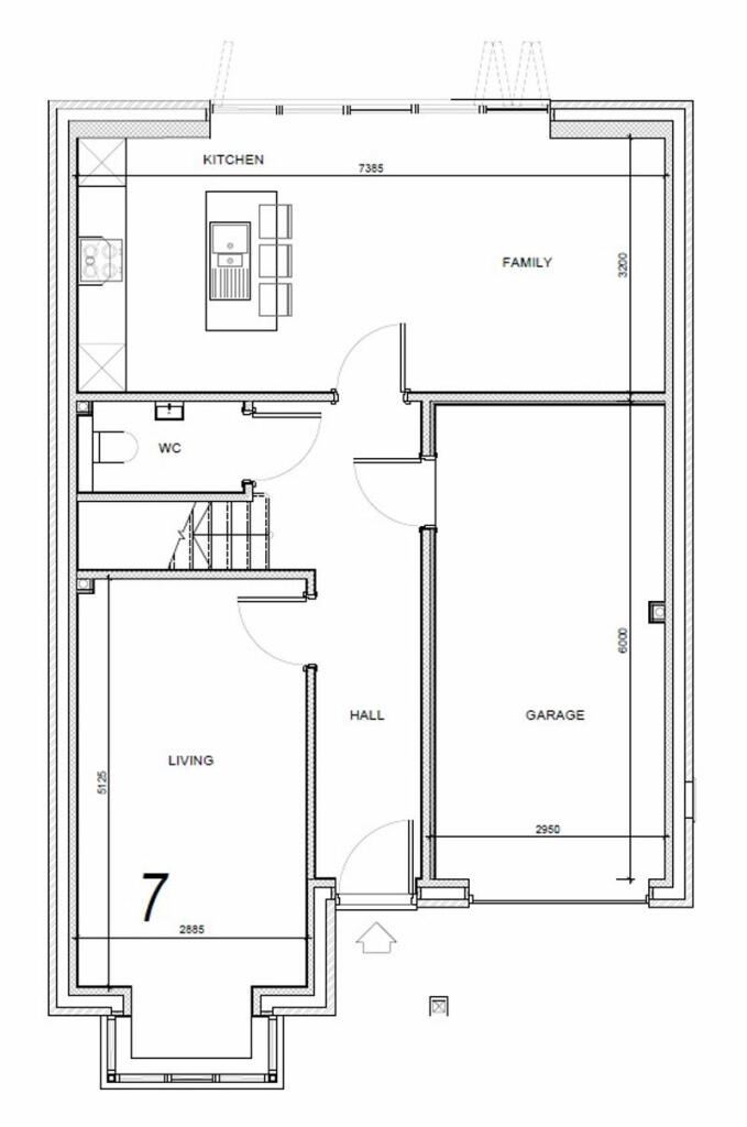
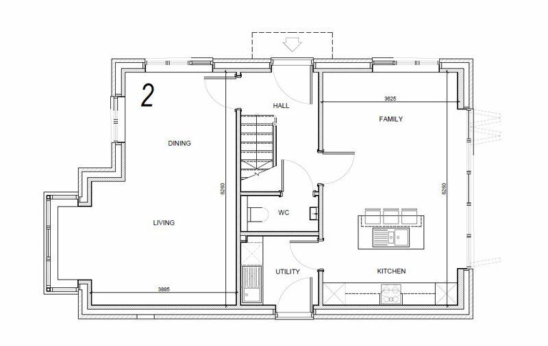
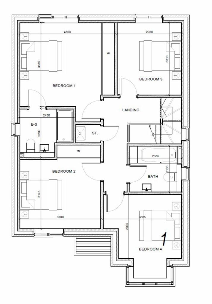
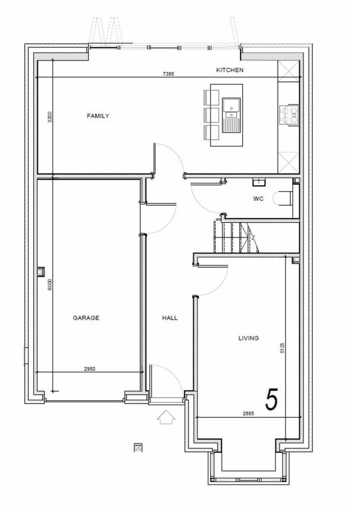
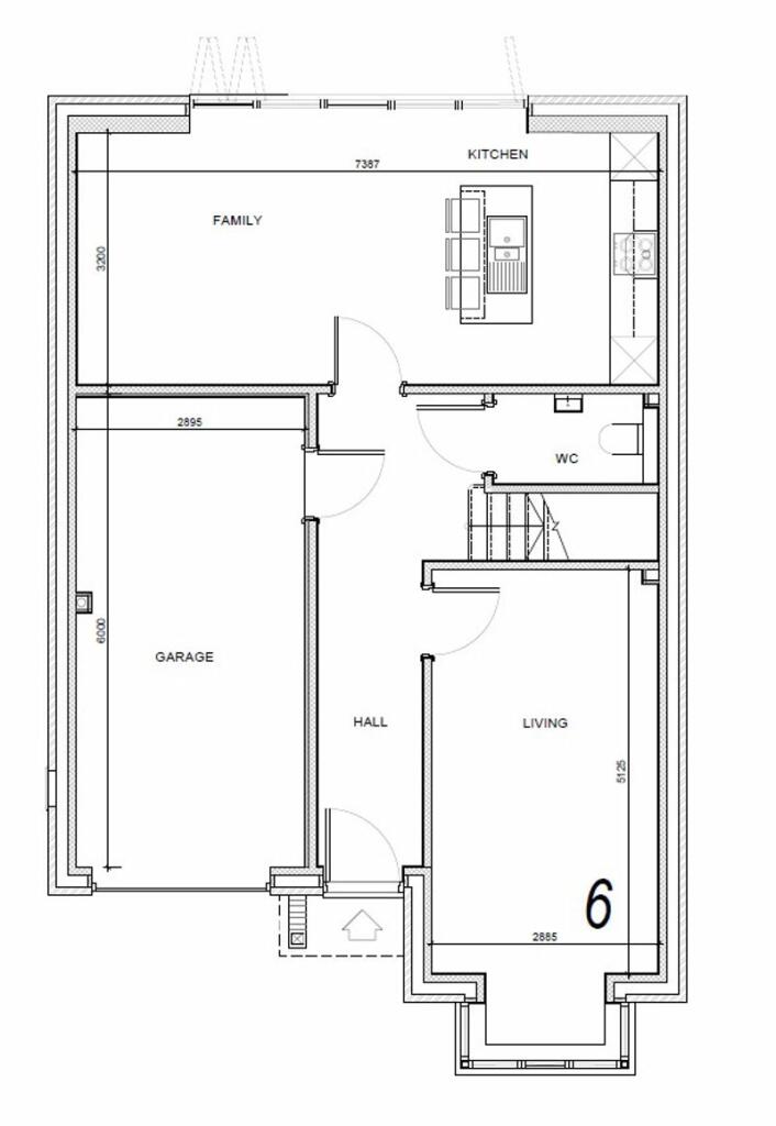
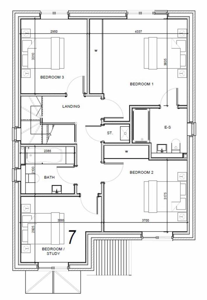
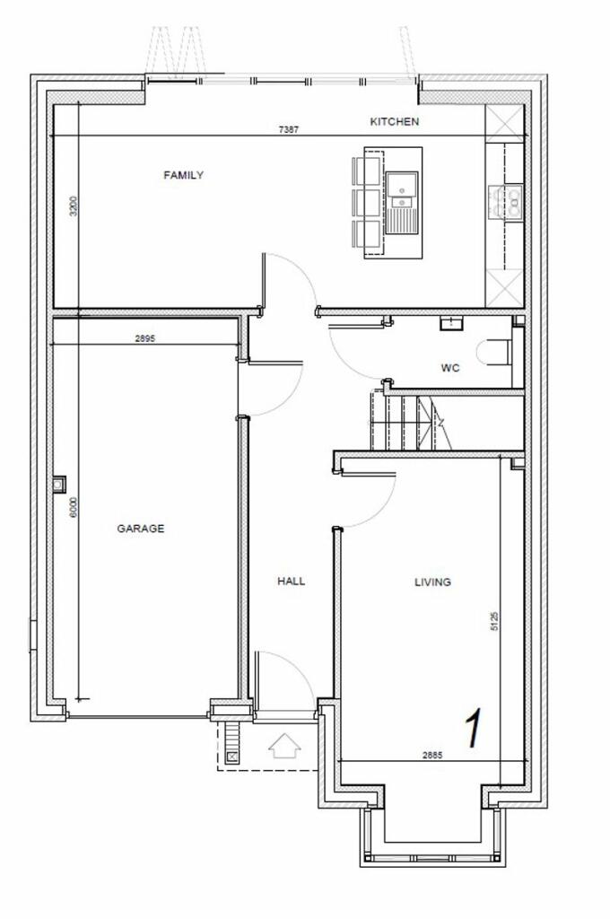
Full Description: 'Meadow View' is an exclusive development of just seven high-specification homes set within a cul de sac in the popular area of Dosthill, Tamworth. Each home boasts a high standard of specification and build quality featuring luxury details like Mullion stone sil's, composite front doors, oak coloured internal doors and block paved driveways.PLOT 1: FOUR BEDROOM DETACHED. FRONT LIVING ROOM, FULL WIDTH KITCHEN/DINER, ENSUITE SHOWER ROOM, FAMILY BATHROOM, INTEGRAL GARAGE.PLOT 2: THREE BEDROOM DETACHED. THROUGH LOUNGE/DINING ROOM, KITCHEN/DINER, FAMILY BATHROOM, ENSUITE SHOWER ROOM.PLOTS 5, 6 AND 7: THREE BEROOM DETACHED PLUS FIRST FLOOR STUDY/ POTENTIAL FOURTH BEDROOM. FRONT LIVING ROOM, FULL WIDTH KITCHEN/DINER, FAMILY BATHROOM, ENSUITE SHOWER ROOM, INTEGRAL GARAGE.Heating is provided by an air source heat pump with underfloor heating to the ground floor and radiators to the first floor.Call Paul Carr Land & New Homes for further information on .BrochuresFull Details
Location
Address
Meadow View, Dosthill Road, Dosthill, Tamworth B77 1JB
City
Tamworth
Features and Finishes
EXCLUSIVE DEVELOPMENT OF 7 BRAND NEW HOMES, TWO, THREE AND FOUR BEDROOMS, CUL DE SAC LOCATION, AIR SOURCE HEATING, POPULAR LOCATION CLOSE TO TAMWORTH, VIEWINGS AVAILABLE NOW!
Legal Notice
Our comprehensive database is populated by our meticulous research and analysis of public data. MirrorRealEstate strives for accuracy and we make every effort to verify the information. However, MirrorRealEstate is not liable for the use or misuse of the site's information. The information displayed on MirrorRealEstate.com is for reference only.