Mells Lane, Chantry, Chantry, BA11
Property Details
Plot
Description
Property Details: • Type: Plot • Tenure: N/A • Floor Area: N/A
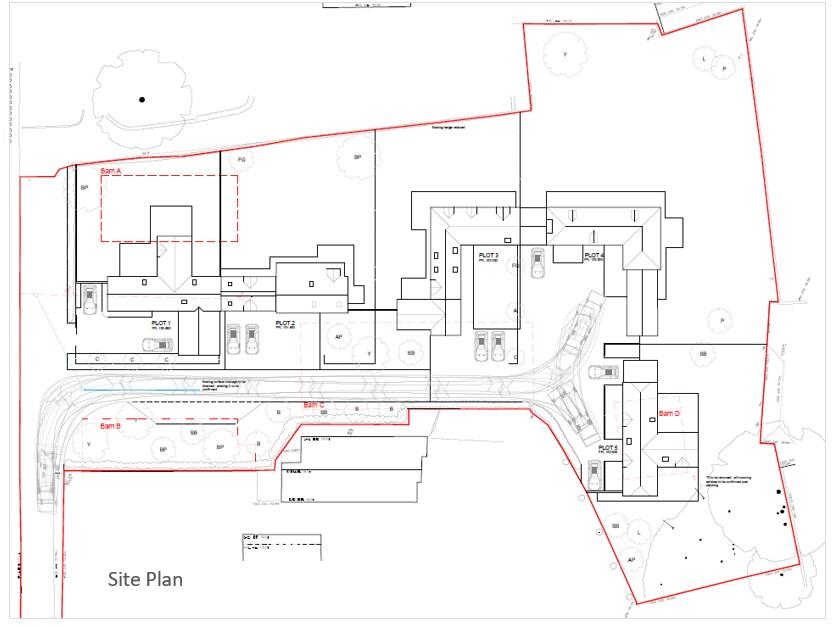
Key Features: • Superb residential development site with full planning • Consent for five quality new build homes • Courtyard design • Planning reference 2024/0622/FUL • Rural but convenient location • Close by to the popular town of Frome
Location: • Nearest Station: Frome Station • Distance to Station: 4.0 miles
Agent Information: • Address: 6 The Bridge, Frome, BA11 1AR
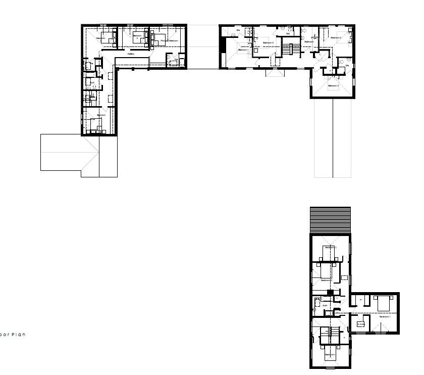
Full Description: Description - Orcadia Farm will benefit from full planning consent for the erection of five dwellings and associated development following the demolition of the existing barns.After all phases of development are complete this will be a low-density site, providing an excellent opportunity to create a unique development of quality homes with gardens and parking in a rural location close to the Town of Frome.The site currently comprises of a selection of redundant barns, it will be the responsibility of the purchaser to clear any remaining structures. The topography is level, and access is via a shared driveway.Cooper and Tanner residential office will be well placed to comment upon the local market and provide guidance on potential completed development sales prices. But parties must undertake their own investigations and satisfy themselves in respect of potential scheme end values.Planning - Planning was approved on 14/2/2025, further details regarding the planning consent are available from the selling agent or can be found via the Somerset (Mendip) Council online Planning Portal using reference 2024/0622/FUL. Interested parties must satisfy their own planning investigations.Location - Situated in the Somerset village of Chantry, located between the villages of Nunney and Mells which both offer amenities such as cafés, shops and pubs.The nearby town of Frome offers a wider variety of shops, restaurants and pubs, while the City of Bath famous for its Roman Baths and Georgian architecture is only a short drive away.There are beautiful countryside walks right on the doorstep as well as on The Mendip Hills, an Area of Outstanding Natural Beauty offering fantastic hiking and cycling opportunities.Plot DetailsPlot 1 4 Bedrooms, plus garage 232sqmPlot 2 3 Bedrooms, plus carport and store 193sqmPlot 3 4 Bedrooms, plus garage 220sqmPlot 4 4 Bedrooms, plus garage and carport 241sqmPlot 5 4 Bedrooms, plus garage 232sqmTotal Floor Area 1,118sqmMethod of Sale - Private Treaty.Local Council - Somerset Council (former Mendip area)Services - New mains water and electric supply required and private drainage system. Prospective purchasers must satisfy themselves as to the location and capacity of any services.Tenure - Freehold. Vacant possession upon completion.Viewings - Strictly by prior appointment with Cooper and Tanner. Tel. . Please note this is a former working yard and suitable precautions and care should be taken during viewings.development-propertyBrochuresBrochure 1
Location
Address
Mells Lane, Chantry, Chantry, BA11
City
Ipswich
Features and Finishes
Superb residential development site with full planning, Consent for five quality new build homes, Courtyard design, Planning reference 2024/0622/FUL, Rural but convenient location, Close by to the popular town of Frome
Legal Notice
Our comprehensive database is populated by our meticulous research and analysis of public data. MirrorRealEstate strives for accuracy and we make every effort to verify the information. However, MirrorRealEstate is not liable for the use or misuse of the site's information. The information displayed on MirrorRealEstate.com is for reference only.