Mere Road, Erdington, Birmingham

GBP 220000 For Sale

Property Details

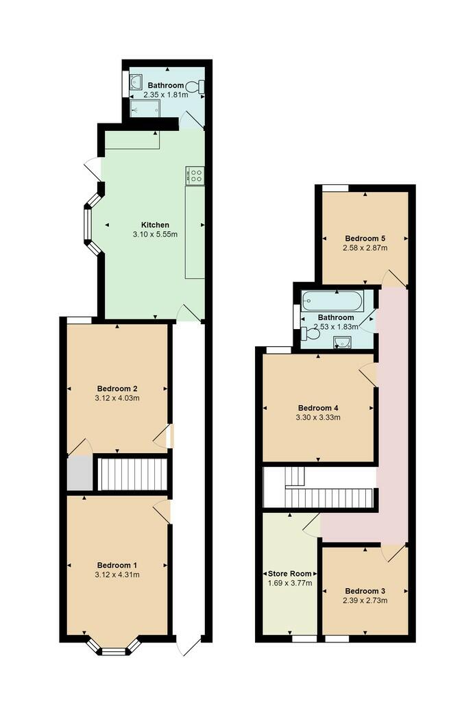
Bedrooms

5

Bathrooms

2

Property Type

Terraced

Description

Property Details: • Type: Terraced • Tenure: Freehold • Floor Area: N/A

Key Features: • Investment Opportunity • Rental Income £23.80k Per Year • All Flats Fully Occupied On AST's • Producing 9.7% Gross Yield • Substantial Property • x6 Bedrooms • x2 Bathrooms • 15 mins walk to Gravelly Hill Train Station • Contact Office For Further Details About This Opportunity • Video Tour Available On HC Website

Location: • Nearest Station: N/A • Distance to Station: N/A

Agent Information: • Address: 306 Rookery Road, Handsworth, Birmingham, B21 9QG

Full Description: HMO LICENSEDInvestment opportunity to earn a steady income from this substantial property which has been converted into x6 roomsThe property offers communal kitchen/diner, x1 bathroom, x1 shower roomLet on individual AST's to long term tenants, this property presents a opportunity for investor to purchase a ready made investment with an average 9.7% gross yieldRoom 1 £380 pcm (£4560 per annum)Room 2 £310 pcm (£3720 per annum)Room 3 £350 pcm (£4200 per annum)Room 4 £450 pcm (£5400 per annum)Room 5 £120 pcm (£1440 per annum)Room 6 £375 pcm (£4500 per annum)Total Rental Income: £1,985pcm ( £23,820per annum)Average 9.7% gross yieldLandlord to pay all utility bills including broadbandEPC Rating - DCouncil Tax Band - BHMO LICENSEDBuyers fee of 2% of the purchase price *terms & conditions applyContact office for further details

Location

Address

Mere Road, Erdington, Birmingham

City

Erdington

Features and Finishes

Investment Opportunity, Rental Income £23.80k Per Year, All Flats Fully Occupied On AST's, Producing 9.7% Gross Yield, Substantial Property, x6 Bedrooms, x2 Bathrooms, 15 mins walk to Gravelly Hill Train Station, Contact Office For Further Details About This Opportunity, Video Tour Available On HC Website

Legal Notice

Our comprehensive database is populated by our meticulous research and analysis of public data. MirrorRealEstate strives for accuracy and we make every effort to verify the information. However, MirrorRealEstate is not liable for the use or misuse of the site's information. The information displayed on MirrorRealEstate.com is for reference only.

Real Estate Broker
Henley Charles, Handsworth
Brokerage
Henley Charles, Handsworth
Top Tags
Likes

0

Views

31

This website uses cookies to ensure you get the best experience. Learn more