Mere Road, Erdington, Birmingham
Property Details
5
2
Terraced
Description
Property Details: • Type: Terraced • Tenure: FREEHOLD • Floor Area: N/A
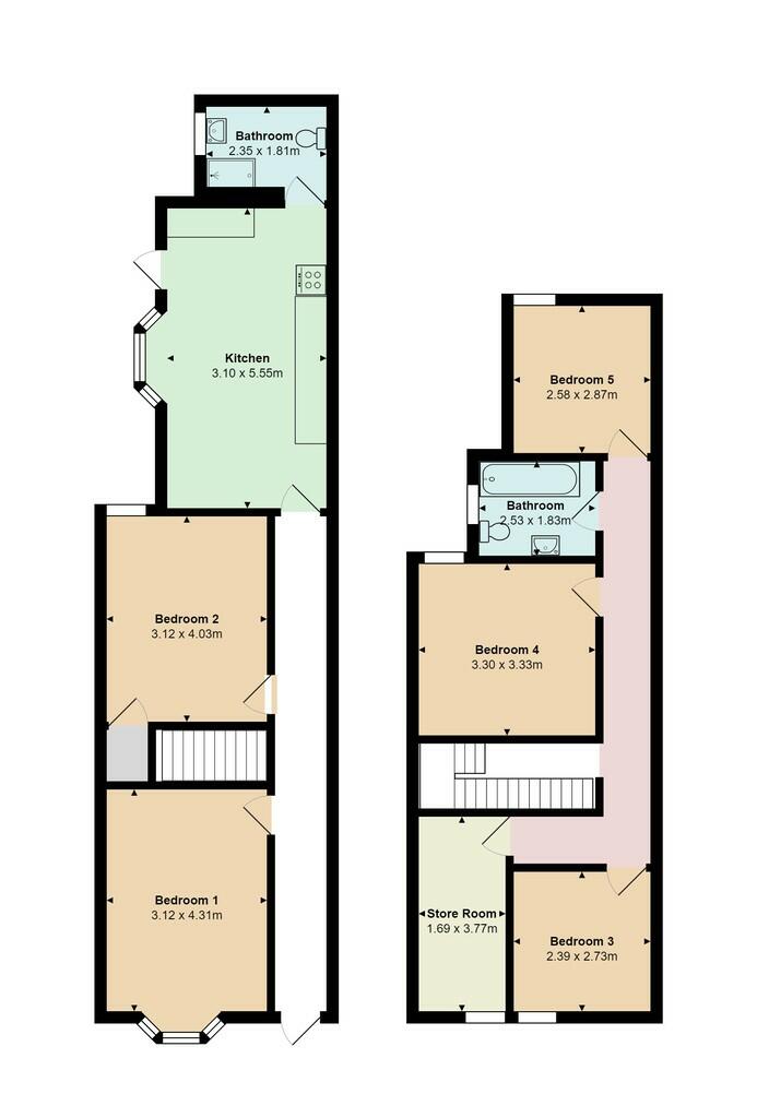
Key Features: • Investment Opportunity • Rental Income £23.80k Per Year • All Flats Fully Occupied On AST's • Producing 9.7% Gross Yield • Substantial Property • x6 Bedrooms • x2 Bathrooms • 15 mins walk to Gravelly Hill Train Station • Contact Office For Further Details About This Opportunity • Video Tour Available On HC Website
Location: • Nearest Station: Gravelly Hill Station • Distance to Station: 0.4615149250841173 miles
Agent Information: • Address: 306 Rookery Road, Handsworth, Birmingham, B21 9QG
Full Description: <strong></strong> <strong></strong> HMO LICENSED<br />Investment opportunity to earn a steady income from this substantial property which has been converted into x6 rooms<br />The property offers communal kitchen/diner, x1 bathroom, x1 shower room<br /><br />Let on individual AST's to long term tenants, this property presents a opportunity for investor to purchase a ready made investment with an average 9.7% gross yield<br /><br /><br />Room 1 £380 pcm (£4560 per annum)<br />Room 2 £310 pcm (£3720 per annum)<br />Room 3 £350 pcm (£4200 per annum)<br />Room 4 £450 pcm (£5400 per annum)<br />Room 5 £120 pcm (£1440 per annum)<br />Room 6 £375 pcm (£4500 per annum)<br /><br />Total Rental Income: £1,985pcm ( £23,820per annum)<br />Average 9.7% gross yield<br /><br />Landlord to pay all utility bills including broadband<br />EPC Rating - D<br />Council Tax Band - B<br />HMO LICENSED<br /><br /><br />Buyers fee of 2% of the purchase price *terms & conditions apply<br />Contact office for further details
Location
Address
Mere Road, Erdington, Birmingham
City
Erdington
Features and Finishes
Investment Opportunity, Rental Income £23.80k Per Year, All Flats Fully Occupied On AST's , Producing 9.7% Gross Yield, Substantial Property, x6 Bedrooms, x2 Bathrooms, 15 mins walk to Gravelly Hill Train Station, Contact Office For Further Details About This Opportunity, Video Tour Available On HC Website
Legal Notice
Our comprehensive database is populated by our meticulous research and analysis of public data. MirrorRealEstate strives for accuracy and we make every effort to verify the information. However, MirrorRealEstate is not liable for the use or misuse of the site's information. The information displayed on MirrorRealEstate.com is for reference only.