Mill of Boddam, Insch, AB52
Property Details
Land
Description
Property Details: • Type: Land • Tenure: N/A • Floor Area: N/A
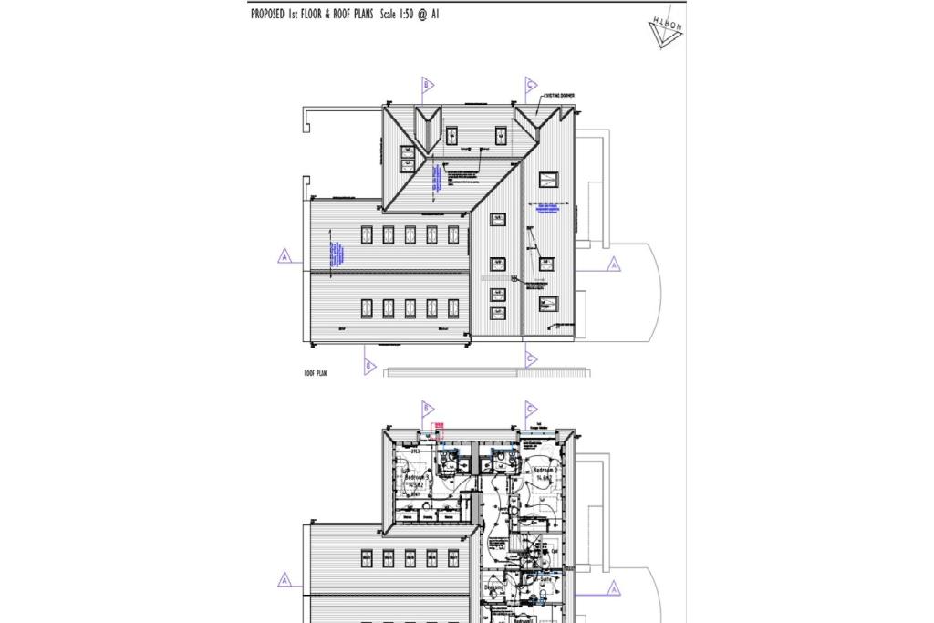
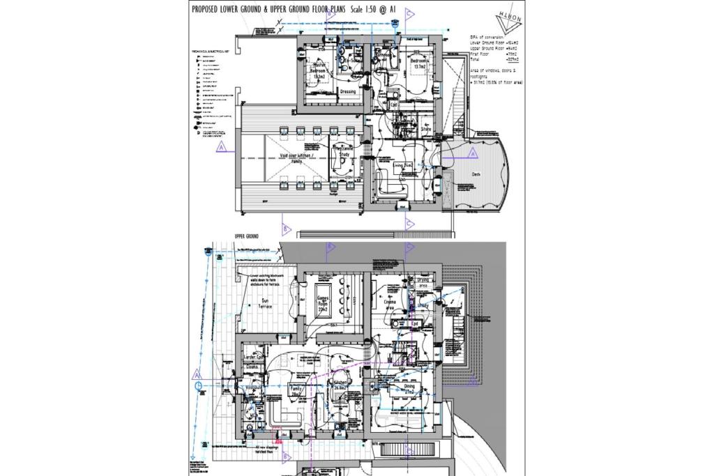
Key Features: • Fantastic Substantial Former Watermill • With Full Planning Permission • With 3/4 Acre Paddock • Fully Serviced Site • Original Feature Mill Equipment
Location: • Nearest Station: Insch Station • Distance to Station: 1.8 miles
Agent Information: • Address: Purplebricks, 650 The Crescent Colchester Business Park, Colchester, United Kingdom, CO4 9YQ
Full Description: The PropertyPurplebricks are delighted to present to the market a completely bespoke opportunity to purchase this substantial former watermill with full planning permission for a 4/5 bedroom home. The plot is a generous 3/4 of an acre in size to accommodate a modern home built to your own specifications. The mill itself is a C listed building, retains much of the original equipement and has services already in place.General Information*** Note to Solicitors *** All formal offers should be emailed in the first instance to . Should your client's offer be accepted, please then send the Principle offer directly to the seller's solicitor upon receipt of the Notification of Proposed Sale which will be emailed to you. Property Description DisclaimerThis is a general description of the property only, and is not intended to constitute part of an offer or contract. It has been verified by the seller(s), unless marked as 'draft'. Purplebricks conducts some valuations online and some of our customers prepare their own property descriptions, so if you decide to proceed with a viewing or an offer, please note this information may have been provided solely by the vendor, and we may not have been able to visit the property to confirm it. If you require clarification on any point then please contact us, especially if you’re traveling some distance to view. All information should be checked by your solicitor prior to exchange of contracts.Successful buyers will be required to complete anti-money laundering checks. Our partner, Lifetime Legal Limited, will carry out the initial checks on our behalf. The current non-refundable cost is £80 inc. VAT per offer. You’ll need to pay this to Lifetime Legal and complete all checks before we can issue a memorandum of sale. The cost includes obtaining relevant data and any manual checks and monitoring which might be required, and includes a range of benefits. Purplebricks will receive some of the fee taken by Lifetime Legal to compensate for its role in providing these checks.BrochuresBrochureEnergy Performance Certificateshome report
Location
Address
Mill of Boddam, Insch, AB52
City
Insch
Features and Finishes
Fantastic Substantial Former Watermill, With Full Planning Permission, With 3/4 Acre Paddock, Fully Serviced Site, Original Feature Mill Equipment
Legal Notice
Our comprehensive database is populated by our meticulous research and analysis of public data. MirrorRealEstate strives for accuracy and we make every effort to verify the information. However, MirrorRealEstate is not liable for the use or misuse of the site's information. The information displayed on MirrorRealEstate.com is for reference only.