Millers Road, Brighton, BN1

GBP 1350 For Sale

Property Details

Bedrooms

1

Bathrooms

1

Property Type

Apartment

Description

Property Details: • Type: Apartment • Tenure: N/A • Floor Area: N/A

Key Features: • One Bed Flat to Rent Brighton • Available April 2025 • England Homeowner Guarantors Required • Unfurnished • Close to Amenities • Bills Package Optional • Renting in Brighton • Ground Floor • Close to Preston Park • Rear Shared Garden

Location: • Nearest Station: N/A • Distance to Station: N/A

Agent Information: • Address: 169 Hangleton Way, Hangleton, Hove, BN3 8EY

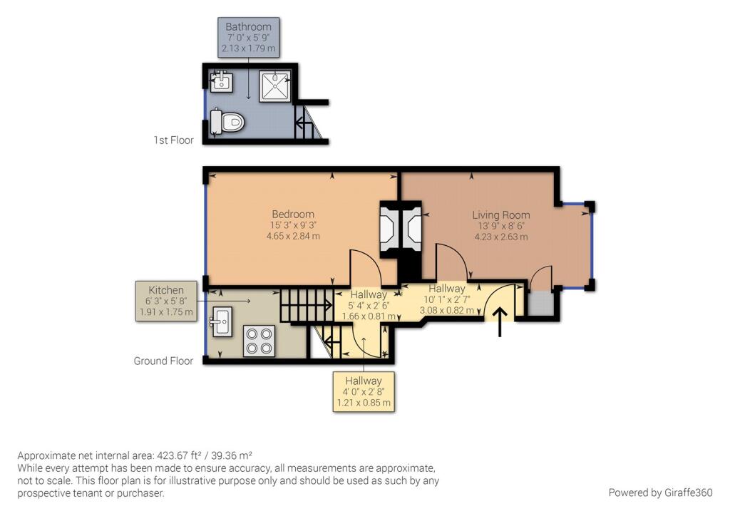
Full Description: ONE BED FLAT TO RENT | AVAILABLE OCTOBER 2025 | LONG TERM LET | HOMEOWNER GUARANTOR REQUIRED | UNFURNISHED | SEPARATE KITCHEN | CENTRAL LOCATION | BILLS PACKAGE OPTIONAL | CLOSE TO STATION | REAR SHARED GARDEN | DEPOSIT FREE OPTION AVAILABLE | FLAT TO RENT BRIGHTON |GROUND FLOOR A one bedroom flat to rent in Brighton. The property is situated just a short walk away from local shops, Preston Park station and easy access into Brighton city centre and the A27/A23. PROPERTY Neutrally decorated to a modern style this is the perfect shell to create your new home. A versatile space to suit the individual this flat to rent comprises of a double bedroom, good size lounge, separate kitchen and shower room.Over split levels which gives that sense of extra space. There is space for an under counter fridge and plumbing for a washing machine. Gas central heating throughout. There is a shared rear garden space that is accessed via the side of the property. If you have a property similar to this and would like a free property valuation give us a call on . WHAT YOU NEED TO KNOW:AVAILABLE DATE: 31st October 2025CONTRACT LENGTH: 6 months initiallyTOTAL MONTHLY RENT: £1350.00TOTAL DEPOSIT: £1350.00 *DEPOSIT FREE OPTION AVAILABLE*EPC RATING: D65COUNCIL TAX BAND: AAPPLIANCES: Oven, Hob NEAREST STATION: Preston Park (7 Minute Walk)Important Information:All tenants are required to provide an England homeowner guarantor. In the event of multiple tenants and guarantors, both parties will be acting jointly and severally liable. Harringtons Lettings is a member of Client Money Protect, which is a client money protection scheme, and also a member of Property Redress Scheme, which is a redress scheme. You can find out more details on the agent`s website or by contacting the agent directly. Reservation Fee: 1 week`s rent £311.54 due upon securing the property. This payment will be deducted from the move in monies when due, however in the event that a tenant withdraws or provides misleading information preventing the tenancy proceeding this payment will not be refunded.Deposit: 1 month`s rent due 14 days prior to the move in date During the tenancy (payable to Harringtons Lettings)Payment of £50 +VAT (£60.00) per person named on the tenancy if you want to change the tenancy agreementPayment of interest for the late payment of rent at a rate of 3% above the Bank of England`s annual percentage rate for each day that the payment is outstanding. In the event arrears are passed to a third party ie a solicitor the contractual costs start at £300+VAT (£360.00)Payment of £40 +VAT (£48.00) for the reasonably incurred costs for the loss of keys/security devices.Payment of £300+VAT (£360.00) associated with any tenants requests for early termination of the tenancy.

Location

Address

Millers Road, Brighton, BN1

City

Brighton

Features and Finishes

One Bed Flat to Rent Brighton, Available April 2025, England Homeowner Guarantors Required, Unfurnished, Close to Amenities, Bills Package Optional, Renting in Brighton, Ground Floor, Close to Preston Park, Rear Shared Garden

Legal Notice

Our comprehensive database is populated by our meticulous research and analysis of public data. MirrorRealEstate strives for accuracy and we make every effort to verify the information. However, MirrorRealEstate is not liable for the use or misuse of the site's information. The information displayed on MirrorRealEstate.com is for reference only.

Real Estate Broker
Harringtons Lettings, Hove
Brokerage
Harringtons Lettings, Hove
Top Tags
Unfurnished Close to Amenities Ground Floor
Likes

0

Views

20

This website uses cookies to ensure you get the best experience. Learn more