Milner Road (E), Selly Oak, Birmingham, West Midlands, B29

GBP 1199 For Sale

Property Details

Bedrooms

3

Bathrooms

1

Property Type

House

Description

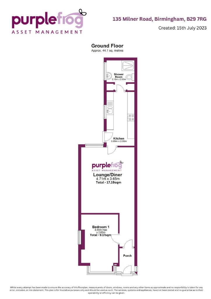
Property Details: • Type: House • Tenure: N/A • Floor Area: N/A

Key Features: • Available from: 1st July 2026 • Deposit (per person): £450 • 1 WC, 1 Shower • 3 Beds, 3 Doubles • Bills Included • Microwave

Location: • Nearest Station: N/A • Distance to Station: N/A

Agent Information: • Address: 189 Dawlish Road, Bournbrook, Birmingham, B29 7AW

Full Description: 123.84 pppw INCLUDING BILLS |3 double bedroom house |AVAILABLE FOR THE 26/27 ACADEMIC YEAR | Tenancy Start Date 01/07/2026 | Ref: 14032Bills Included: Gas, green electricity, water, TV licence, highspeed broadband where possible, (limited by a fair usage policy).This is a spacious student property perfect if you are looking for a good priced property just outside of the busy Selly oak area. The property is situated near Selly Park as well as being around a 20-minute walk to the University of Birmingham and 15 minute walk to selly oak Train Stataion with links into the city centre as well as being close by to several supermarkets and bus links into the city.The property has been recently decorated and had new carpets fitted, creating a bright and homely house. There are 3 good size double bedrooms and one slightly smaller double bedroom, one is on the ground floor and 3 on the first floor. The bathroom is on the ground floor at the rear of the kitchen.Holding Deposit of £92 Per PersonCouncil Tax Band: BEnergy Efficiency Rating - DDining Table Microwave Washing Machine Central Heating Furnished Garden Shower Bills Included

Location

Address

Milner Road (E), Selly Oak, Birmingham, West Midlands, B29

City

Birmingham

Features and Finishes

Available from: 1st July 2026, Deposit (per person): £450, 1 WC, 1 Shower, 3 Beds, 3 Doubles, Bills Included, Microwave

Legal Notice

Our comprehensive database is populated by our meticulous research and analysis of public data. MirrorRealEstate strives for accuracy and we make every effort to verify the information. However, MirrorRealEstate is not liable for the use or misuse of the site's information. The information displayed on MirrorRealEstate.com is for reference only.

Real Estate Broker
PURPLE FROG ASSET MANAGEMENT LIMITED, Selly Oak
Brokerage
PURPLE FROG ASSET MANAGEMENT LIMITED, Selly Oak
Likes

0

Views

18

This website uses cookies to ensure you get the best experience. Learn more