Milton Green, Chester, Cheshire

GBP 475000 For Sale

Property Details

Bedrooms

3

Property Type

3

Description

Property Details: • Type: 3 • Tenure: N/A • Floor Area: N/A

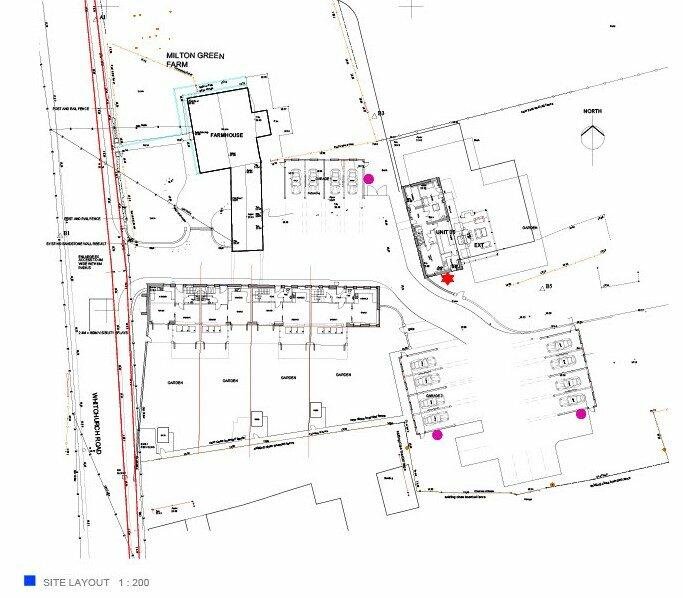
Key Features: • Planning approval for 5 open market barn conversions • Situated on the fringe of Tattenhall village • All properties will have carport garaging • South facing domestic gardens • Approx. 680 sq.m (7317 sq.ft) of proposed accommodation GIA • Readily accessible site with road frontage • Site extends to approximately 1.19 acres in total.

Location: • Nearest Station: N/A • Distance to Station: N/A

Agent Information: • Address: Covering the North West

Full Description: Barns with planning approval for five open market dwellings, located in a sought-after area on the fringe of the popular village of Tattenhall.A barn conversion scheme, within a courtyard setting. The scheme allows for four two-storey mews barn conversions and a detached barn conversion. All properties will have generous gardens, garage carports, and ample visitor parking spaces. Description• The existing agricultural buildings are of brick construction, under fibre sheet roofing (asbestos). There are two modern steel portal framed buildings which require demolition. The existing brick range extend to approximately 590 sq.m (6348 sq. ft) GIA, with some lean-to and modern attached buildings. • Approval is for the creation of 5 residential dwellings. The approved plans show two 2-bedroom mews properties, two 3-bedroom mews properties and a detached 3-bedroom house. The estimated total GIA for the five properties is 680 sq. m (7317 sq. ft) GIA, including the “extensions” to the rear of each property.• Planning exists for the construction of 8 carport garages with additional parking spaces, which can be allocated to the houses as required. In addition there is provision for ample visitors’ spaces. Planning• A summary of the planning history, granted by Cheshire West and Chester is as follows:• 11/03079/FUL & 11/03080/LBC – conversion into 3 dwellings and an office. • 18/01046/s73 & 18/01309/LBC – variation of plans.• 19/02798/DIS – discharge of conditions to allow implementation (18/01046/s73)• 23/00497/LDC – LDC of implementation (18/01046/s73 & 18/01309/LBC)• 23/00498/FUL & 23/00499/LBC – change of use of office and subdivision of one unit, to provide 5 residential units. (Needs to be implemented by 05/03/27).• 24/01258/s73 & 24/01457/s19 – approval for an extension to the rear of the detached unit. • 23/01196/s19 & 23/00915/s73 – application for a larger extension to the rear of unit 5. Planning refused and an appeal submitted and pending. SituationMilton Green is within a short distance of the popular village of Tattenhall. The barns enjoy some open countryside views across prime Cheshire countryside. Tattenhall has an active local community with a good range of local services, including a general store, butchers, hairdressers, public houses, restaurants and doctor's surgery, and Chester has a more comprehensive offering.The local vicinity offers a range of recreational facilities, including golf at Aldersey Green Golf Club, tennis, squash and cricket at Tattenhall Recreation Club, leisure pursuits at Carden Park Golf Course and Spa and water sports on the river Dee. Local state schooling includes Tattenhall Primary School which is a feeder school for Bishop Heber High School, the latter deemed "outstanding" by Ofsted. Excellent independent schooling is available at Abbeygate College, Saighton and King's and Queen's Schools in Chester. The area is well-placed for commuting to the commercial centres of the North West via the A55 leading to the M53, M56 and M6 networks. Chester station offers direct service to London, Euston within 2 hours.Information available• Planning Permissions• Approved Planning Drawings • Planning Appeal Drawing• Site Survey -Main site and off site for drainageBarns – Long Barn and Rear barn • Drainage Design - Bett Associates design • Asbestos Report and Quote • Bat Mitigation Licence • Structural Reports • Draft Working Drawings for scheme. Community infrastructure Levy (CIL) The buyer will be responsible for payment of the CIL charge. The seller has already submitted an Assumption of Liability Notice, but it is yet to be concluded across all 5 units. The seller estimates the CIL charge to be between £6,000 to £8,000 in total. Further information from the selling agents. ServicesDrainage to be provided by way of a bio disc treatment plant, to include a connection for the farmhouse and 5 units. There is mains water and electricity in the vicinity. It is anticipated the properties will be warmed by air source heat pumps. The buyer will be responsible for all service connections and interested parties must make their own enquiries of the relevant statutory authorities, no further information will be provided by the selling agents. The estimated fastest download speed currently achievable for the property postcode area is around 1000 Mbps] (data taken from checker.ofcom.org.uk on 26/09/2024). Actual service availability at the property or speeds received may be different. We understand that the property is likely to have current mobile coverage (data taken from checker.ofcom.org.uk on 26/09/2024). Please note that actual services available may be different depending on the particular circumstances, precise location and network outages. TenureThe property is to be sold freehold with vacant possession.Local AuthorityCheshire West & CheshirePublic Rights of Way, Wayleaves and EasementsThe property is sold subject to all rights of way, wayleaves and easements whether or not they are defined in this brochure.Plans, Boundaries and ObligationsThe plans within these particulars are based on Ordnance Survey data and provided for reference only. They are believed to be correct but accuracy is not guaranteed. The purchaser shall be deemed to have full knowledge of all boundaries and the extent of ownership. Neither the vendor nor the vendor’s agents will be responsible for dening the boundaries or the ownership thereof.The buyer will be responsible for the erection of and maintenance of any new boundary fences, where applicable. The buyer will also be responsible for building the courtyard garage block for the farmhouse.ViewingsStrictly by appointment through Fisher German LLP. DirectionsPostcode – CH3 9DSwhat3words ///passenger.stored.coolFrom Chester head through Boughton onto the A5115, continuing across the A41 interchange on to the A41.Continue along the A41 through Waverton and Hatton Heath . On approaching Milton Green after passing Applegates Farm Shop and Café on the right, the entrance to the barns will be seen after a short distance on the left hand side immediately before the former Kia Motors garage.BrochuresParticulars

Location

Address

Milton Green, Chester, Cheshire

City

Chester

Features and Finishes

Planning approval for 5 open market barn conversions, Situated on the fringe of Tattenhall village, All properties will have carport garaging, South facing domestic gardens, Approx. 680 sq.m (7317 sq.ft) of proposed accommodation GIA, Readily accessible site with road frontage, Site extends to approximately 1.19 acres in total.

Legal Notice

Our comprehensive database is populated by our meticulous research and analysis of public data. MirrorRealEstate strives for accuracy and we make every effort to verify the information. However, MirrorRealEstate is not liable for the use or misuse of the site's information. The information displayed on MirrorRealEstate.com is for reference only.

Real Estate Broker
Fisher German, Cheshire and North Wales
Brokerage
Fisher German, Cheshire and North Wales
Top Tags
Likes

0

Views

50

This website uses cookies to ensure you get the best experience. Learn more