Monkton Farleigh, Bradford On Avon

GBP 425000 For Sale

Property Details

Property Type

Land

Description

Property Details: • Type: Land • Tenure: N/A • Floor Area: N/A

Key Features: • CIL PAID • LEVEL CLEARED SITE WITH SERVICES CONNECTED • FULL PLANNING PERMISSION GRANTED & IMPLEMENTED PL/2023/06979 • WITHIN THE COTSWOLDS AONB • LAYOUT CAN BE EASILY ADAPTED • OFF ROAD PARKING FOR THREE CARS

Location: • Nearest Station: Bradford-on-Avon Station • Distance to Station: 3.2 miles

Agent Information: • Address: Bradford-On-Avon

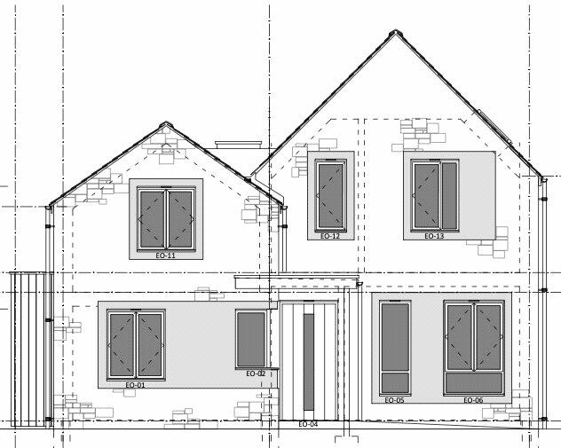
Full Description: A unique opportunity to build a detached contemporary home in the sought-after location of Monkton Farleigh. Once completed, this detached home will span over 1,700 sqft and will be complete with natural materials and a refined palette that sits perfectly within its surroundings.This freehold plot that has been cleared and services connected making this an incredibly rare opportunity. Current plans allow for a generous living space, with the ground floor benefiting from an ample study or playroom and separate living room. Towards the back you will find an enviable kitchen diner and utility room that spans the entire width and will boast an exceptional verdant outlook. Upstairs has been thoughtfully planned, with four very good-sized bedrooms, two of which have ensuites. All of which can be reconfigured to your needs.Monkton Farleigh is a popular village due to its proximity to the UNESCO city of Bath and is a mere 20-minute drive to Bath Spa station. The historic and quant town of Bradford on Avon also offers great connectivity. The M4 is easily accessible, and Chippenham Station has direct services to London Paddington.There is an abundance of country walks and local villages to be enjoyed and a great community within Monkton Farleigh itself. The Village Pub offers a great spot for drinks and Box and Bathampton add further appeal.

Location

Address

Monkton Farleigh, Bradford On Avon

City

Monkton Farleigh

Features and Finishes

CIL PAID, LEVEL CLEARED SITE WITH SERVICES CONNECTED, FULL PLANNING PERMISSION GRANTED & IMPLEMENTED PL/2023/06979, WITHIN THE COTSWOLDS AONB, LAYOUT CAN BE EASILY ADAPTED, OFF ROAD PARKING FOR THREE CARS

Legal Notice

Our comprehensive database is populated by our meticulous research and analysis of public data. MirrorRealEstate strives for accuracy and we make every effort to verify the information. However, MirrorRealEstate is not liable for the use or misuse of the site's information. The information displayed on MirrorRealEstate.com is for reference only.

Real Estate Broker
Davies & Davies, Bradford On Avon
Brokerage
Davies & Davies, Bradford On Avon
Top Tags
CIL PAID
Likes

0

Views

78

This website uses cookies to ensure you get the best experience. Learn more