Montgomery Street, Hove

GBP 850000 For Sale

Property Details

Property Type

Plot

Description

Property Details: • Type: Plot • Tenure: N/A • Floor Area: N/A

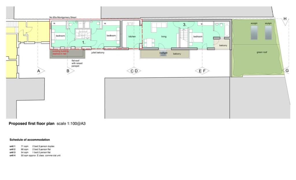
Key Features: • Development Site - Poets Corner • Planning Approved - ref: BH2024/01623 • 3x Residential Units & 1x Commercial Unit • Offers Invited On The Site Based On Vacant Possession On Completion

Location: • Nearest Station: Aldrington Station • Distance to Station: 0.1 miles

Agent Information: • Address: 95 Portland Road, Hove, BN3 5DP

Full Description: An attractive mews property in this popular Poets Corner district of Hove with It?s bustling coffee culture high street. Planning has been approved to renovate and convert these current commercial buildings to create three well laid out residential units and create a new a Class E commercial unit. Located through an original mews entrance, shared with 83a (which is also available through separate negotiations), the property is an attractive building currently arranged as workshops, storage and car valeting areas. Set over two floors the buildings are set around a shared courtyard area and surrounded by residential and small scale commercial premises.Planning has been approved under ref: BH2024/01623 to extend and convert the current buildings to create a number of well designed and unique properties - some with outdoor areas and second bathrooms. Cottages and apartments within mews developments in this area are extremely popular amongst buyers recognised for their quieter settings and private entrances. 1 x 2 bed, 2 bathroom duplex/cottage - 73sqm 1 x 2 bed, 2 bathroom apartment - 66sqm 1 x 1 bed, 1 bathroom apartment - 54sqm 1 x Class Commercial unit - 50sqm Located close to the thriving retail area of Portland Road, with its pavement coffee houses and cafes, Montgomery Street forms part of the popular ?Poets Corner? area of Hove. This area of the wider Brighton & Hove conurbation attracts young families and commuters due to its accessibility to the city centre and more relaxed lifestyle.BrochuresBrochureBrochure 2

Location

Address

Montgomery Street, Hove

City

Brighton and Hove

Features and Finishes

Development Site - Poets Corner, Planning Approved - ref: BH2024/01623, 3x Residential Units & 1x Commercial Unit, Offers Invited On The Site Based On Vacant Possession On Completion

Legal Notice

Our comprehensive database is populated by our meticulous research and analysis of public data. MirrorRealEstate strives for accuracy and we make every effort to verify the information. However, MirrorRealEstate is not liable for the use or misuse of the site's information. The information displayed on MirrorRealEstate.com is for reference only.

Real Estate Broker
Pearson Keehan, Hove
Brokerage
Pearson Keehan, Hove
Top Tags
Montgomery Street Hove
Likes

0

Views

74

This website uses cookies to ensure you get the best experience. Learn more