Nempnett Thrubwell, listed barn with full PP for conversion

GBP 525000 For Sale

Property Details

Bedrooms

3

Bathrooms

3

Property Type

Equestrian Facility

Description

Property Details: • Type: Equestrian Facility • Tenure: N/A • Floor Area: N/A

Key Features: • Approx 2,529 sq ft of accommodation • Period listed barn with full planning permission to convert to a three double bedroom family home • Spectacular rural location with stunning views • High specification and energy efficiency • Planned shared garage for 2 cars, plus driveway parking and electric charging point • Private gardens with opportunity to buy subject to separate negotiation and adjacent orchard • Mains electricity & water, private drainage, Fibre broadband (900 mb), already established • 2 miles Bristol airport/9.7 miles to central Bristol • Within 5.8 miles of Nailsea station for mainline services to Bristol (11 mins)/London Paddington from 108 mins • M5 within approx 8 miles at Jct 20 or Jct 21 (All distances/times approx)

Location: • Nearest Station: N/A • Distance to Station: N/A

Agent Information: • Address: 1 The Cross Broad Street, Congresbury, Bristol, Somerset, BS49 5DG

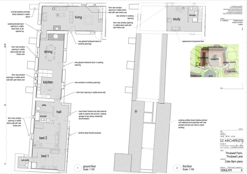
Full Description: A unique opportunity to purchase an undeveloped late 18th century barn which was formerly the Cider House for Thrubwell Farm. This charming old barn is brimming with character and will utilise the high ceilings in the original barn within the kitchen dining space creating lofty vaulted ceilings and a wonderful mezzanine over the living room. The bedroom accommodation will benefit from a panel of slimline steel framed windows which will flood the natural light and offer the potential for seamlessly blending indoor and outdoor living.In addition, it will have an attractive courtyard garden to the front and glorious gardens to the side and rear which has magnificent views to an orchard beyond. Should the new owner wish there will, subject to separate negotiation be an opportunity to purchase this. Approx 2.5 acres it could be used for a variety of purposes grazing small livestock, creating a wildlife habitat with wildflowers or a pond or as a recreational area for picnics or private sports.Full planning permission, together with all the permissions required for wildlife protection and enhancement has already been granted to convert this wonderful building into a family home with three double bedrooms, three bathrooms, and ample reception space. This property provides a fantastic opportunity to create the contemporary home of your dreams while retaining the unique features of the original barn. Plans include retaining the current beautiful stone facades, stunning floor-to-ceiling windows, vaulted beamed ceilings, traditional tiled roof , and modern energy-saving features such as an air source heat pump and a freestanding electric vehicle charger.In brief, the proposed plan incorporates at its centre a large fully fitted open-plan kitchen/dining room with a spacious separate utility room. To the left two generous double bedrooms one ensuite, and one with access to a family bathroom. At the other side of the property is the magnificent sitting room with double height ceiling and elegant fireplace with log burner. Stairs rise to an mezzanine room with ensuite shower room which could alternatively be arranged as a third bedroom or an office.Current planning reference ID: 23/P/2468/FULOutsideSurrounded by fields on all sides the approach to the Cider Barn takes you down a private drive passing to the left of a very attractive natural wild pond. The Cider Barn is the first of three barns arranged around a smart gravelled area.To the right-hand side a barn will be converted into three adjoined double garages. The Cider Barn will own one and the other two adjacent properties the other two.The Cider Barn sits in a large plot which will have an attractive garden which will wrap around both the back and the side of the property giving it the benefit of different orientations. Adjacent to the garden is the separate orchard of approx 2.5 acres which is available subject to separate negotiation.Services: Mains electricity & water, private drainage, Fibre broadband (900 mb)LocationNempnett Thrubwell is nestled in the picturesque countryside near Chew Valley and Blagdon lakes, just south of Bristol, which lies about 10 miles to the north. This village features a mix of scattered farmhouses and cottages, with local amenities available in the nearby communities of Blagdon, Chew Stoke, and Chew Magna. Blagdon village, located roughly 3 miles away, offers a post office/general store, a butcher, a church, a village hall, a primary school, and three pubs.What three words location: ///wealth.comedy.megawattParking - Double garageBrochuresBrochure 1

Location

Address

Nempnett Thrubwell, listed barn with full PP for conversion

City

Nempnett Thrubwell

Features and Finishes

Approx 2,529 sq ft of accommodation, Period listed barn with full planning permission to convert to a three double bedroom family home, Spectacular rural location with stunning views, High specification and energy efficiency, Planned shared garage for 2 cars, plus driveway parking and electric charging point, Private gardens with opportunity to buy subject to separate negotiation and adjacent orchard, Mains electricity & water, private drainage, Fibre broadband (900 mb), already established, 2 miles Bristol airport/9.7 miles to central Bristol, Within 5.8 miles of Nailsea station for mainline services to Bristol (11 mins)/London Paddington from 108 mins, M5 within approx 8 miles at Jct 20 or Jct 21 (All distances/times approx)

Legal Notice

Our comprehensive database is populated by our meticulous research and analysis of public data. MirrorRealEstate strives for accuracy and we make every effort to verify the information. However, MirrorRealEstate is not liable for the use or misuse of the site's information. The information displayed on MirrorRealEstate.com is for reference only.

Real Estate Broker
Robin King Estate Agents, Congresbury
Brokerage
Robin King Estate Agents, Congresbury
Top Tags
Likes

0

Views

66

This website uses cookies to ensure you get the best experience. Learn more