Neville Crescent, Birtley, Chester Le Street, Tyne and Wear, DH3

GBP 135000 For Sale

Property Details

Bedrooms

3

Bathrooms

1

Property Type

Terraced

Description

Property Details: • Type: Terraced • Tenure: N/A • Floor Area: N/A

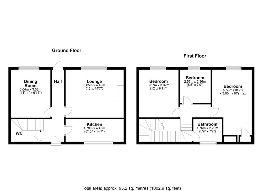
Key Features: • Three Bedroom Mid Terrace • Spacious Layout With Two Receptions • Large Rear Garden • Floor Plan Approximately 90 Sq. Mt / 996 Sq. Ft • Council Tax Band A • EPC Rating C

Location: • Nearest Station: N/A • Distance to Station: N/A

Agent Information: • Address: 53 Front Street, Chester Le Street, DH3 3BH

Full Description: A well positioned three bedroom home situated on a large plot benefiting from an attractive front garden and a car port to the rear. This lovely home is deceptively spacious and it should prove to be the ideal purchase for the family buyer.  IMPORTANT NOTE TO POTENTIAL PURCHASERS & TENANTS: We endeavour to make our particulars accurate and reliable, however, they do not constitute or form part of an offer or any contract and none is to be relied upon as statements of representation or fact. The services, systems and appliances listed in this specification have not been tested by us and no guarantee as to their operating ability or efficiency is given. All photographs and measurements have been taken as a guide only and are not precise. Floor plans where included are not to scale and accuracy is not guaranteed. If you require clarification or further information on any points, please contact us, especially if you are traveling some distance to view. POTENTIAL PURCHASERS: Fixtures and fittings other than those mentioned are to be agreed with the seller. POTENTIAL TENANTS: All properties are available for a minimum length of time, with the exception of short term accommodation. Please contact the branch for details. A security deposit of at least one month’s rent is required. Rent is to be paid one month in advance. It is the tenant’s responsibility to insure any personal possessions. Payment of all utilities including water rates or metered supply and Council Tax is the responsibility of the tenant in most cases. QCT250093/2BrochuresWeb Details

Location

Address

Neville Crescent, Birtley, Chester Le Street, Tyne and Wear, DH3

Features and Finishes

Three Bedroom Mid Terrace, Spacious Layout With Two Receptions, Large Rear Garden, Floor Plan Approximately 90 Sq. Mt / 996 Sq. Ft, Council Tax Band A, EPC Rating C

Legal Notice

Our comprehensive database is populated by our meticulous research and analysis of public data. MirrorRealEstate strives for accuracy and we make every effort to verify the information. However, MirrorRealEstate is not liable for the use or misuse of the site's information. The information displayed on MirrorRealEstate.com is for reference only.

Real Estate Broker
YOUR MOVE Chris Stonock, Chester Le Street
Brokerage
YOUR MOVE Chris Stonock, Chester Le Street
Top Tags
Large Rear Garden Council Tax Band A
Likes

0

Views

13

This website uses cookies to ensure you get the best experience. Learn more