New Houses at Tombain, Dowans Road, Aberlour

GBP 400000 For Sale

Property Details

Bedrooms

4

Bathrooms

3

Property Type

Detached Bungalow

Description

Property Details: • Type: Detached Bungalow • Tenure: Freehold • Floor Area: N/A

Key Features:

Location: • Nearest Station: N/A • Distance to Station: N/A

Agent Information: • Address: 24 Batchen Street, Elgin, IV30 1BH

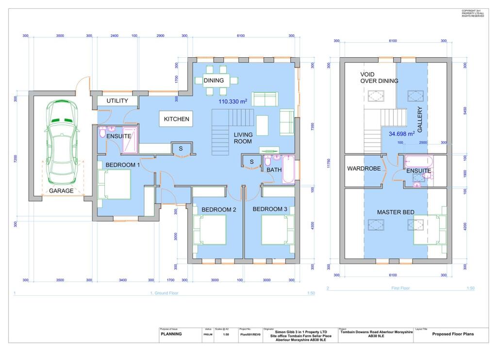
Full Description: With only 8 homes available — and 3 already reserved — now is the time to secure your place in this exceptional development.Discover the future of sustainable living with these brand-new, off-plan dormer bungalows — ready to be built in just 12 weeks. Each stylish home features three spacious ground-floor bedrooms (including a luxurious en suite), a contemporary family bathroom, a utility room, and a beautifully designed open-plan living, dining, and kitchen area. With sleek white render, black-framed windows, and timber-clad two-car ports, these homes are as visually striking as they are efficient. Buyers can choose from three elegant colour palettes for kitchens and bathrooms, and an optional garage is available at an additional cost.Built to the highest environmental standards, these homes boast a negative carbon footprint and are five times more energy-efficient than the British Standard, thanks to features like solar panels, air source heat pumps, triple glazing, MVHR, and high-performance insulation.Aberlour - Charlestown of Aberlour is a picturesque and lively town nestling on the banks of the River Spey in the heart of Speyside. The River Spey is world famous for its salmon fishing (Aberlour residents are eligible for reducedcharges) and Aberlour has a key position on the Malt Whisky Trail which makes it an important tourist area. From the town the surrounding countryside provides excellent opportunities for year-round outdoor and country pursuits and the beautiful Cairngorm Mountains are easily accessible less than an hour’s drive.A comprehensive range of services is on offer in Aberlour including primary and secondary schools, medical centre and dentist’s surgery, churches, post office and a variety of shops. A new swimming pool and gym complex has recently opened. There are also 2 hotels and a number of lovely cafes and restaurants.Elgin, the county town of Moray, lies 15 miles to the north and offers a wider range of facilities including the regional hospital, leisure centre, cinema and larger supermarkets and shops. Elgin has the nearest railway station with frequent connections to Inverness and Aberdeen.Inverness (50 miles to the west of Aberlour) offers all the facilities of a major city including a regional airport with connections to rest of the country.Aberdeen (60 miles to the east of Aberlour) is a major commercial city with an international airport.BrochuresNew Houses at Tombain, Dowans Road, AberlourBrochure

Location

Address

New Houses at Tombain, Dowans Road, Aberlour

City

Dowans Road

Legal Notice

Our comprehensive database is populated by our meticulous research and analysis of public data. MirrorRealEstate strives for accuracy and we make every effort to verify the information. However, MirrorRealEstate is not liable for the use or misuse of the site's information. The information displayed on MirrorRealEstate.com is for reference only.

Real Estate Broker
AB & S Estate Agents, Elgin
Brokerage
AB & S Estate Agents, Elgin
Top Tags
Detached Bungalow
Likes

0

Views

8

This website uses cookies to ensure you get the best experience. Learn more