Newbold on Avon, Rugby, CV21
Property Details
Plot
Description
Property Details: • Type: Plot • Tenure: N/A • Floor Area: N/A
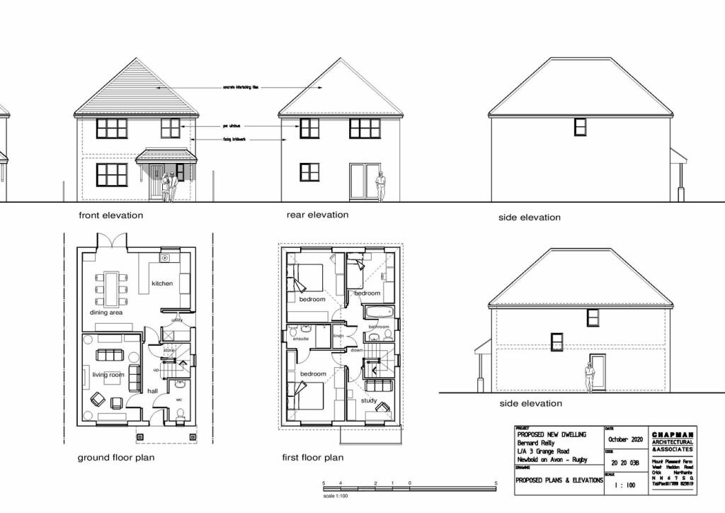
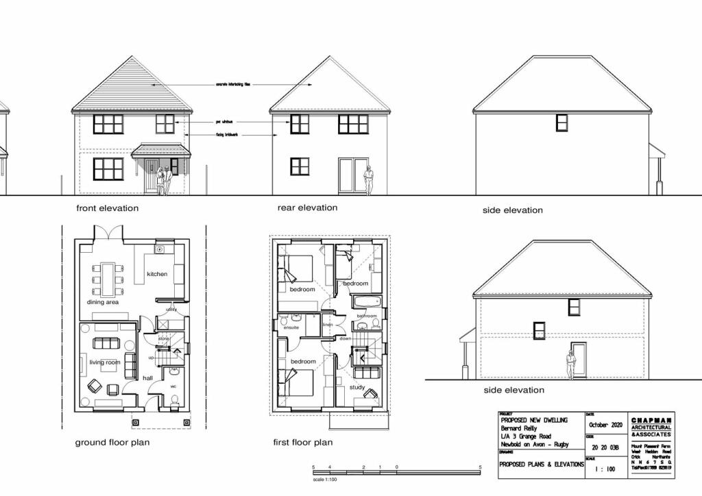
Key Features: • DEVELOPMENT OPPORTUNITY • VILLAGE LOCATION • NEWBOLD ON AVON • BUILDING PLOT • PLANNING PERMISSION GRANTED • DETACHED HOUSE • FOUR BEDROOMS
Location: • Nearest Station: Rugby Station • Distance to Station: 1.3 miles
Agent Information: • Address: Rugby
Full Description: Guild House estate agents are pleased to offer for sale a well positioned building plot in the popular village of Newbold upon Avon. Besides being well positioned for easy access to Rugby, it's situated within easy walking distance of good schooling and some excellent local amenities including a supermarket, hairdressers, beauty salon and popular public houses as well as access to a regular bus service into Rugby town centre. Elliotts Field and Junction One retail parks are only a five minute drive away and access to M1/M6 motorway links are also just a short drive.Planning permission has been granted for a four bedroom detached property giving the plot an approximate GDV of £340,000 to £350,000 depending on finished specification. Full details and planning permissions can been found on the Rugby Borough Council planning portal quoting reference R23/0279 AN INDEMNITY INSURANCE IS NECESSARY DUE TO A RESTRICTIVE COVENANT. ASK AGENT FOR MORE DETAILS.For any further information please contact Toni-ann on
Location
Address
Newbold on Avon, Rugby, CV21
City
None
Features and Finishes
DEVELOPMENT OPPORTUNITY, VILLAGE LOCATION, NEWBOLD ON AVON, BUILDING PLOT, PLANNING PERMISSION GRANTED, DETACHED HOUSE, FOUR BEDROOMS
Legal Notice
Our comprehensive database is populated by our meticulous research and analysis of public data. MirrorRealEstate strives for accuracy and we make every effort to verify the information. However, MirrorRealEstate is not liable for the use or misuse of the site's information. The information displayed on MirrorRealEstate.com is for reference only.