Newby, Penrith
Property Details
5
5
Barn Conversion
Description
Property Details: • Type: Barn Conversion • Tenure: N/A • Floor Area: N/A
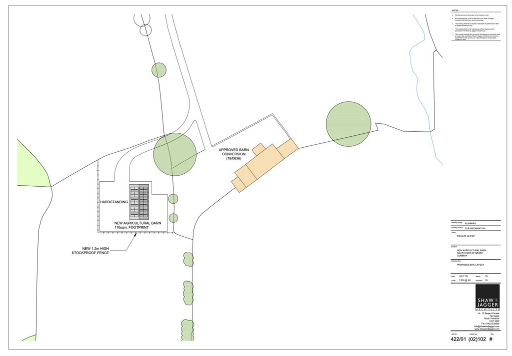
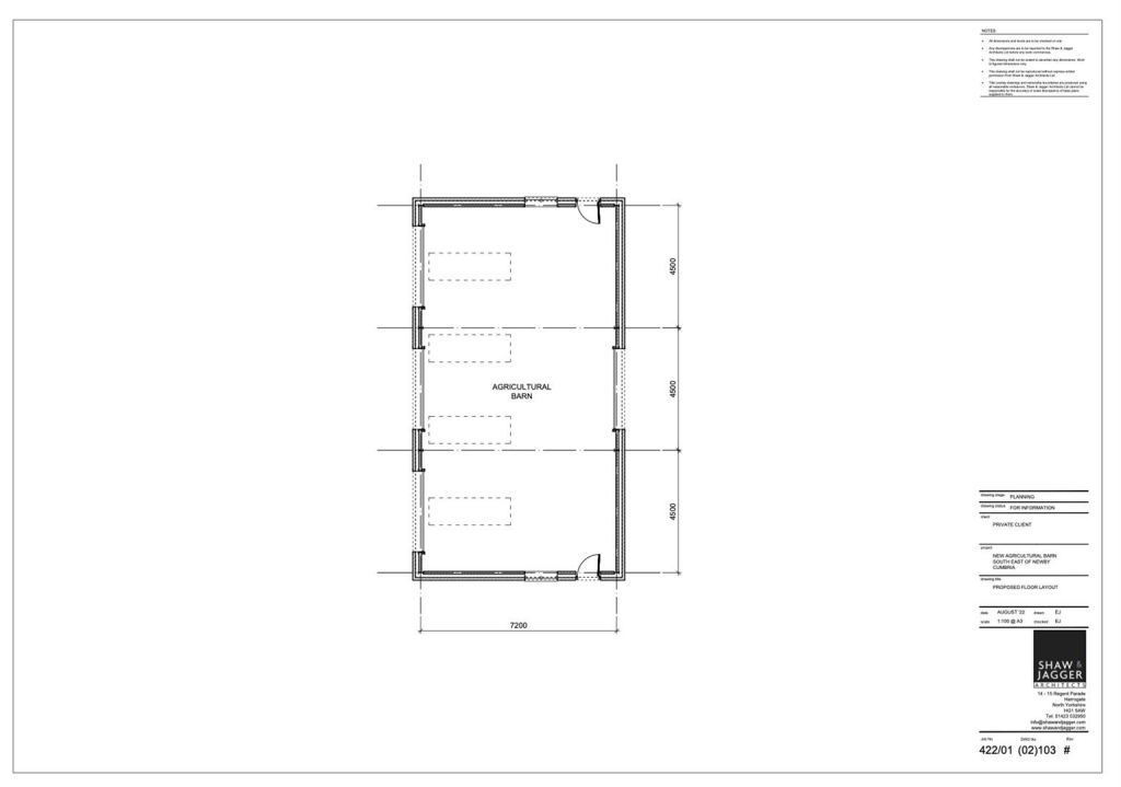
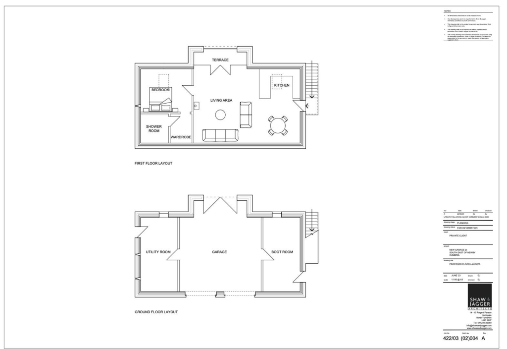
Key Features: • GRAND DESIGNS COUNTRY ESTATE • Around 30 Acres • Sitting in an elevated position with views • Planning permission for 410m² of opulent residential living space. • Garage Annexe - Size: 180m² • Agricultural Barn - Size: 97m² • New Stone Barn - Size: 54m² • Close to Newby, Morland and Penrith • Excellent transport links • Close to Lake District National Park
Location: • Nearest Station: N/A • Distance to Station: N/A
Agent Information: • Address: Unit 3 Mason Court Gillan Way Penrith 40 Business Park Penrith Cumbria CA11 9GR
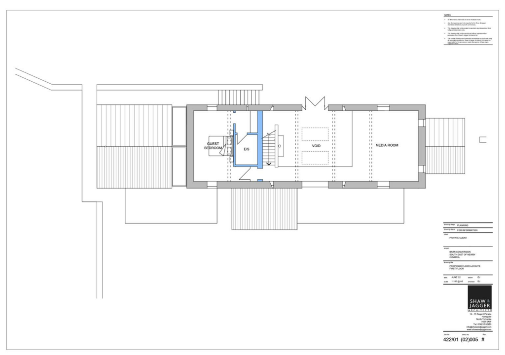
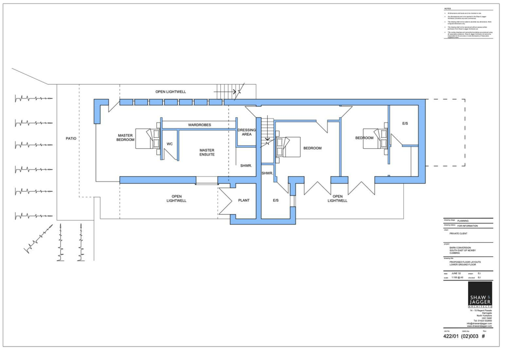
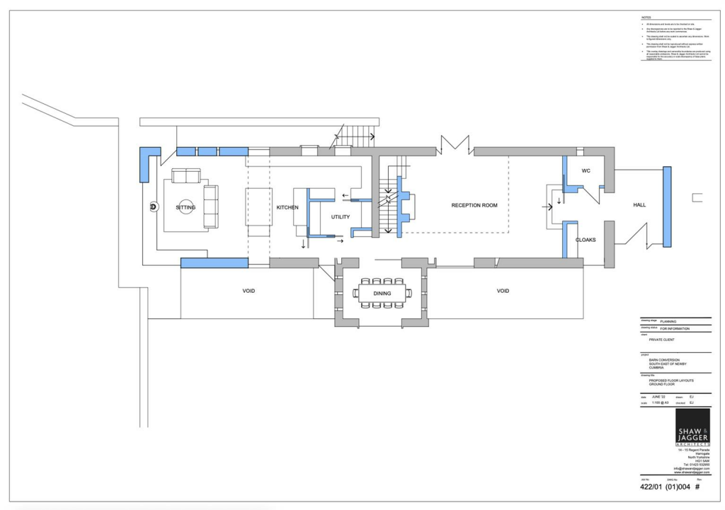
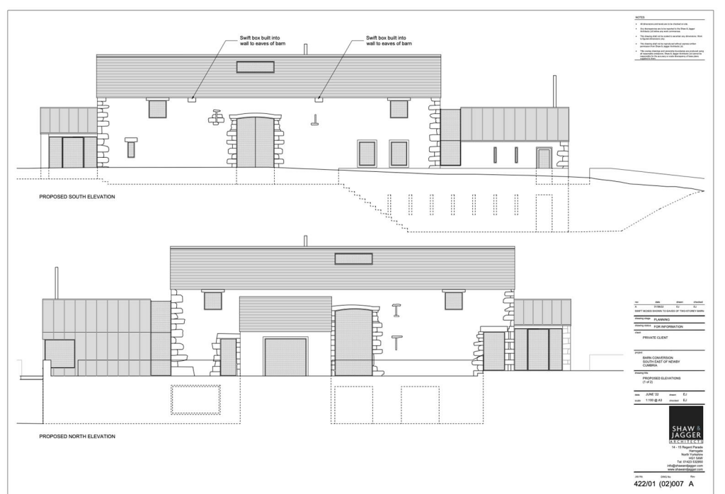
Full Description: Breathtaking 30-acre estate set in the heart of picturesque open countryside, surroundedby its own private land, offering unparalleled privacy and stunning views of the Pennines.Manor Barn - Originally a large stone barn with planning permission for conversion into a residentialproperty, the estate has undergone a remarkable transformation. With the originalpermission allowing for 242m², now has secured full approval for a grand redesign:- New Approval: 410m² of opulent residential living space.Design Highlights: - - Full Height Glazing: Walls of full height glazing on the eastern elevation to captureuninterrupted views of the Pennines.- South Facing Threshing Opening: A magnificent fully glazed threshing opening facingsouth.- Architectural Roof Glazing: Extensive sections to enhance the connection with thesurrounding 30 acres of land.- Expanded Footprint: Increased footprint and height for a landmark property worthy of itselevated position.Additional Structures - Garage Annexe- Size: 180m²- Features: 90m² ground floor residential garage with a 90m² residential apartment above.- Alternative Layout: Option for a 2-bedroom apartment.Agricultural Barn- Size: 97m²- Purpose: Designed with eco/environmental considerations.New Stone Barn - - Size: 54m²- Purpose: A mini version of Manor Barn.Eco-Friendly Enhancements - - Energy Efficiency: Custom-designed independent electrical/solar installation withstorage batteries.- Bridge Upgrade: Newly constructed vehicular bridge with a 36-ton weight limit toaccommodate construction traffic and ensure durability.Planning Approvals Summary- Residential Space: 588m² (including Manor Barn and Garage Annexe)- Agricultural Space: 151m²- Total Approved Space: 739m²Previously, only 242m² of solely residential space was approved; the new permissionsoffer significantly enhanced living and agricultural areas.This exceptional estate offers an unparalleled opportunity to own a bespoke property withsignificant development potential, beautifully integrating modern design with its naturalsurroundings.Epc & Council Tax - EPC - Not requiredCouncil Tax - TBCDisclaimer - These particulars, whilst believed to be accurate are set out as a general guideline and do not constitute any part of an offer or contract. Intending Purchasers should not rely on them as statements of representation of fact, but must satisfy themselves by inspection or otherwise as to their accuracy. The services, systems, and appliances shown may not have been tested and has no guarantee as to their operability or efficiency can be given. All floor plans are created as a guide to the lay out of the property and should not be considered as a true depiction of any property and constitutes no part of a legal contract.BrochuresNewby, Penrith
Location
Address
Newby, Penrith
City
None
Features and Finishes
GRAND DESIGNS COUNTRY ESTATE, Around 30 Acres, Sitting in an elevated position with views, Planning permission for 410m² of opulent residential living space., Garage Annexe - Size: 180m², Agricultural Barn - Size: 97m², New Stone Barn - Size: 54m², Close to Newby, Morland and Penrith, Excellent transport links, Close to Lake District National Park
Legal Notice
Our comprehensive database is populated by our meticulous research and analysis of public data. MirrorRealEstate strives for accuracy and we make every effort to verify the information. However, MirrorRealEstate is not liable for the use or misuse of the site's information. The information displayed on MirrorRealEstate.com is for reference only.