North Hill, Colchester, CO1

GBP 750000 For Sale

Property Details

Bedrooms

12

Bathrooms

8

Property Type

House of Multiple Occupation

Description

Property Details: • Type: House of Multiple Occupation • Tenure: N/A • Floor Area: N/A

Key Features: • Stunning City Centre Building • Lapsed Planning Permission To Convert Into 5 Residential Apartments • Secure Car Park To Rear For 14 Cars • Currently Let As One Office at £50k Per Annum • Being Sold with Vacant Posession • Fantastic Investment Opportunity • Call Now To Arrange Your Private Viewing • Application Running To Convert Into 12 Room HMO

Location: • Nearest Station: N/A • Distance to Station: N/A

Agent Information: • Address: Rebow House 62 Head Street Colchester CO1 1PB

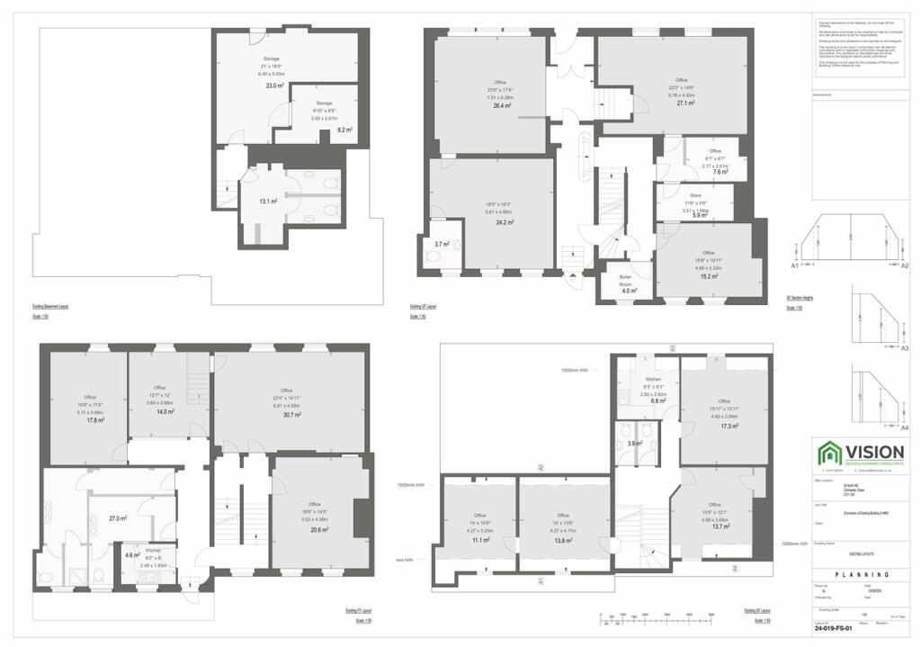
Full Description: A fantastic, rare investment opportunity has arisen to within this beautiful Grade II listed building set on this sought after street in the centre of Colchester's vibrant City Centre, which is currently being used as one large office space however is being offered for sale with permission soon to be granted for conversion into a 12 bedroom, 7 bathroom HMO.An application has been submitted to Colchester Borough Council for a fairly simple conversion of this historic building to create a superb House Of Multiple Occupancy, with a total of 12 bedrooms, 7 bathrooms, 3 kitchens and a basement level recreational and laundry space with a projected income of £10,500 pcm. Full information on this application can be found on Colchester BC's planning portal using reference number 241368.The property also benefits from a secure car park to rear with a total of 14 spaces, accessed via Balkerne Passage. This could generate an additional income or increase the monthly income for the individual rooms.As previously mentioned the property is currently used as one large office and let at £50,000 per annum, with the current tenants vacating in November 2024.Furthermore the property benefits from lapsed planning consent for the conversion into a total of 5 residential apartments, in our opinion this could easily be granted again if desired. Information on this application can be found Colchester BC's planning portal using reference number 151528.Enquiries strictly to go strictly via our offices, please contact us if you require further information or if you'd like to arrange your private viewing, which can be accommodated on request.

Location

Address

North Hill, Colchester, CO1

City

Colchester

Features and Finishes

Stunning City Centre Building, Lapsed Planning Permission To Convert Into 5 Residential Apartments, Secure Car Park To Rear For 14 Cars, Currently Let As One Office at £50k Per Annum, Being Sold with Vacant Posession, Fantastic Investment Opportunity, Call Now To Arrange Your Private Viewing, Application Running To Convert Into 12 Room HMO

Legal Notice

Our comprehensive database is populated by our meticulous research and analysis of public data. MirrorRealEstate strives for accuracy and we make every effort to verify the information. However, MirrorRealEstate is not liable for the use or misuse of the site's information. The information displayed on MirrorRealEstate.com is for reference only.

Real Estate Broker
Michaels Property Consultants Ltd, Colchester
Brokerage
Michaels Property Consultants Ltd, Colchester
Top Tags
Likes

0

Views

52

This website uses cookies to ensure you get the best experience. Learn more