North Road, Combe Down, Bath, BA2
Property Details
3
1
End of Terrace
Description
Property Details: • Type: End of Terrace • Tenure: Freehold • Floor Area: N/A
Key Features:
Location: • Nearest Station: N/A • Distance to Station: N/A
Agent Information: • Address: 1a Avenue Place, Combe Down, Bath, BA2 5EE
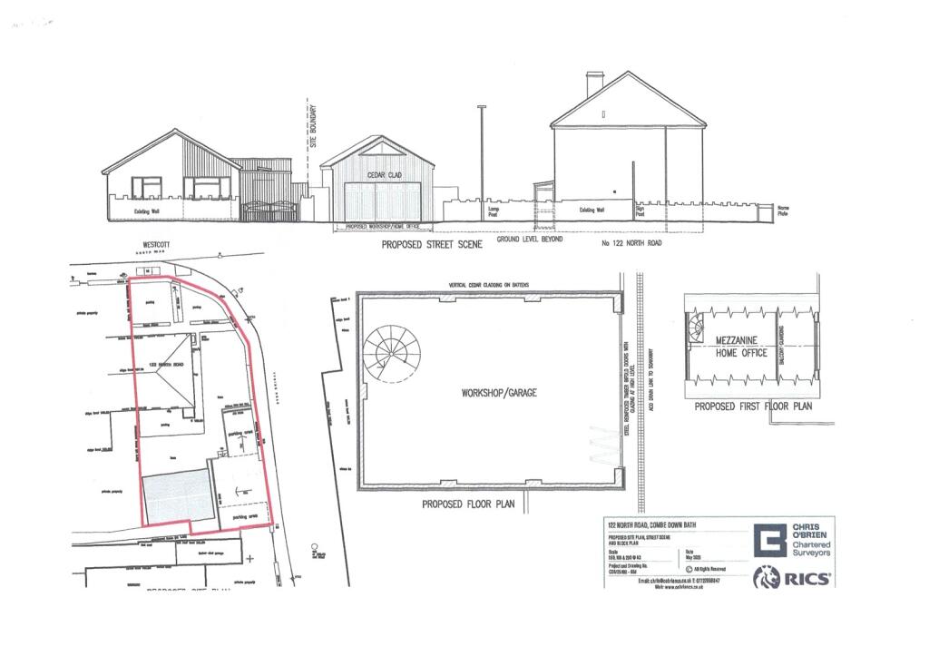
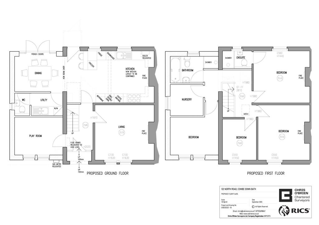
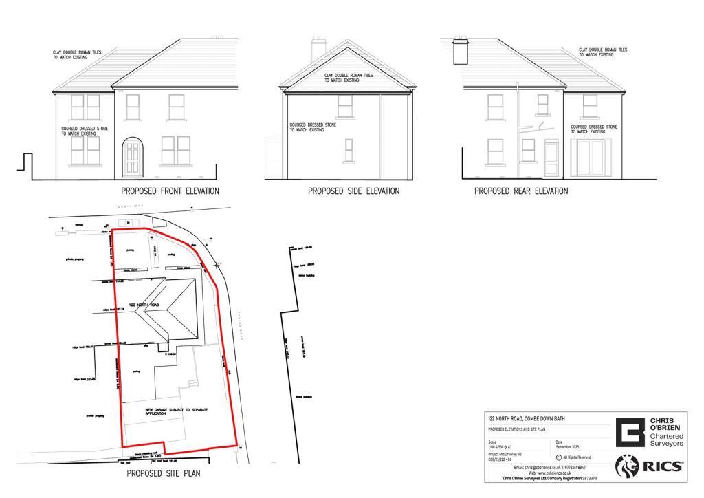
Full Description: NO ONWARD CHAINSet in the ever-popular village of Combe Down, this beautifully presented three-bedroom family home offers a rare blend of comfort, space and future potential. Thoughtfully maintained and ready to move straight into, it also comes with the exciting advantage of granted planning permissions for both a two-storey side extension and a new garage/workshop—perfect for those seeking room to grow.Step inside and you’ll find a warm and welcoming living room, ideal for family gatherings or relaxed evenings in. The kitchen/diner provides a sociable heart to the home, opening easily onto the garden and offering the perfect space for cooking, dining and entertaining. Upstairs, three well-proportioned bedrooms are served by a modern family bathroom, making the home ideal for couples or young families who value space and practicality.Outside, the property features a generous rear garden, offering plenty of room for play, planting or al fresco dining, as well as two garages—a rare asset in this location.Perfectly positioned for families, the home sits within approximately one mile of a superb selection of schools, including Combe Down Junior, Mulberry Park Junior, Ralph Allen Senior, Prior Park Prep, Paragon Pre-Prep, and Monkton’s Pre-Prep, Prep and Senior schools. Everyday conveniences are just moments away, with Combe Down’s award-winning delicatessen, local shops, bike store, and the Bradford Road amenities—pet shop, chemists, Morrisons with Post Office, bakery, Nisa and barbers—located within half a mile.For those looking to expand, planning permission has been granted for:A two-storey side extension providing two additional reception rooms, a utility and W.C. on the ground floor, plus an extra bedroom, nursery and bathroom on the first floor. (Planning Ref: 25/03561/FUL)A new garage/workshop with mezzanine level following demolition of the existing garage. (Planning Ref: 25/03457/FUL)With its superb location, generous plot, and exceptional scope for future development, this is a rare opportunity to secure a long-term family home in one of Bath’s most desirable village communities.EPC: DCouncil Tax Band: D
Location
Address
North Road, Combe Down, Bath, BA2
City
Bath
Features and Finishes
None
Legal Notice
Our comprehensive database is populated by our meticulous research and analysis of public data. MirrorRealEstate strives for accuracy and we make every effort to verify the information. However, MirrorRealEstate is not liable for the use or misuse of the site's information. The information displayed on MirrorRealEstate.com is for reference only.