North Road, Midsomer Norton

GBP 125000 For Sale

Property Details

Bedrooms

4

Bathrooms

2

Property Type

Plot

Description

Property Details: • Type: Plot • Tenure: N/A • Floor Area: N/A

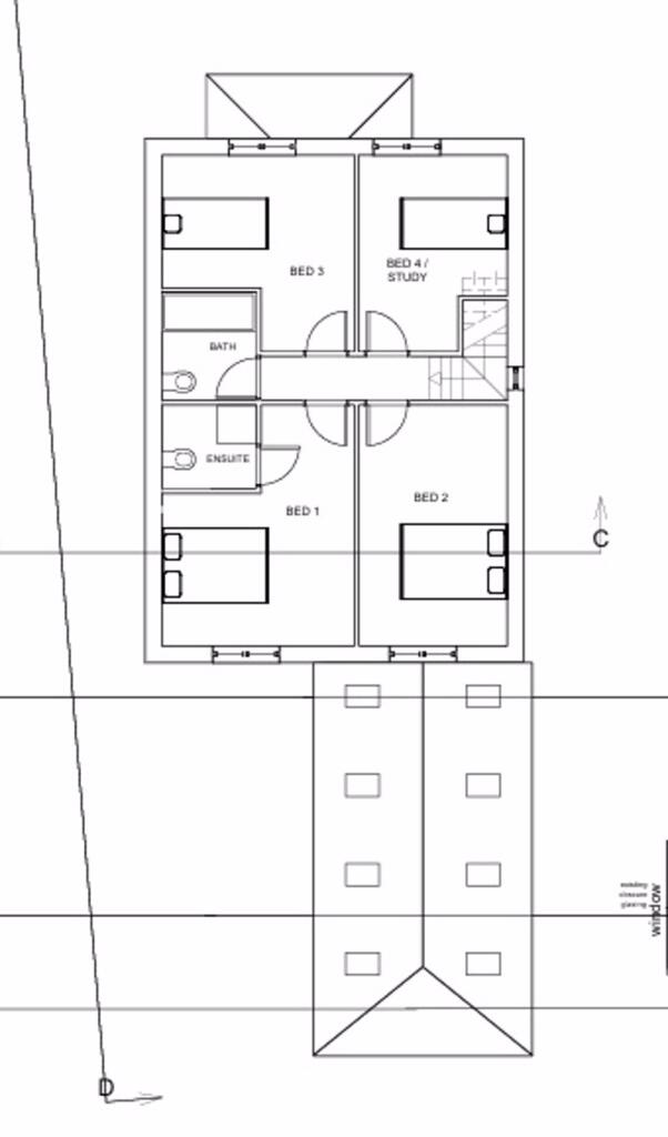
Key Features: • Planning permission granted for a detached house • Please search BANES PLANNING DEPARTMENT; Application Reference: 24/02784/FUL • A much sought after central location with easy access to amenities • The design creates a wow factor kitchen / dining / living room with high ceiling • Four bedrooms, esuite and family bathroom • Sunny courtyard style garden with a south westerly aspect • Private driveway parking • Please search BANES PLANNING DEPARTMENT; Application Reference: 24/02784/FUL

Location: • Nearest Station: N/A • Distance to Station: N/A

Agent Information: • Address: Unit 1, Radstock Road, Midsomer Norton, Radstock, BA3 2AA

Full Description: "Planning permission has been granted for the constrcution of a four bedroom detached house". PLEASE SEARCH BANES PLANNING DEPARTMENT USING Application Reference: 24/02784/FUL. The accommodation comprises a lounge to front and to the rear an open plan kitchen / dining / living room with the kitchen area having a feature high ceiling with roof windows. Also on the groundfloor is a separate utility room and cloakroom. On the first floor are four bedrooms, ensuite and family bathroom. All main services are available directly to the front of the property. Externally there will be a private drive leading to a courtyard garden which will have a sunny south westerly aspect. An extremely rare opportunity is this purchase, located in a much sought after location, conveniently placed to access the towns ammenities. The overall combined floor space equates to 152 square metres or 1635 square feet approximately.BrochuresProperty BrochureFull Details

Location

Address

North Road, Midsomer Norton

City

Midsomer Norton

Features and Finishes

Planning permission granted for a detached house, Please search BANES PLANNING DEPARTMENT; Application Reference: 24/02784/FUL, A much sought after central location with easy access to amenities, The design creates a wow factor kitchen / dining / living room with high ceiling, Four bedrooms, esuite and family bathroom, Sunny courtyard style garden with a south westerly aspect, Private driveway parking, Please search BANES PLANNING DEPARTMENT; Application Reference: 24/02784/FUL

Legal Notice

Our comprehensive database is populated by our meticulous research and analysis of public data. MirrorRealEstate strives for accuracy and we make every effort to verify the information. However, MirrorRealEstate is not liable for the use or misuse of the site's information. The information displayed on MirrorRealEstate.com is for reference only.

Real Estate Broker
Sam Chivers Estate Agents, Midsomer Norton
Brokerage
Sam Chivers Estate Agents, Midsomer Norton
Top Tags
Likes

0

Views

19

This website uses cookies to ensure you get the best experience. Learn more