Nova Scotia Wharf, 193 Bolton Road, Blackburn, BB2 3GE

GBP 4167 For Rent

Property Details

Property Type

9,489 sq ft

Description

Property Details: • Type: 9,489 sq ft • Tenure: N/A • Floor Area: N/A

Key Features: • Fully refurbished to a high standard • Combination of cellular and open plan accommodation • Excellent transport communication links • Potential to be let on a floor-by-floor basis • Personnel lift • May suit alternative uses - subject to planning permission • Parking for approximately 6-7 vehicles • New Lease • £50,000 per annum exclusive • May Sell (Offers in the Region of £600,000)

Location: • Nearest Station: Mill Hill Station • Distance to Station: 0.6 miles

Agent Information: • Address: St. Georges House, St. Georges Street, Chorley, PR7 2AA

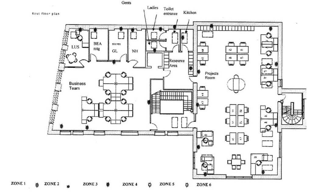
Full Description: LocationThe property is located on Bolton Road (A666) which sits approximately 1 mile south of Blackburn Town Centre. Bolton Road provides access to Junction 4 of the M65 motorway network. The property occupies an excellent position overlooking the Leeds and Liverpool Canal.DescriptionThe property comprises a detached three storey office building of traditional masonry construction, set beneath a pitched and slated roof covering which incorporates numerous roof lights. The property has recently been refurbished throughout to a very high standard and provides for a mix of open plan and cellular accommodation. The property also benefits from a passanger lift which provides access to all floors of the property. Externally, the property benefits from approximately 6-7 parking spaces, together with off-street parking and an adjacent Pay & Display car park. See below floor plans.ServicesThe mains services connected to the property include water supply, gas supply, electricity supply and of course, mains drainage. Please note that Turner Westwell Commercial Agents have not tested any of the service installations or appliances connected to the property.Lease TermsAvailable by way of a new Tenant's Full Repairing and Insuring lease for a term of years to be agreed. Rental£50,000 per annum exclusive (whole building). The property is available to let as a whole, or on a floor-by-floor basis. Further details available on request. Sale PriceOur client may sell the property and would look to achieve Offers in the Region of £600,000 for the Freehold interest. VATThe property is elected for VAT. Legal CostsEach party are responsible for their own legal costs involved in the transaction.EPCThe property has an current Energy Efficiency Rating of D(94). The certificate is valid until 26th February 2027. A full copy of the Report is available upon request.ViewingsStrictly by appointment with the sole agents TURNER WESTWELL COMMERCIAL AGENTS.

Location

Address

Nova Scotia Wharf, 193 Bolton Road, Blackburn, BB2 3GE

City

Blackburn

Features and Finishes

Fully refurbished to a high standard, Combination of cellular and open plan accommodation, Excellent transport communication links, Potential to be let on a floor-by-floor basis, Personnel lift, May suit alternative uses - subject to planning permission, Parking for approximately 6-7 vehicles, New Lease, £50,000 per annum exclusive, May Sell (Offers in the Region of £600,000)

Legal Notice

Our comprehensive database is populated by our meticulous research and analysis of public data. MirrorRealEstate strives for accuracy and we make every effort to verify the information. However, MirrorRealEstate is not liable for the use or misuse of the site's information. The information displayed on MirrorRealEstate.com is for reference only.

Real Estate Broker
Turner Westwell Commercial Agents, Chorley
Brokerage
Turner Westwell Commercial Agents, Chorley
Top Tags
£50
Likes

0

Views

33

This website uses cookies to ensure you get the best experience. Learn more