Old Fort Road, Shoreham-By-Sea

GBP 1350000 For Sale

Property Details

Bedrooms

4

Bathrooms

2

Property Type

House

Description

Property Details: • Type: House • Tenure: N/A • Floor Area: N/A

Key Features: • Detached • Development Opportunity • x3 Bedrooms • x2 Bathrooms • x2 Reception Rooms • Direct Beach Access • Sun Terrace • Sea Views • Off Street Parking • Private South Aspect Garden

Location: • Nearest Station: N/A • Distance to Station: N/A

Agent Information: • Address: Ground Floor, 10 The Drive, Hove, BN3 3JA

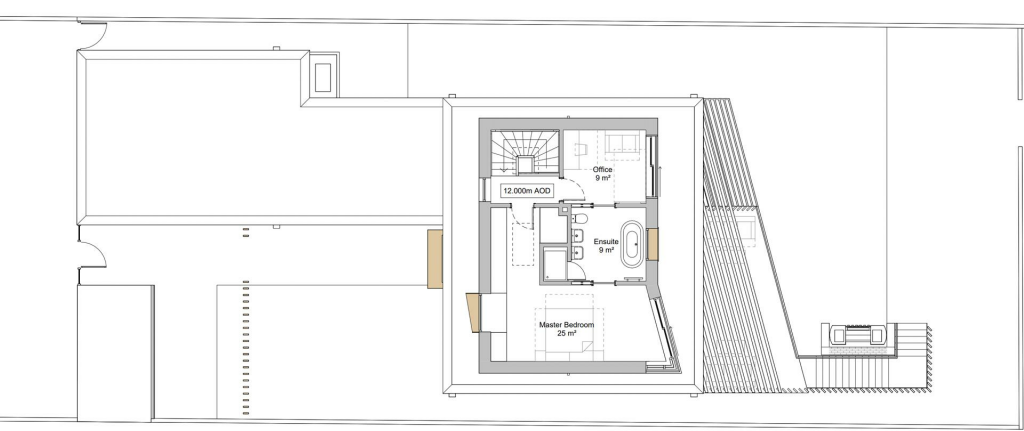
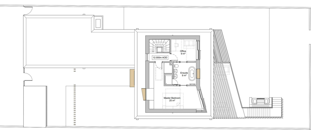
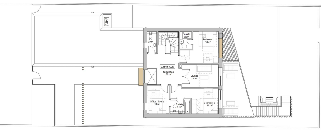
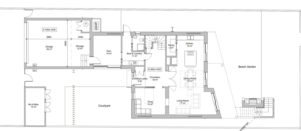
Full Description: Unique Shoreham Beach Property with Planning Permission for Contemporary Family Home.Located directly on Shoreham Beach, this detached 4-bedroom chalet bungalow occupies a spacious plot with stunning views and direct access to the beach from the rear garden. Positioned on Old Fort Road, this property represents one of the few remaining undeveloped sites in the area, offering a rare opportunity to create a dream coastal home.The property currently benefits from approved planning permission (Adur and Worthing planning reference AWDM/1062/22) for a striking contemporary, three-storey detached family home. Designed to deliver a modern living experience, the new build will offer approximately 3,000 sq. ft. of living space, featuring four bedrooms, a luxurious master suite, a dedicated office, gym, open-plan living and dining area, snug, and a double garage. There is also scope to modify the existing plans to suit your personal vision for the home.Alternatively, the existing chalet bungalow offers potential for transformation into a stunning property, though it would benefit from some upgrading and modernisation. Whether you choose to pursue the approved contemporary design or refresh the current home, this is a unique opportunity to create a bespoke property in an unrivalled location.The property is offered for sale with no ongoing chain, making it an attractive proposition for those ready to begin their next chapter.Conveniently located within walking distance of a footbridge leading over the River Adur to Shoreham Town Centre, you'll find a wide array of amenities, including popular bars, cafes, shops, restaurants, a health centre, library, and Shoreham train station with direct services to London and Brighton.BrochuresOld Fort Road, Shoreham-By-SeaBrochure

Location

Address

Old Fort Road, Shoreham-By-Sea

City

Shoreham-by-Sea

Features and Finishes

Detached, Development Opportunity, x3 Bedrooms, x2 Bathrooms, x2 Reception Rooms, Direct Beach Access, Sun Terrace, Sea Views, Off Street Parking, Private South Aspect Garden

Legal Notice

Our comprehensive database is populated by our meticulous research and analysis of public data. MirrorRealEstate strives for accuracy and we make every effort to verify the information. However, MirrorRealEstate is not liable for the use or misuse of the site's information. The information displayed on MirrorRealEstate.com is for reference only.

Real Estate Broker
Foster & Co, Hove
Brokerage
Foster & Co, Hove
Top Tags
Direct Beach Access
Likes

0

Views

71

This website uses cookies to ensure you get the best experience. Learn more