Old Glenzier School, Evertown, DG14
Property Details
4
3
Detached
Description
Property Details: • Type: Detached • Tenure: N/A • Floor Area: N/A
Key Features: • Former primary school established in 1842 • Generous size plot of 0.54 acres with extensive gardens. • Associated car park included. • Unique development opportunity. • Full planning permission granted for a four bedroom dwelling • Situated in open countryside with panoramic views. • Easy access to the M6 motorway. • Only 17 miles to the city of Carlisle. • 19 miles to Carlisle Lake District airport. • Building Warrant approval granted for a sustainable timber frame extension.
Location: • Nearest Station: N/A • Distance to Station: N/A
Agent Information: • Address: Lakeside, Townfoot, Longtown, Carlisle, CA6 5LY
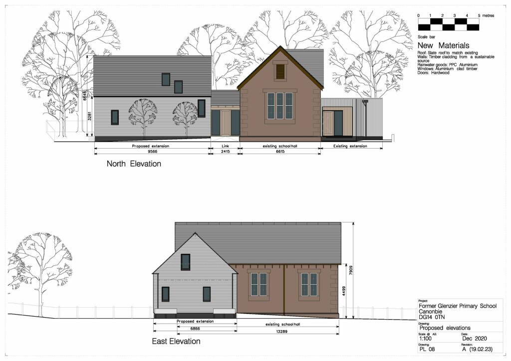
Full Description: Old Glenzier School is a unique development opportunity to acquire a traditional, stone constructed building with natural slate roof and original timber frame sash and casement windows. Planning permission has been granted for a change of use to a four bedroom dwellinghouse including a unique open plan living area of 11.6m x 5.1m.SituationOld Glenzier Primary School is located in the hamlet of Evertown, just outside the village of Canonbie which benefits from a primary school, post office and pub. The property has excellent road links with Carlisle (M6 J44) approximately 17 miles south and Junction 21 of the M74 approximately 6 miles to the west. A wider range of amenities are available in Longtown and Langholm which are both located 10 miles away.What 3 Words///woof.troubles.tintThe AccommodationThe proposed development briefly comprises of a open-plan kitchen/dining/ living area, formally the school hall, with patio doors leading to a south facing garden, second reception room or snug/study, entrance area with utility and cloakroom w.c. The planning granted is for a two storey extension, connected by a glazed link, to include four double bedrooms, ground floor bathroom, first floor shower room and laundry/ plant room. The property occupies a generous sized site of 0.54 acres, or thereby, consisting of the former playground at the front of the building and a garden area to the rear, featuring a wildlife pond, fruit trees and bounded by post and wire fencing with large mature trees. The adjacent former school car park is also included in the sale.ServicesThe building is serviced by mains water and mains electricity. The electricity supply has been disconnected and the electric meters have been removed. There is currently a maintained septic tank which is located outwith the property boundary and shared with Glenzier School House. The property previously benefitted from oil fired central heating which has been unused and drained down since September 2009.Planning permission grants for the installation of photovoltaic panels on the roof of the original structure. The flat roof extension structure housing the oil tank and boiler house situated to the east of the original building are in a dilapidated condition.Planning Reference21/0002/FUL - Full planning details can be requested by emailing the office at or by visiting Planning has been granted and the notice of initiation of development approved. Building Warrant Approval, reference 22/0965.Building Warrant22/0965 - Building Warrant Approval was granted on 3 February 2023. The duration of the Warrant is three years.ConstructionThe large school hall offers optional layouts for open plan living, and could provide temporary one bedroom accommodation to allow the works to be phased.Planning Conditions1. That all the planting, seeding, turfing and other works shown in the approved plans shall be implemented in the first planting season following the completion or occupation of the dwellinghouse hereby granted planning permission. Thereafter, all trees and shrubs forming part of the approved scheme shall be maintained and replaced where necessary to the satisfaction of the planning authority for a period of not less than 10 years.2. That the dwellinghouse hereby granted planning permission shall not be occupied unless and until the off-street car parking and turning areas shown on the approved drawings have been formed in complete accordance with the said drawings or such other drawings as may be approved in writing for the purpose by the planning authority. Thereafter, the said parking and turning areas shall be kept clear from obstruction and shall be retained only for that purpose for the lifetime of the development.Tenure and Possession: The Heritable (Scottish equivalent of Freehold) title is offered for sale with vacant possession upon completion.Matters of Title: The property is sold subject to all existing servitude rights, burdens, reservations and wayleaves, including rights of access and rights of way whether contained in the Title Deeds or informally constituted and whether referred to in the General Remarks and Stipulations or not. The Purchaser(s) will be held to have satisfied themselves as to the nature of such servitude rights and others.EPC Rating: ExemptPlanning: 21/0002/FUL - Full planning details can be requested by emailing the office at or by visiting Warrant Approval, reference 22/0965.Broadband: N/AServices: The building is serviced by mains water and mains electricity. The electricity supply has been disconnected and the electric meters have been removed. It is believed that drainage is currently to a septic tank which is located out with the subjects of sale and shared with Glenzier School House. The property previously benefitted from oil fired central heating which has been unused and drained down since September 2009. Planning permission grants for the installation of photovoltaic panels on the roof of the original structure.Viewings: Strictly by appointment through the sole selling agents, C&D Rural. Tel .Offers: Offers should be submitted in Scottish Legal Form to the selling agents. The owner reserves the right to sell without imposing a closing date and will not be bound to accept the highest, or indeed any, offer. All genuinely interested parties are advised to instruct their solicitor to note their interest with the Selling Agents immediately after inspection.Local Authority: Dumfries & Galloway Council, English Street, Dumfries, DG1 2DE. Tel: .
Location
Address
Old Glenzier School, Evertown, DG14
City
None
Features and Finishes
Former primary school established in 1842, Generous size plot of 0.54 acres with extensive gardens., Associated car park included., Unique development opportunity., Full planning permission granted for a four bedroom dwelling, Situated in open countryside with panoramic views., Easy access to the M6 motorway., Only 17 miles to the city of Carlisle., 19 miles to Carlisle Lake District airport., Building Warrant approval granted for a sustainable timber frame extension.
Legal Notice
Our comprehensive database is populated by our meticulous research and analysis of public data. MirrorRealEstate strives for accuracy and we make every effort to verify the information. However, MirrorRealEstate is not liable for the use or misuse of the site's information. The information displayed on MirrorRealEstate.com is for reference only.