Old Oscott Lane, Great Barr, Birmingham, B44 8TS
Property Details
2
1
End of Terrace
Description
Property Details: • Type: End of Terrace • Tenure: FREEHOLD • Floor Area: N/A
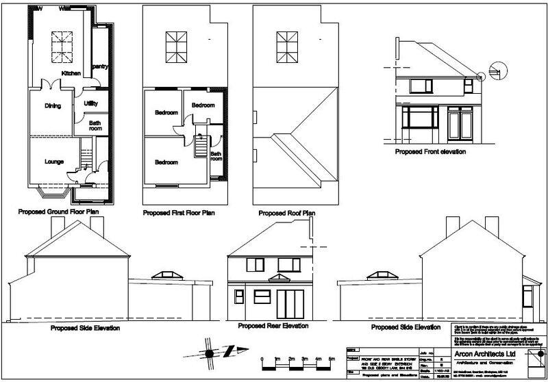
Key Features: • TWO BEDROOMS • END TERRACED • SOLD WITH PLANNING PERMISSION • STUNNING KITCHEN EXTENSION • UTILITY AREA • DRIVEWAY • CENTRALLY HEATED • MAJORITY DOUBLE GLAZED
Location: • Nearest Station: Hamstead Station • Distance to Station: 1.6474894492717302 miles
Agent Information: • Address: 225/227 Hawthorn Road, Kingstanding, Birmingham, B44 8PL
Full Description: Welcoming to the market this immaculately presented two-bedroom end terrace family home located on the popular Old Oscott Lane. Situated close to good local schools, shops, and amenities and it is perfect for first time buyers and investors.Approached via a tarmac driveway with a brick print effect suitable for multiple vehicles and entered through an extended porch. Upon entry you are welcomed by a hall giving access to the ground floor or the stairs leading to the first floor.The ground floor welcomes a large lounge/dinning room with a bay window to the front aspect. The extended kitchen offers an array of wall and base units, plenty of countertop space, sink unit with side drainer, gas hob and oven and space for other suitable fitted appliances. Completing the ground floor is a useful utility area and side passage.Heading upstairs you are presented with two large double bedrooms. The family bathroom consists of a P-shaped bathtub with shower over, hand wash unit and WC.Externally, the home has a large low maintenance paved rear garden with a shed to the rear and fencing to the perimeter. This home also has the benefit of approved planning permission for a larger rear and double storey side extension. Viewing this home is highly recommended. <br /> <br />Identity Verification Fee - We are required by law to conduct anti-money laundering checks on all those buying a property as part of our due diligence. As agents acting on behalf of the seller, we are required to verify the identity of all purchasers once an offer has been accepted, subject to contract. The initial checks are carried out on our behalf by Lifetime Legal. A non-refundable administration fee of £40 + VAT (£48 including VAT) applies which covers the cost of obtaining relevant data and any manual checks and monitoring which might be required. This fee will need to be paid by you in advance of us issuing a memorandum of sale, directly to Lifetime Legal, and is non-refundable.
Location
Address
Old Oscott Lane, Great Barr, Birmingham, B44 8TS
City
Birmingham
Features and Finishes
TWO BEDROOMS , END TERRACED , SOLD WITH PLANNING PERMISSION , STUNNING KITCHEN EXTENSION , UTILITY AREA , DRIVEWAY , CENTRALLY HEATED , MAJORITY DOUBLE GLAZED
Legal Notice
Our comprehensive database is populated by our meticulous research and analysis of public data. MirrorRealEstate strives for accuracy and we make every effort to verify the information. However, MirrorRealEstate is not liable for the use or misuse of the site's information. The information displayed on MirrorRealEstate.com is for reference only.