One Bedroom Annexe & Land for Sale

GBP 375000 For Sale

Property Details

Property Type

Land

Description

Property Details: • Type: Land • Tenure: N/A • Floor Area: N/A

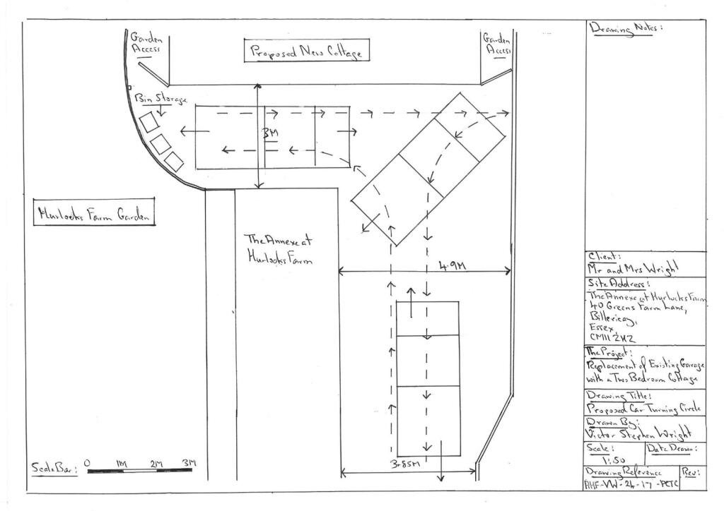
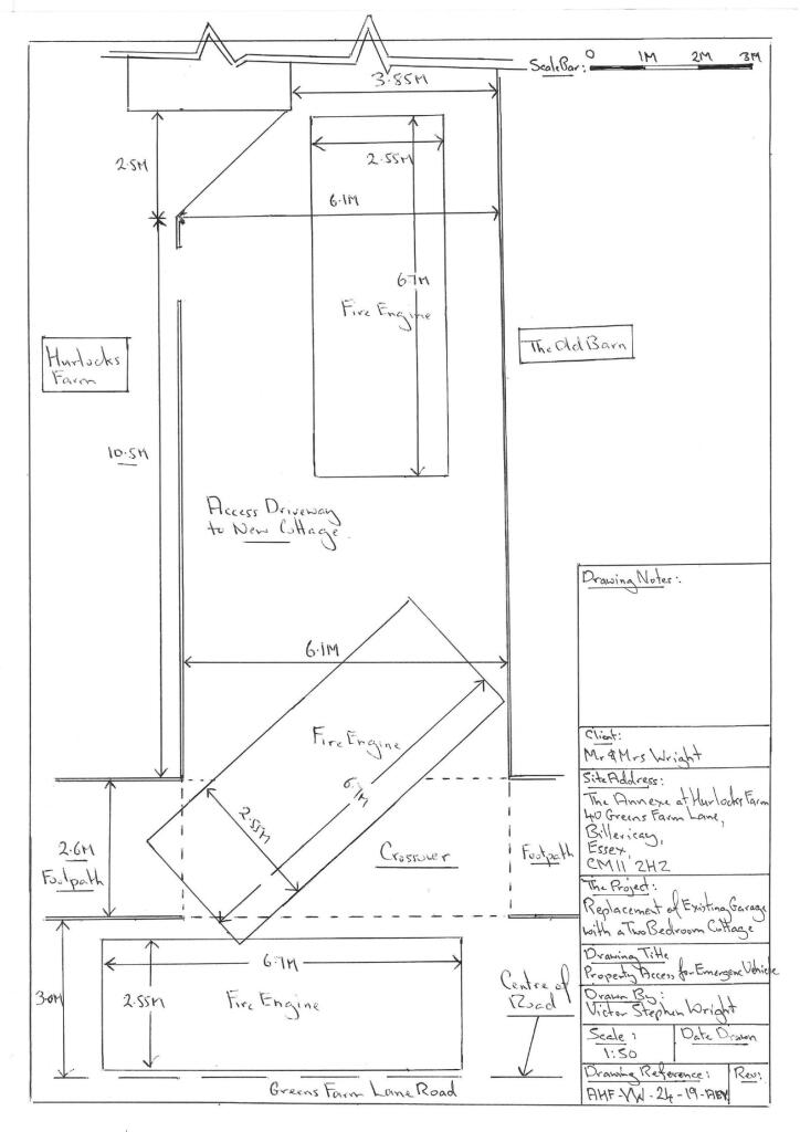
Key Features: • POTENTIAL DEVELOPMENT OPPORTUNITY • OUTLINE PLANNING APPLICATION SUBMITTED FOR TWO BEDROOM COTTAGE • ANNEXE, DOUBLE GARAGE AND LAND

Location: • Nearest Station: Billericay Station • Distance to Station: 0.6 miles

Agent Information: • Address: 51 London Road, Rainham, Kent, ME8 7RG

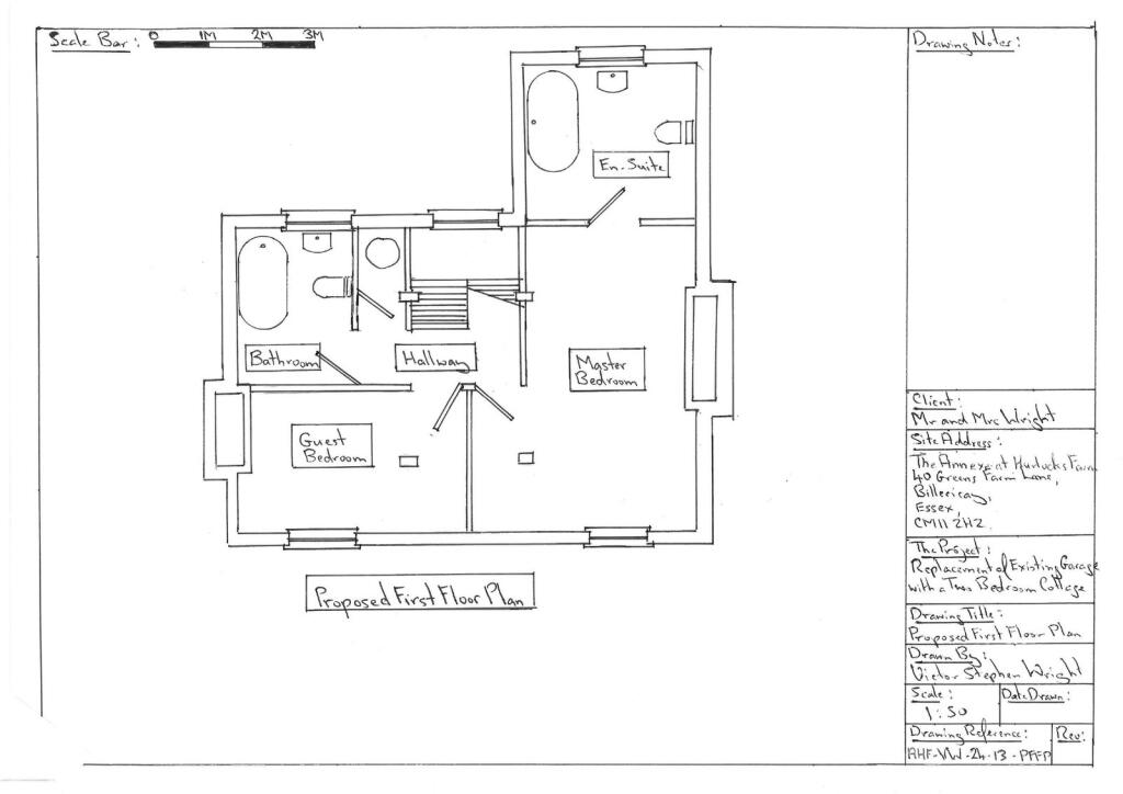
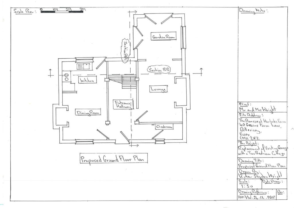
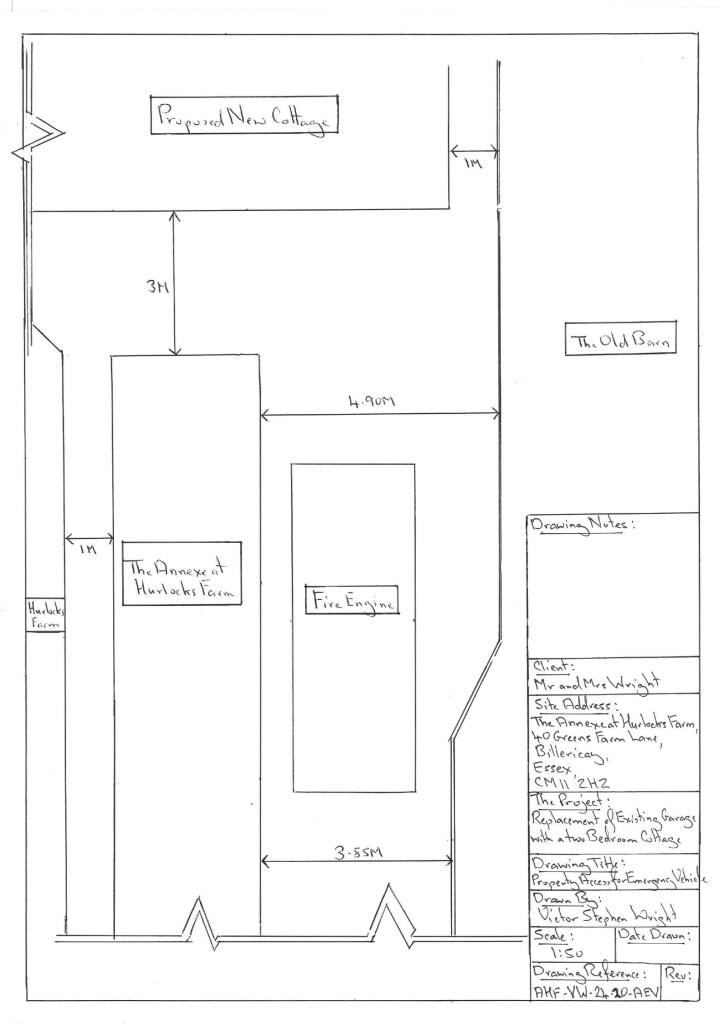
Full Description: An investment opportunity to acquire a one bedroom detached annexe, a double garage and land on the site of a farm house in Billericay.The current annexe has a fitted bathroom, kitchen with sink along with separate reception room and bedroom area. The property is served with a heat pump system. The land is currently used as a driveway, a double garage and further land to the side. Please note an outline planning application has recently been submitted (PP-13750523) for a two bedroom cottage to be constructed where the double garage currently stands. Drawings provided by the vendor are attached as photos to this advert. The drawings included in the details have been provided by the owner and are indicative only of what could be applied for and do not represent any form of approval received from the council for planning.

Location

Address

One Bedroom Annexe & Land for Sale

City

Salé

Features and Finishes

POTENTIAL DEVELOPMENT OPPORTUNITY, OUTLINE PLANNING APPLICATION SUBMITTED FOR TWO BEDROOM COTTAGE, ANNEXE, DOUBLE GARAGE AND LAND

Legal Notice

Our comprehensive database is populated by our meticulous research and analysis of public data. MirrorRealEstate strives for accuracy and we make every effort to verify the information. However, MirrorRealEstate is not liable for the use or misuse of the site's information. The information displayed on MirrorRealEstate.com is for reference only.

Real Estate Broker
eXp UK, East of England
Brokerage
eXp UK, East of England
Top Tags
Likes

0

Views

61

This website uses cookies to ensure you get the best experience. Learn more