Osborne Gardens, Herne Bay, CT6

GBP 550000 For Sale

Property Details

Bedrooms

3

Bathrooms

2

Property Type

Detached Bungalow

Description

Property Details: • Type: Detached Bungalow • Tenure: N/A • Floor Area: N/A

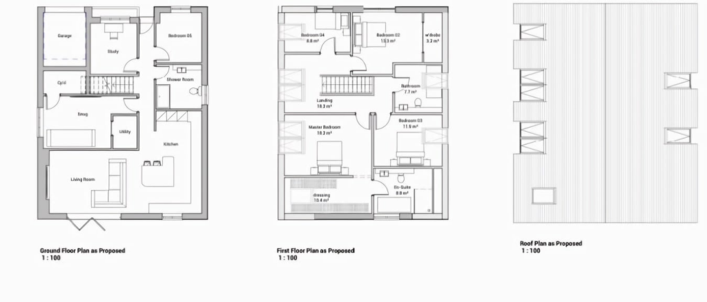
Key Features: • Detached Bungalow • Village Location Close To Clifftop Walks • Three Bedrooms, Two Bathrooms • Excellent Bus Links Into Town • Planning Permission to Convert the Loft

Location: • Nearest Station: N/A • Distance to Station: N/A

Agent Information: • Address: 106 High Street, Herne Bay, CT6 5LE

Full Description: This beautifully presented and immaculately maintained detached bungalow has a striking interior, extensively remodeled and refurbished with tasteful décor throughout. The house has bright and spacious living space with a host of appealing features that include a stunning open plan lounge kitchen-diner to the rear which has been thoughtfully planned with all integrated appliances ideal for any large family. Further accommodation offers three good size bedrooms, the main with en suite and dressing room plus a four piece modern bathroom. The rear garden has beautiful raised decking and patio areas, a astro lawn and a large studio currently used a beauticians but could serve as an office, gym or studio. To complete the picture there is a block driveway providing off road parking for several vehicles and an integral garage. Located on the outskirts of Herne Bay in Beltinge Village, easily accessible to Herne Bay town and beach also the area is well served by local amenities including a post office, Co-operative, pharmacy and dental practice. The property has planning permission granted for an extensive loft conversion creating four further bedrooms. Please call Kimber Estates for further details.Entrance HallwayEntrance door to front, radiator, storage cupboard, access to large loft.Bedroom Three9'6 x 8'4 (2.90m x 2.54m)Double glazed window to front, radiator.Bedroom Two11'1 x 9'2 (3.38m x 2.80m)Double glazed window to front, radiator.Bedroom One13'1 x 10'1 (3.99m x 3.08m)Double glazed window to side, radiator, access to Dressing Room and En Suite.En SuiteModern fitted shower room comprising wash hand basin with storage drawers below, low level WC, walk in shower cubicle with mains fed shower, heated towel rail, extractor fan and underfloor electric heating.BathroomModern fitted bathroom comprising freestanding bath with shower attachment, suspended wash hand basin with storage drawers below, low level WC. Walk in double shower cubicle with mains fed shower, feature tiling. Heated towel rail, extractor fan and underfloor electric heating.Open Plan Lounge, Kitchen-Diner28'8 x 19'6 (8.74m x 5.95m)Kitchen-DinerComprehensive range of modern fitted units with matching worktops, central island with built in wine cooler, four burner ceramic hob with large extractor canopy over, integral eye level oven and microwave, inset fridge freezer and dishwasher, blended sink unit and drainer, integrated washing machine, double glazed window to rear, upright column radiator.LoungeDouble glazed bi-fold doors leading to rear garden, two upright column radiators, television point.Rear Garden Low maintenance rear garden enjoying a sunny aspect mainly laid to astro turf with raised composite decking and patio areas. External lighting, power and water tap. Access to front and fenced surround. Hot Tub (available under separate negotiation).Studio Double glazed bi fold doors, built in storage cupboards, studio lighting, wash hand basin and under floor heating.DrivewayBlock paved driveway providing off road parking, access to rear.GarageIntegral garage with up and over door to front, power and lighting.COUNCIL TAX BAND DNBAt the time of advertising these are draft particulars awaiting approval of our sellers.BrochuresBrochure 1

Location

Address

Osborne Gardens, Herne Bay, CT6

City

Herne Bay

Features and Finishes

Detached Bungalow, Village Location Close To Clifftop Walks, Three Bedrooms, Two Bathrooms, Excellent Bus Links Into Town, Planning Permission to Convert the Loft

Legal Notice

Our comprehensive database is populated by our meticulous research and analysis of public data. MirrorRealEstate strives for accuracy and we make every effort to verify the information. However, MirrorRealEstate is not liable for the use or misuse of the site's information. The information displayed on MirrorRealEstate.com is for reference only.

Real Estate Broker
Kimber Estates, Herne Bay
Brokerage
Kimber Estates, Herne Bay
Top Tags
Herne Bay Three Bedrooms Two Bathrooms
Likes

0

Views

126

This website uses cookies to ensure you get the best experience. Learn more